查看完整案例


收藏

下载
架构师提供的文本描述。一个家庭的宜居性从它的方向开始和结束。对于这座位于莱瓦瑟姆西郊的传统住宅来说,朝南的住所意味着他们一家人大部分时间都呆在冷而暗的房间里。没什么好玩的。但是我们有一个计划,这个计划使得这个地方的热效率从3.2颗增加到6.4颗。
Text description provided by the architects. A home’s liveability begins and ends with its orientation. For this heritage home in the inner western suburb of Lewisham, south-facing living quarters meant the family spent most of their time in cold, dimly lit rooms. Not much fun. But we had a plan, and one that resulted in a doubling of thermal efficiency in this part of the home from 3.2 to 6.4 stars!
Text description provided by the architects. A home’s liveability begins and ends with its orientation. For this heritage home in the inner western suburb of Lewisham, south-facing living quarters meant the family spent most of their time in cold, dimly lit rooms. Not much fun. But we had a plan, and one that resulted in a doubling of thermal efficiency in this part of the home from 3.2 to 6.4 stars!
© Nick Bowers
尼克·鲍尔斯
随着家庭的发展,包括一个四条腿的朋友,必须有更多的空间和改善与后院的联系,但热性能将是改善舒适的关键。为了带来光明和温暖,我们建议拆除一个旧的附加和仔细重新设计新的。我们知道我们想要最大限度地提高客户的预算和影响力,所以我们减少了额外卧室的数量(不要浪费,不要浪费)。为了平衡这一点,我们在一楼除了一间更宽敞的带套间的父母卧室外,还专门布置了一间朴素的一楼。
With a growing family, including a four-legged friend, more space and improved connection with the backyard was a must, but thermal performance would be central to improved comfort. To bring in light and warmth, we proposed the demolition of an old addition and a careful redesign of the new. We knew we wanted to maximise budget and impact for the client, so we reduced the number of additional bedrooms (waste not, want not). To balance this, we dedicated a modest first floor addition to a more expansive parents’ bedroom with ensuite.
With a growing family, including a four-legged friend, more space and improved connection with the backyard was a must, but thermal performance would be central to improved comfort. To bring in light and warmth, we proposed the demolition of an old addition and a careful redesign of the new. We knew we wanted to maximise budget and impact for the client, so we reduced the number of additional bedrooms (waste not, want not). To balance this, we dedicated a modest first floor addition to a more expansive parents’ bedroom with ensuite.
© Nick Bowers
尼克·鲍尔斯
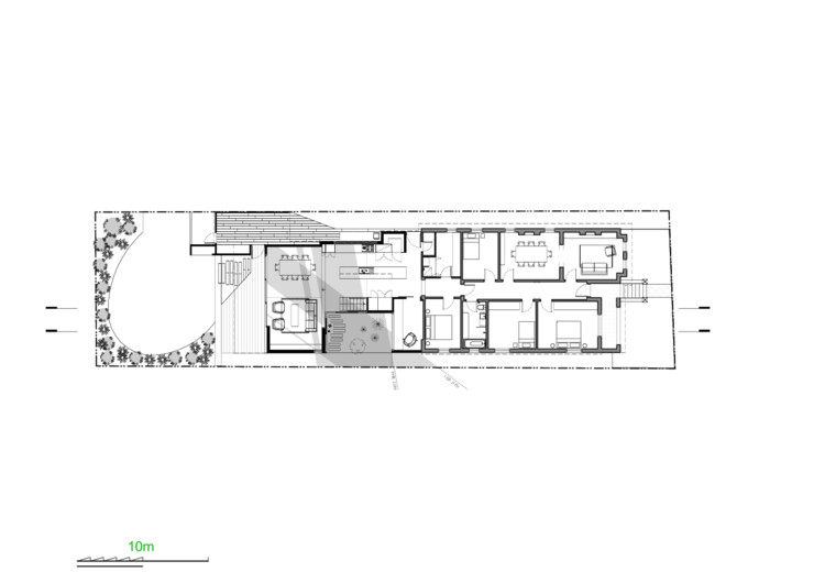
Ground floor plan
© Nick Bowers
尼克·鲍尔斯
1st floor plan
一楼图则
但我们的主要举措是引进一个内部庭院。我们打开了阳光之家的心脏,在那里战略地放置了生态的混凝土墙和加温的地板,为寒冷地区带来了急需的热量。新的遮阳篷让冬天的太阳和我们指定了严重绝缘预制墙板和屋顶面板,和双层玻璃窗,以帮助保持舒适的室内温度。
But our key move was to introduce an internal courtyard. We opened the heart of the home to the sun, where strategically placed ecofriendly concrete walls and hydronic heated flooring brought much-needed heat gain to cold zones. New awnings let in winter sun and we specified heavily insulated prefabricated wall and roof panels, and double-glazed windows, to help maintain comfortable indoor temperatures.
But our key move was to introduce an internal courtyard. We opened the heart of the home to the sun, where strategically placed ecofriendly concrete walls and hydronic heated flooring brought much-needed heat gain to cold zones. New awnings let in winter sun and we specified heavily insulated prefabricated wall and roof panels, and double-glazed windows, to help maintain comfortable indoor temperatures.
© Nick Bowers
尼克·鲍尔斯
厨房、餐饮和生活现在都变得温暖起来。我们在橱柜的脸上和厨房上方的木天花板上重新设计了旧的加用的有斑点的口香糖地板。我们华丽的,悬臂式楼梯细节增加了一个雕塑元素在庭院旁边,但它也让美丽的早晨阳光,温暖早餐者的背,因为他们坐在厨房的长凳。
The kitchen, dining and living are now warm in every sense.Reclaimed spotted gum flooring from the old addition we repurposed in cupboard faces and in a timber-lined ceiling above the kitchen. Our gorgeous,cantilevered stair detail adds a sculptural element alongside the courtyard, but it also lets in beautiful morning sun, warming breakfasters’ backs as they sit at the kitchen bench.
The kitchen, dining and living are now warm in every sense.Reclaimed spotted gum flooring from the old addition we repurposed in cupboard faces and in a timber-lined ceiling above the kitchen. Our gorgeous,cantilevered stair detail adds a sculptural element alongside the courtyard, but it also lets in beautiful morning sun, warming breakfasters’ backs as they sit at the kitchen bench.
© Nick Bowers
尼克·鲍尔斯
旧厨房的砖块被改造为后院的另一座具有战略意义的热质墙。这是一个1400升的水箱的屏幕,为这座新美化的园丁提供充足的雨水。一位园艺学家在一项旨在促进鸟类和其他当地动物的设计中,捕捉到了客户对澳大利亚本土植物的热爱。这一主题一直延续到内部庭院,在那里,标志性的红鹰树的黑色树干与我们选择的黑色木材覆层相呼应。
Bricks from the old kitchen were repurposed as another strategic thermal mass wall in thebackyard. This doubles as a screen for a 1400L tank that supplies ample rainwater for the newly landscaped garden.A horticulturalist captured the clients’ love of Australian native plantshere in a design that promotes birdlife and other local fauna. The theme continues into the internal courtyard where the blackened trunks of the iconic Xanthorrhoeagrass trees echo our choice of blackened timber cladding.
Bricks from the old kitchen were repurposed as another strategic thermal mass wall in thebackyard. This doubles as a screen for a 1400L tank that supplies ample rainwater for the newly landscaped garden.A horticulturalist captured the clients’ love of Australian native plantshere in a design that promotes birdlife and other local fauna. The theme continues into the internal courtyard where the blackened trunks of the iconic Xanthorrhoeagrass trees echo our choice of blackened timber cladding.
© Nick Bowers
尼克·鲍尔斯
当然,所有这一切的教训是,生态友好的建筑和遗产家园是完美的伴侣。太阳陷阱是一张可爱的温暖的床。
Of course the lesson in all of this is eco friendly architecture and heritage homes are the perfect bedfellows. And The Suntrap is one lovely, warm bed.
Of course the lesson in all of this is eco friendly architecture and heritage homes are the perfect bedfellows. And The Suntrap is one lovely, warm bed.
客服
消息
收藏
下载
最近

















