查看完整案例


收藏

下载
序|让记忆·生命在空间里留下痕迹家是内心深处的渴望平平淡淡里守一方净土回归自然在平淡的生活中找寻生活的本心
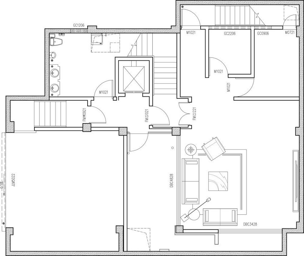
设计师在负一层空间主要打造的是一个静养之地,在空间上把功能用房(保姆间,洗衣房)和静养区域从流线上区分开来,中空庭园进入静养之地,为了使空间情绪和氛围上达到引入的概念。同时让静养之地在这块空间相对偏居一隅,以达到静心,梳理记忆目的。在静养之地里布置的书写区,藏品区,咖啡区,以及静座区,把主人的生活兴趣在此空间里蔓延混杂,营造一个独特之处。
静·养 在负一层空间里,我们把静养室与其他空间隔离开来,加强静室的感受。在这个相对开放又独立的空间里,煮一壶茶,随着翻滚的白雾,或回忆过去、或放空冥想。
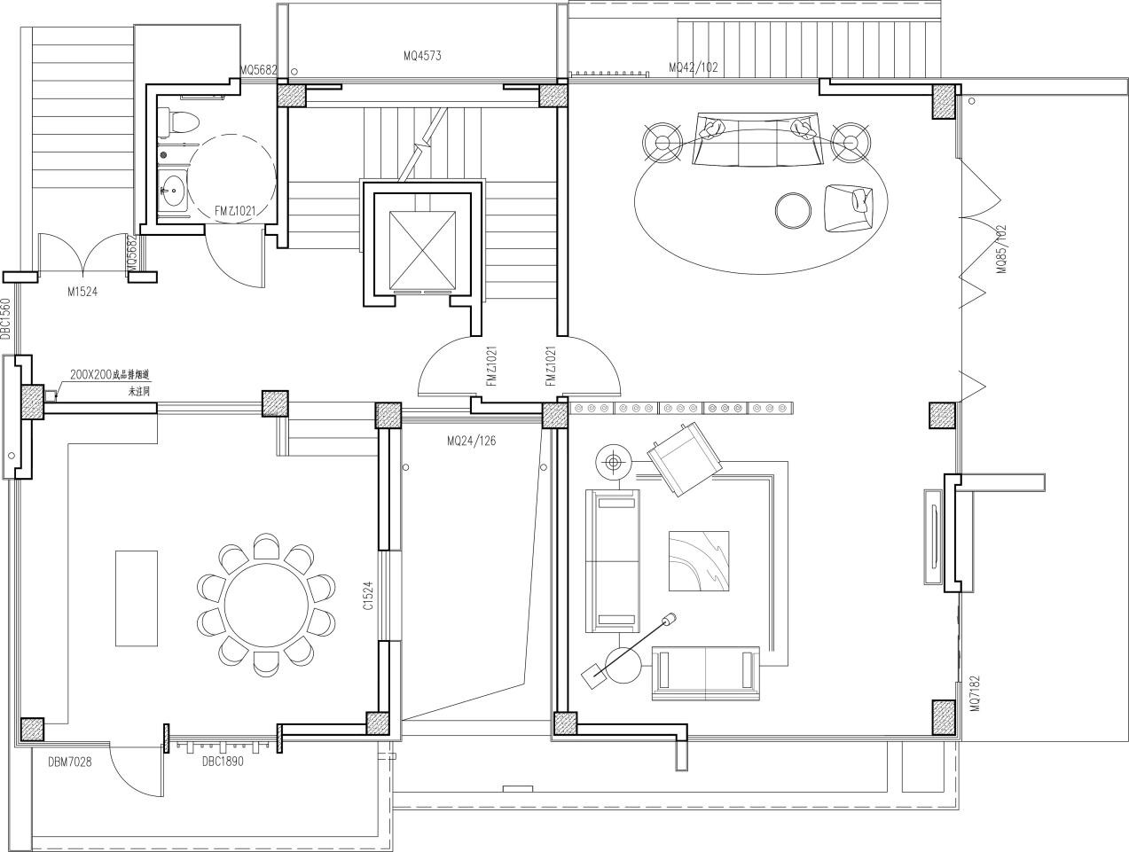
在整个一层空间里,通过对原始平面的优化,让各个功能区相互借景,整个空间都有互动,模糊空间的界线,把多种生活方式串联在一起。三个空间同时用装饰借景,让内空间产生更小的生活区域,使得空间层次丰富而有变化。
融·景餐厅作为入户的第一个功能区,整个空间明快温暖,借景于厨房自带的景观阳台,室内的绿植与室外的植物相互映衬。光影从窗户进入,自然平和的气息在空间里流转,带来全新的用餐感受。
借·景室外是自然流淌,室内是与光共舞。当自然进入生活,空间就会整个的宁静下来。白色的薄纱让户外的阳光轻柔的落下,让相伴更加亲切,一切都呈现出雅致的生活艺术。
入·景空间里,多人聊天、品茶的长桌上绿色植物让窗外的树木仿佛延伸进了室内,让自然在空间里流动。三、两人谈趣的休闲沙发,为亲朋好友提供了亲切的感官体验,一切都自然且恰到好处。随着交谈回到过去,畅想未来。
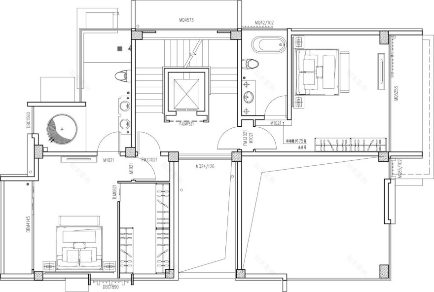
在二层空间里,设计师利用局部挑空空间的封堵,增加客房的功能,以达到居住的功能的充分满足。同时调整了次主卧里卫生间和衣帽间的面积配比,提升了次主卧生活的实用性。客房和次卧共用一个卫生间,各自的独立性都有保留。
生·活有灵性的艺术,是将生活升华,在细节处自然流露。通过对细节的处理,让每一个角落都是风景。
山水入画,灯光与金属饰品交相辉映,是生活到艺术的延伸。那一道窗,让空间里的浪漫苏醒。
肌理分明的床上用品编织出满室的温暖,阳光介入,墙上、桌面、时光里都是对艺术的诠释。
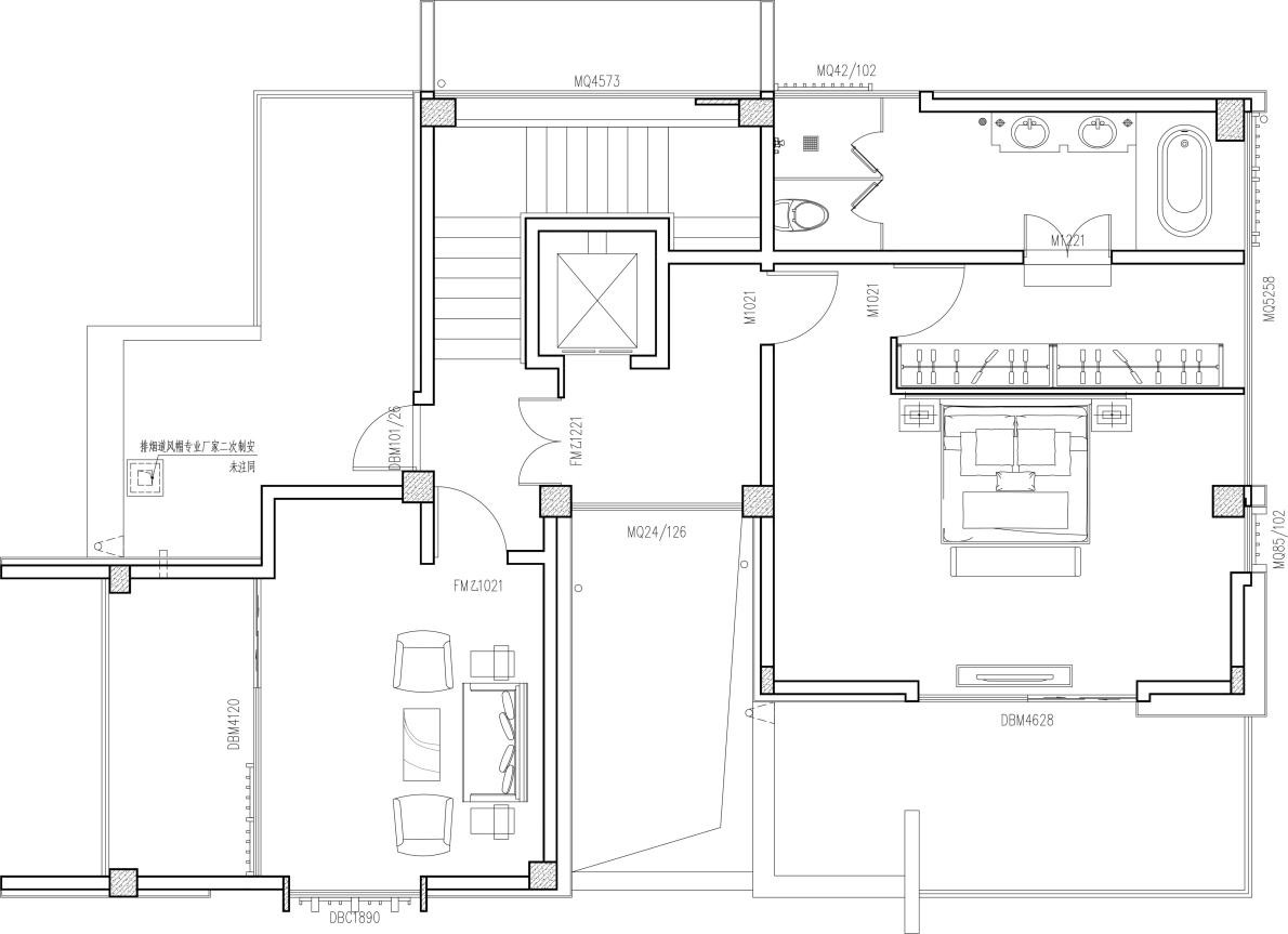
紧挨着的是聊不完的夜色,隔开来的是舒适自然。跳动的光影,让空间看起来温馨惬意,墙边小几也能为客人带来独处时的静谧安然。设计师在三层空间主要打造起居室的功能,让主卧楼层拥有自己完全独立的私密空间,充分体现高质量的生活品质。
通透的视野,干净、明亮的空间条件,赋予空间干练的氛围,营造专业理性的知识积累和对品质的追求、情感体验,设计师化繁为简,铸造高质量的生活方式。
以马为主题的书房,营造出驰马奔腾的意境。风吹过,是白纱扬起的弧度,也是心头弥漫的梦境。在这个空间里,感受艺术般的品质生活。作为三层的主要空间,设计师把各个功能区分隔开来,方便男女主人使用,装饰品的使用为空间增加了层次感。使用中式景中景的意境,让卧室和过道有了沟通,打破空间的界限,让每个空间都相关联,但是又独立存在。
生活的妙处,或许就是在一个温暖的地方,静候内心的独白,为每一个日夜,记录色彩斑斓的过往。
客服
消息
收藏
下载
最近
















































