查看完整案例


收藏

下载
混凝土设计的家
混凝土的质感不仅只有冷俊的外表,它也能温暖、自然静谧的原始质感,与生俱来的艺术气息,最原生态的高级灰典范,给家带来不一样的诗意禅境。
01. 海边度假屋
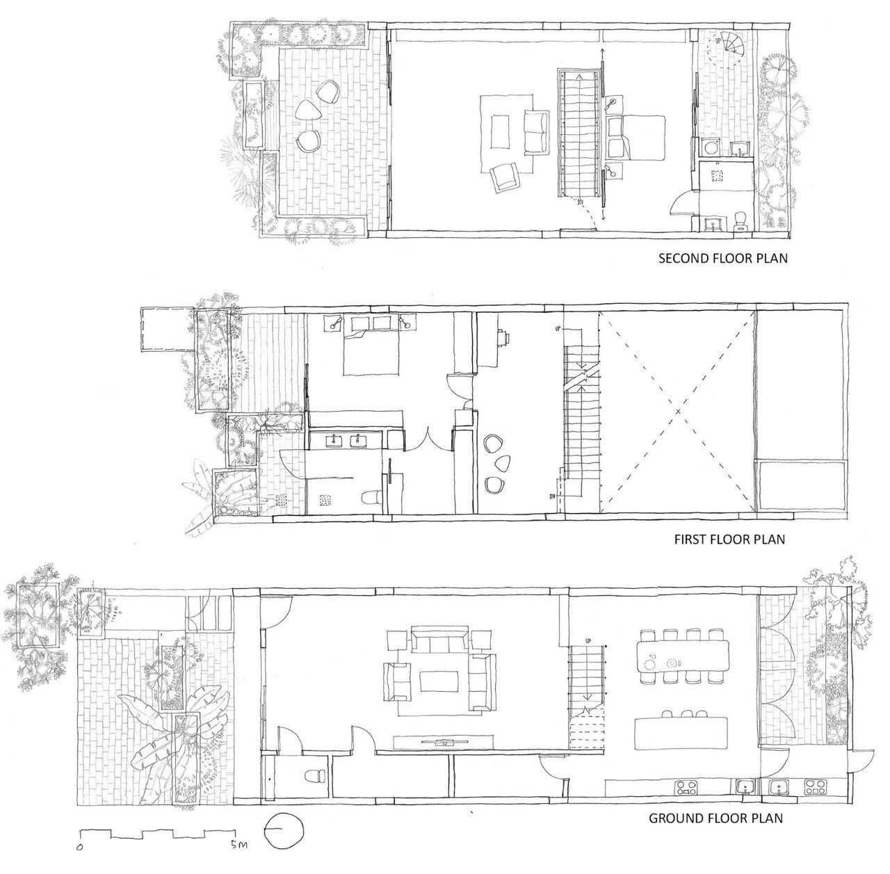
这个房子叫 Casa OchoQuebradas,坐落在智利圣地亚哥北部的海岸线上,是一座 249㎡ 的度假屋。由亚历杭德罗·阿拉维纳(Alejandro Aravena)设计。
亚历杭德罗·阿拉维纳( Alejandro Aravena )一直着眼于公共利益和社会影响,作品涉及住房、公共空间、基础设施和交通运输等领域。从亚力杭德罗·阿拉维纳这些年的作品来看,博物馆、学校建筑以及私人住宅是他最主要的几个方向,他秉持的现代主义设计风格,试图将建筑物的功能性发挥到最大,并且达到自然的融合。
这个度假屋共分四层,建筑外观看似由三组混凝土结构随意的摆放在一起组成。
室内全部采用木材装饰,天然的装饰材料与外建筑的混凝土相结合,在大自然的衬托下更显舒适。
客厅面向窗外,坐在沙发上可以直接看到外面的大海,无论是休息、阅读还是会客,都会让使用者有身在大自然中的感受。
厨房和餐厅呈开放式设计,通过材料运用和结构拼接,打造出不一样的「粗糙」之美。
中央位置的茶室在天井下端,通过自然光的进入增加了室内采光,设计师还利用玻璃门分割区域,关闭时可变为一个封闭的空间。
卧室的落地玻璃窗面向大海,增加了整体空间的通透性。
在卧室和客厅中间有一扇可移动的隔断,在休息时可以增加卧室的私密性。
卫生间以衣帽间相连,主要材质也是以混凝土、木材为主。
通往上层空间的楼梯设计的都很有特色。
02. 绿植包裹的住宅
这座三层高的房子位于马来西亚吉隆坡,名为 Planter Box House 是 FORMZERO 建筑事务所为一对退休夫妇设计的房子。
FORMZERO 是 Cherng Yih Lee 于 2012 年建立的,他们的设计往往侧重于挑战传统的建筑类型和城市领域的边界。其意识形态是将自然景观与建筑在城市环境中重新融合。
该建筑的外观像是一个个集装箱组合而成,并在外围种植了 40 多种绿植。
设计师将房子称为「当代热带住宅的重新定义」,且优先考虑轻质、气流和植物生长的问题。几乎每个混凝土阳台都有蓄水功能,能控制水位达到灌溉的作用。
进入室内是一个充足温馨的居住空间。家具以木质元素为主,大面积的落地窗为室内带来足够的采光,客厅中的柜子靠墙摆放复古又优雅很有特色。
主打温馨情调的餐厅,可以通过混凝土与木材的完美融合,碰撞出别样的精致感。
墙边的画作,流露出艺术气息,亮眼的颜色在房间中装饰的恰到好处。
铁艺楼梯蜿蜒而上,细管的扶手成了特殊装饰,一丝工业气息融入房间中,简单明了的线条和现代化的氛围,让人十分惬意。
来到阳台,地面用落空的水泥砖铺设,屋主可以在这里随意种植自己喜爱的花草。
卧室拥有通透大气的空间格局,再搭配复古简约的家具,使空间呈现一种与众不同风格,带给人强大的视觉冲击力。
卫生间采用去繁从简的设计手法,让整个空间独特又和谐。虽然大部分空间都是用玻璃做材质有很强的透光性与开放性,却因为绿植的遮掩,反而有更好的私密感。
水龙头的设计也非常有特色。
03. 城市别墅
这个别墅位于墨西哥城,由 RIMA 设计,项目的主旨是创建一个住宅,通过感官体验带你远离城市的喧嚣。
RIMA ARQUITECTURA 是一家位于墨西哥城的建筑设计公司,由建筑师 RICARDO URIAS 及其合作伙伴 RODRIGO ESPINOSA 于 2004 年创立。他们设计宗旨是:创新设计,改善用户的质量,赋予每个项目独有的特色。
为了实现这一目标,房屋的内外空间都选用了大量的自然建筑材料来创造,例如木材,石材,外露混凝土,碳钢板和玻璃。通过这种方式,描绘了一个清新自然的环境。
住宅包括三层楼和一个地下室,一楼有起居室、餐厅、书房、厨房和卫生间,还设有三间卧室,每间卧室均设有自己的浴室和更衣室,一间影音室和一个双层高的露台。
简约干练的入口,用三种材料结合设计,展现出一种富有张力的空间美感。
客厅向来被列为设计的重中之重。温润的木质元素以及亮眼的色彩,令人惊艳之余,一种静谧和舒适的感觉油然而生。
现代人生活在这个快节奏的时代里,特别容易产生浮躁和焦虑情绪,一个温馨舒适的睡眠空间,就能满足自己精神转换的需求。
第二层楼的设计同样拥有主卧室、休息区、更衣室和面向山谷最佳景致的露台。
地下室有带顶棚的停车场、酒窖、健身房、两间卧室、一间杂物间、一间机器室以及一个为生活空间提供自然采光和通风的花园,都是极有设计感的存在。
参差错落的外墙,也是建筑设计的一大特色。
客服
消息
收藏
下载
最近












































































