查看完整案例


收藏

下载
摩登都市中的自然生活,演绎现代新风尚
我拥有黑色的眼睛,不是为了寻找光明,而是为了寻找在黑暗中散发出如神祗般光明的你。
设计师说:本案参照了业主的要求,最终选择了现代风格。设计是为了更好的生活,故方案中我将设计的配件、色彩简化,加入木质、花等自然元素,使空间层次感更丰富,从而打造出一个含蓄简约、张弛有度的现代空间。
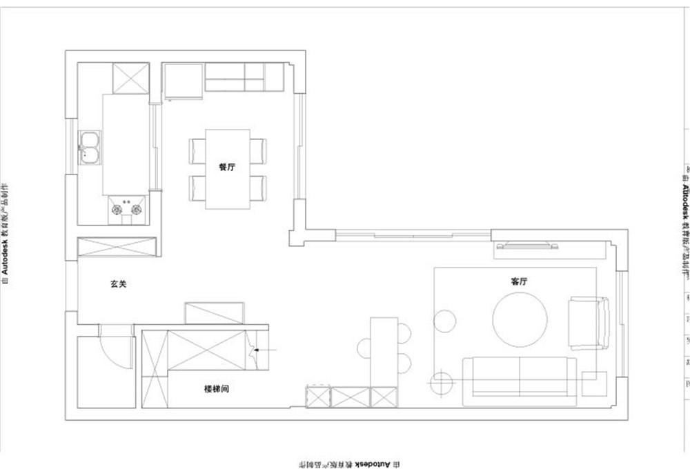
内玄关以材质和颜色连接一层的各个空间,使之具有整体感。
客餐厅以灰色为主基调,穿插温润的木质元素,配以金属元素点缀,使整个空间摩登时尚而又贴近自然,体现了屋主人的独到品味。
客餐厅在满足基本功能后,在客厅空间增加了水吧区,打破了空间的局促感,略带工业风的摩登元素,使空间显得柔和并带有穿透感。
用餐区选用木质纹理的餐桌餐椅,以简约的造型占据视线,显得简单而不失大气。
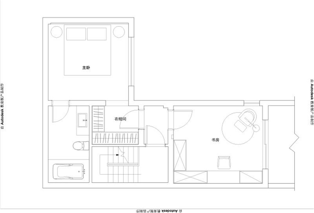
主卧床头背景墙以皮质软包的手法,结合金属收边和壁纸、木质元素的铺排,使空间显得张力十足而不失沉稳。
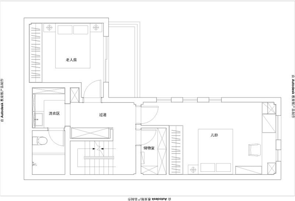
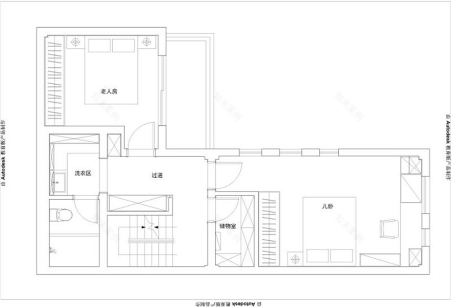
以香槟粉和纳瓦霍黄色为空间的背景色,搭配木质元素,使空间显得清新自然,温馨舒适。
在儿童房的设计中,我运用了色彩和肌理的调和来塑造空间。将海港蓝和亮白色、木色搭配,会给空间营造出船行于大海之上的开阔明朗之感。
阳光透过白纱,折射出青春鲜活的气息。
在空间的设计上,满足业主的需求之余,我另增加了储物空间。色彩上,以清新淡雅的原木色为主,有助于让人脱离嘈杂尘世,回归自然。
作品名称:光与暗之城 工程地址:未来城·桂语里 设计风格:现代 户型结构:排屋 常住人员:夫妻 老人 孩子 房屋面积:180㎡ 全案设计:内舍设计 软装造价:35W 软装家具:成品家具、定制家具、灯具、窗帘、墙布饰品挂画等
客服
消息
收藏
下载
最近




















