查看完整案例


收藏

下载
概述微流青旅位于上海市内环高架旁的路口转角,背靠居民住宅区,前临内环高架路。改造前,这里是一家经营不善的家庭旅馆,房间格局普遍狭小,半数房间无采光。一楼出租给快递公司作为物流仓库。微流拿下此处租赁权后,辑画设计对此物业做了全方位的设计改造。
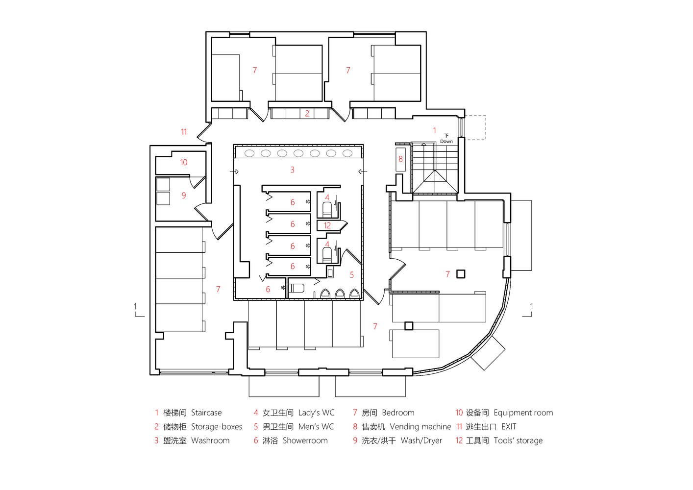
功能微流一共上下两层,一层作为微流青旅的公共客厅,不但向客人也向城市24小时开放;二楼是微流的睡眠区,仅供微流客人入住使用。二层布局上做了全新调整,去除了全部隔墙,仅保留承重墙后,沿外墙全部布置房间,中间作为卫生间和淋浴间。所有隔墙均使用玻璃砖砌筑,从而保证所有房间均有采光的同时,中央功能区也能有光线到达。
构造微流大量采用条纹玻璃砖。通过和玻璃砖供应商的合作,由工厂定制加工各角度的转角玻璃砖以及封边玻璃砖,最大可能的塑造出纯玻璃砖墙的设计效果。房间床位是由辑画设计为房间单独设计定制的,根据每个床位的位置设计了不同高度和开窗方式。同时每个床位可以完全拆成板式,方便重复使用甚至批量生产。
外观外立面化繁为简,在保留原开窗的情况下,去除原来的窗套线脚。拆除房屋转角的临时铝板,使用玻璃砖墙填充,外墙刷白。大面积的玻璃窗和玻璃砖使公共客厅在白天和城市的互动最大化;而在夜晚,客厅的灯光能成为这昏暗街区的一座灯塔。
城市微流是城市的一道切口,他处于高架的背光处,周围没有配套,多是小加工店和物流公司,这是一个不太有商业气息的位置。但微流通过简约现代的设计,凭借互联网的ota平台,突破街区的种种障碍。
在开业后微流青旅给街区带了了每月超过千人的人流,而且他们大部分都是18-25岁的年轻大学生,其中不乏港澳台及外国人。微流成了这街区一道闪光的切口,他不依托于社区,而是用极具反差甚至批判性的姿态立足这个街区、影响这个街区。当地的居民常常驻足良久,看着形形色色的年轻人进出微流,感觉又好奇又惊讶,为何一条原来缺乏生气的街道似乎一夜之间充满的生机。
客服
消息
收藏
下载
最近


























