查看完整案例


收藏

下载

翻译
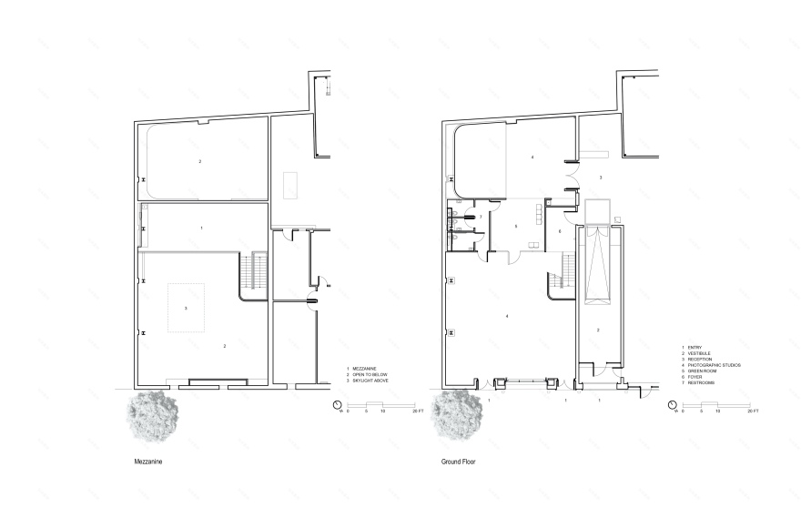
Located North of the Williamsburg Bridge in Brooklyn, Industria Superstudio is a production space that supports a variety of uses in film and media. The studio space sits within an urban context and is near the waterfront. The building is conveniently located near mass transit and surrounded by bike route pathways. The studios are designed to be a multi-purpose venue to support various programs for New York's creative community in design, media, fashion and culinary to name a few. Industria supports artist and their work by being close to their working environments and sustaining Arts & Culture, a vital component in the cities growth.
客服
消息
收藏
下载
最近









