查看完整案例


收藏

下载
惠而浦(中国)研发中心
我们的作品都有关自由,自由的敌人是拥有,因此消失要比存在更永久。
Christo and Jeanne claude
惠而浦是世界上最大的大型家用电器制造商之一,企业历史悠久,经典的白色电器十几年都在市场上的畅销,初识惠而浦感觉工惠而浦(中国)研发中心业化程度很高,产品也是细节可究,深入了解后对于惠而浦这个品牌的意识和概念性更有了宏观的理解。
我们这次要做的是惠而浦(中国)位于安徽合肥总部的工业设计研发中心的空间设计。办公空间,尤其是在生产大楼里面的用于设计研发的办公空间,需要的不仅仅是一个功能性空间。
从办公室设计的功能层面,正常来说是给予一定的办公环境和合理的人员动线,让人在空间中舒适的感受办公氛围,用合理的造价呈现出空间设计感。
不过作为一个用于设计人员研发讨论和给予设计师工作的空间,也许在意义层面上则需要更多考虑到空间的可能性和所要传达的语言以及感受。
此办公空间的现场也有个比较棘手的问题,现场空间的消防不是传统方式的喷淋,有三分之二的面积用的都是七氟丙烷气体消防设备,这是因为当初此空间预留作为实验和研发的空间,考虑到很多材料不能被水所淋湿和影响就用了这种方式,可是这种设备占用很多的空间以及位置不可改变,对于我们设计其实是很有影响的,但是整栋大楼的消防已不能再改动,我们只能在这种情况下找到平衡点,用一些设计手法尽量避免设备的出现和对空间的影响。
设备所在的位置平面示意
意义层面,找寻空间语言和传达的理念
在寻找空间语言的时候,说实话如同拔萝卜一般,起初非常费力气,各种元素各种所谓的风格,各种分割组合都可以,我们要的是什么,结合企业理念?结合整体环境?各种找突破口。
企业理念:惠而浦英文是“whirlpool”,是旋涡的意思,想着旋涡啊旋涡,难道是弧形,难道是点,难道是透视,这根线捋了几十根线索出来,最后还是在无意间洗脸的时候,把水从盆里冲下去的瞬间,一张纸片落在了盆里,随着水流冲下去形成的旋涡,纸片随波逐流,漂浮而起,原本没有生命力的纸片一下子活了,那一刻,
定下了“漂浮的办公室”这个概念。
空间场景的灵感来自于“最自由的艺术”大地艺术家Christo and Jeanne-Claude,他们的作品所要呈现的是人与自然的最深层的
大地艺术家Christo and Jeanne-Claude
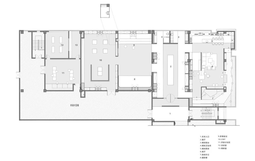
空间的平面空间划分分为:展示区,模拟区域,自由办公区域,会议室,访谈区以及CMF区域等。
本想空间完全OPEN,可是由于气体消防设备的局限性,
我们通过开门的连接方式将各功能空间联系在一起。
我们通过空间的分割以及色块的组合,
在空间里呈现出更多的层次和空间感受。
入口是深灰色树脂漆和亮橙色树脂漆盒子式的色块组成,由深灰色切入,慢慢走进去后通过橙色的视觉冲击进入主空间展厅,展厅中间由入口玄关的橙色依势而入,中间橙色地面和桌面漂浮在白色高光树脂漆地面上,高光材料让两侧感觉是水面般平静通透。
展厅是用于新产品展示以及内部人员分享会或PARTY的地方,活跃的气氛跃然而上。
入口是深灰色树脂漆和亮橙色树脂漆盒子式的色块组成,由深灰色切入,
慢慢走进去后通过橙色的视觉冲击进入主空间展厅。
展厅中间由入口玄关的橙色依势而入,中间橙色地面和桌面漂浮在白色高光树脂漆地面上,
高光材料让两侧感觉是水面般平静通透。
展厅是用于新产品展示以及内部人员分享会或PARTY的地方,
活跃的气氛感跃然而上。
模拟区域和自由办公区域
展区的靠窗部分以及右侧为模拟区域和自由办公区域,模拟区域分为模拟阳台和卫生间以及客厅厨房,可以将产品融入的同时营造场景式展厅的效果,
也可以成为设计师办公的一部分空间,自由办公区域融入其中。
模拟卫生间和模拟阳台区域
展厅的左侧空间为产品摄影棚区域以及阶梯会议室,用于新产品宣传讲演以及产品巡视检测等。紧接着就是CMF区域,用于材料展示和选材的区域,用于产品的各种材料可以通过墙面展示的方式更好的供设计师选材。
开放讨论区是用于各种学术讨论,观察室用于产品的检测观察。
产品研发设计需要很多材料小样,在CMF区域我们尽可能多的将墙面区域设置为材料展示区域,更方便设计人员相互交流和选择样品材料。
吸音棉装饰板内嵌的自由办公区域
原本的空间层高优势和大面积采光玻璃窗依然呈现在空间里,施工过程中也在不断权衡和协调,保证空间的完整度。
做完后其实和效果图感觉差不多,但是有点小遗憾,很多细节收口的处理施工队并没有按照施工图去处理,这里面的原因很多,不过也正是因为如此,让我们也明白了,有时候项目的完整不一定是说仅仅保证了空间效果,其实最重要的在于保证了细节的把控和现场的契合度,需要每一个环节的环环相扣,最后呈现的才会越完整,这里的完整包括整个过程。
施工过程中的视察与沟通交流
最后奉上出差过程小样以及拍摄的简短的小视频,
在惠而浦的冰冷的大楼群中会有这么一个充满自由,充满色彩和活动以及充满想象力的空间,
这里是整个厂区的核心点,在这里可能将会出现未来在市场上畅销甚至改变人们生活方式的新电器和电子产品,在这里,可能将会出现改变人们一贯思维的电器样式,一切的一切,都将发生在这里,所以,需要放开了大胆想,这一份“自由的呐喊”就在这里......
UDstudio(unoduestudio)是2013年在意大利米兰成立,UDstudio致力于原创设计,设计类型以商业空间和精致型定制私人空间为主,我们用心对待每个项目,让空间因为设计而体现价值。
DESIGN PROJECT MORE
客服
消息
收藏
下载
最近






































