查看完整案例


收藏

下载
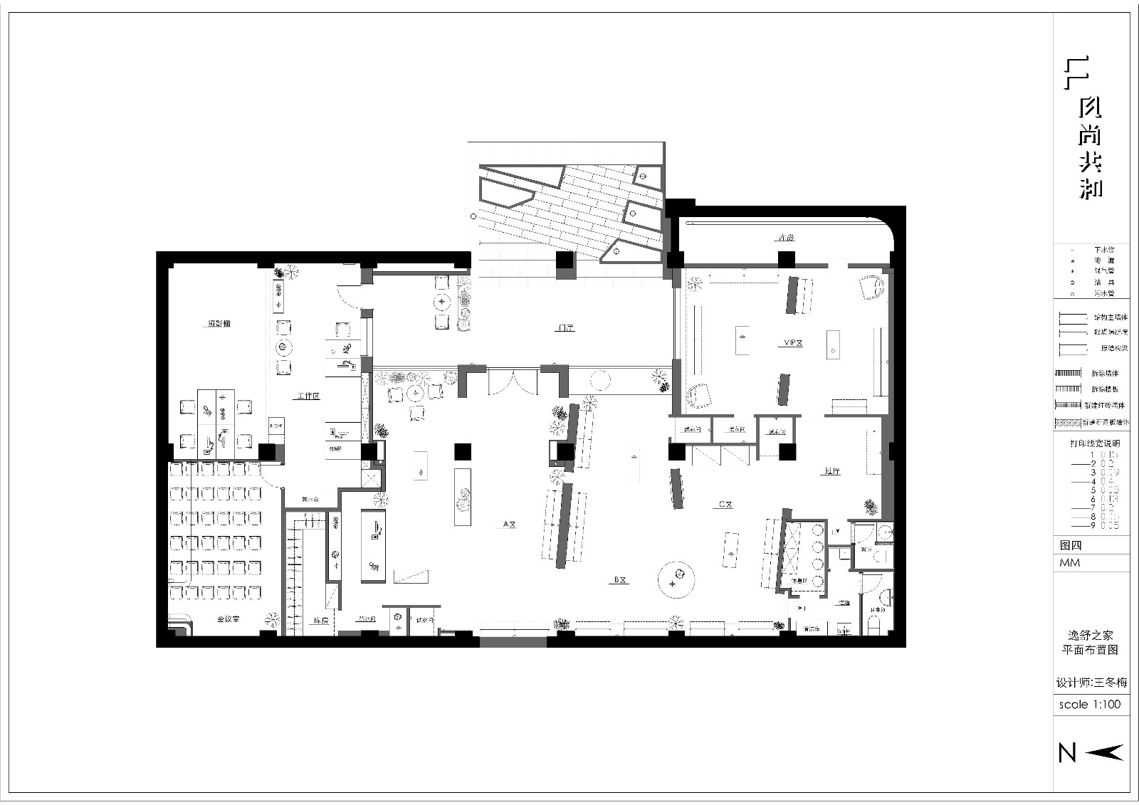
此案一层原本是业主经营多年的逸舒之家女装店,现准备把此品牌移到房东空置多年的地下室,再在原来一层的空间创立崭新的“晞庭设计师品牌店”,所以便有了现在分布在两层的两个不同风格的店面。
在时尚体现上相对于北上广出现断层的2.5线城市太原,设计师颠覆打造了以私宅形式出现的“晞庭设计师品牌店”,服装以设计师原创为主,空间则以一处现代感极强的大宅气氛来烘托本已具有强烈设计感的服装品牌。本案选用了晶莹剔透的无边玻璃砖、本色拉丝不锈钢以及经过酸洗处理的白色大理石,浑然一体地相交集在这个拥有“门厅、客厅、餐厅、卧室、衣帽间”的女装体验空间,创造了女装店新颖的销售方式,让客人如同身处自宅,增加仪式感地挑选每一件衣服。
原有的逸舒之家在地下室进行设计重建,多步的下沉楼梯及窄小的门头如何引起路人的关注是最大的难题,所以在这个问题上设计师做了大胆的尝试。除了扩宽门头外,把楼梯有节奏地倾斜设计,增加绿植区域,舍去20平米销售面积,退出一个舒展的户外门厅,把传统的框架地下室结构注入了生气。室内空间保持了原有的混凝土梁与柱,与梁旋转5度的方向新建了区域之间的隔墙,减弱了层高低的视觉效果而且还带来了轻松的设计感。低成本的墙面乳胶漆选用了清新的色彩为这个时尚的地下室女装店增添了国际气质,给客人带来了品牌信任感。
贯穿整个空间的实木地板选用了欧洲复古的鱼骨铺法,是为了增加空间时尚经典的属性,与定制的不锈钢石材衣架形成对比效果,反而体现了一股变革的审美气质。
在墙面的烘托上也运用了融合手法,灰白色的墙板以简明的线条出现,对于服装做出了不喧宾夺主的陪衬,同时也更强调了“宅”的存在。
来自英国的家具、法国的麻质帘都恰如其分地提升着空间的颜值。
在“餐厅”出现的极简的水吧台会让客人放下对销售的戒备,轻松地在“大宅”中享受休闲的时光,去留意中意的产品,这样的空间节奏一直延续到下一个区域。
为了区别原始梁,也为了减少低空间的压抑,新建了与梁扭了5度的墙体。
把墙面设计出彩色的效果,增加了空间对比度,轻松解决地下室的不适感。
大胆做出户外门厅,把客人从下沉式楼梯代入,以退为进。
楼梯倾斜处理,与原本建筑形成的角度,增加神秘感与幽默感。
工程名称:晞庭设计师品牌店逸舒之家女装店
设计单位:山西风尚共和室内设计
主要材料:实木地板、不锈钢、玻璃砖、石材、马赛克、乳胶漆
坐落地点:太原市寇庄西路
完工时间:2018年3月
山西风尚共和汉诺威尔装饰工程有限公司 首席设计师
中国建筑装饰协会高级室内建筑师
2014年筑巢奖样板间空间 优秀奖
2014年金堂奖商业空间 优秀奖
2015年金堂奖商业空间 优秀奖
2016年金堂奖商业空间 优秀奖
2017年筑巢奖商业空间 优秀奖
现代 购物空间 简约 绿植 工业风
客服
消息
收藏
下载
最近













































