查看完整案例


收藏

下载
什么样的空间,可以满足居住和摄影工作室的双重需求?这个答案,可能只有让摄影师兼屋主本人来回复你了。
照片里漂亮的主角,便是我们今天介绍的屋主:子弹。原先从事服装图案设计师的她,在2017年转行做了摄影师。
屋主:子弹 商业摄影师,同时也是图案插画师,豆米咖品牌主创。
拿着有限的改造资金,子弹在“偏远区域 小空间 电梯房”和“老城区 大面积 老房子 爆改”的两种组合中,选择了后者,于是,便有了我们今天看到的家,同时也是她的摄影工作室。
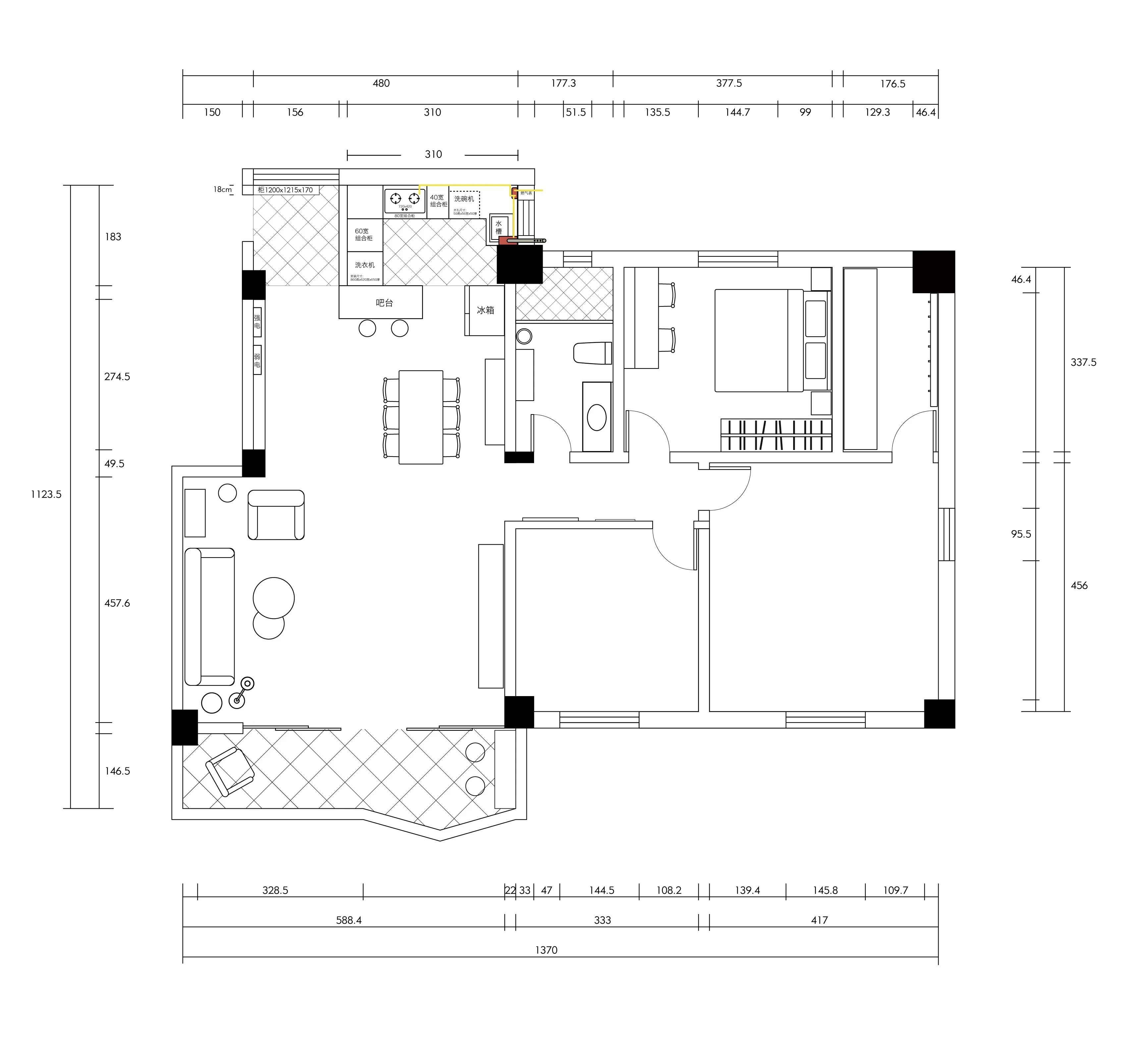
坐标:广州 面积:135㎡ 户型:三室一厅 费用:35万左右
子弹花了3个月的时间,将这个20多年的老房子全部砸掉重新装修。因为预算问题,从软装到硬装,她都亲力亲为,不仅临时学习建模软件,还实地操作,反复测量并决定空间的动线,摸索物件摆放的合理性。
这里是三条来自子弹的装修贴士:
1、要坚持自己的想法,不要受装修师傅所谓的“经验”影响。 2、提前设定好自己想要的风格的样子,多看图消化,结合自己的想法再执行。 3、合理利用好每一寸空间,毕竟“每一寸”都是人民币呀!
01 / 玄关 专属入门的仪式感
一进门,就可以看到一面干净的形象墙,“fantan”是子弹和丈夫两人名字的结合,如今也是他们工作室的名字。
可能是摄影师的缘故,子弹很爱百叶窗下的光影,透气透光之余,也起到隔绝室外杂乱感的作用,让视觉焦点集中在形象墙的位置上。入口的柜子上,有摆件及植物,还有淘回来的日本黑胶唱片。
02 / 客厅 一个多功能的娱乐厅
穿过走廊,透过拱形门洞,可以看到开放式的客厅、餐厅和厨房。子弹特地将沙发的位置往阳台的方向挪动一些,这样进门的视线会显得更加开阔。
客厅对于子弹来说,就是一个“多功能娱乐厅”。有坐能卧,还能吃喝玩乐!在沙发的对面,并没有安置电视,而是预留了一堵墙面。当投影仪投射到墙上时,约有150寸大小,加上回音壁,分分钟实现了家庭影院,在这里玩体感游戏也是不在话下!
客厅的色调主要是雾蓝 灰色 棕色,营造出一种轻复古感。子弹特地选择了三款不同颜色的沙发,灰蓝,姜黄色和棕色皮,布置成3 1 1混搭模式。客厅右侧被打造成了杂志墙,不仅实用也起到装饰效果。
沙发左侧的角落放了一个玻璃柜子,里面装满了玻璃器皿。 再往里走就是阳台。
阳台,是子弹专属的“小后花园”。地板与花砖象征性地隔开了两个区域。阳光加绿植,也让这里成为了一处自家打卡拍照的好地方。
03 / 餐厅-厨房 满满的都是烟火气
对于子弹来说,最温暖的地方莫过餐厅,毕竟“吃”可是头等大事。因为平时拍摄需要不同的椅子作为搭配,因此子弹选择了各种造型的椅子进行混搭。
靠近桌子旁边,子弹定制了一个餐边柜,包括16个收纳位置,可以将各式各样美美的餐具放置在里面。每个柜子门采用长虹玻璃,能让餐具在里面透出朦胧的造型感。柜子的左侧是一个双开门冰箱,将厨房与餐厅联系了起来。
餐厅对面的一面墙,两侧都有无法拆除的柱子,因此子弹特地找木工定制了两层搁板,很好利用了墙面空间,变成了杂物收纳区。满眼瓶瓶罐罐,看似杂乱无章,却透露出满满的烟火气。
04 / 主卧 解锁复古感爆棚的“家当”
这里既是家,也是平时需要兼顾摄影工作室功能的空间,因此,子弹将最大的卧室,打造成摄影展示厅。为了营造复古感,房间有一半的墙面,被刷成了深蓝色。
深色柜子上的摆件及装饰品,以做旧的黄铜和西洋古董物件为主,都是子弹平时去各地旅行时,从复古市集里采购回来的。
因为考虑到,如果整个房间都是深色会显得太昏暗,所以子弹也保留了一些白墙,可以灵活搭配其他元素进行拍摄。
05 / 卫生间 干净整洁依旧当红
子弹选择黑色的洗手台柜子和水龙台,去呼应地上的黑白图案花砖。墙面上还挂了一副搞怪画像,渲染气氛。
06 / 书房 新鲜感就是常挪常新
这个房间主要是用来办公的,主色调为绿色与白色,绿色墙位置布置了一张白色工作台,以简约风为主。另外的墙以白色为基调,看起来干净又通透。
对于子弹来说,保持新鲜感的秘诀就是“常挪常新”。目前,书房里有一面白色的杂志墙,拐角处还有一个白色的玻璃高柜,放一些拍摄用的道具。 不过这些位置都是临时的。家是住出来的,每个角落,都在等着屋主根据自己的喜好,慢慢填充成自己最爱的样子。
客服
消息
收藏
下载
最近



























