查看完整案例


收藏

下载

翻译
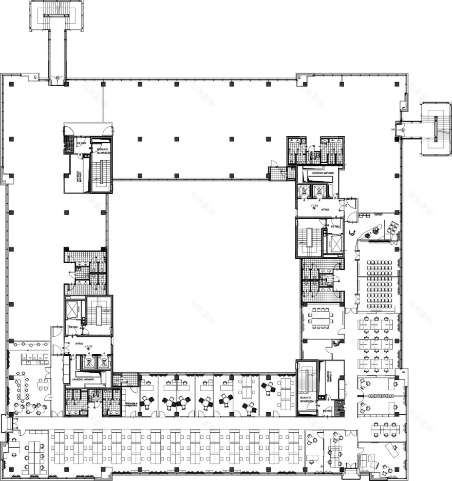
OMNICOM MEDIAGROUP Leader mondiale della pubblicità, marketing e comunicazione, ci ha coinvolti nella ristrutturazione dell' headquarter milanese. 3600 mq di uffici, di cui 1100 mq sono stati pensati, progettati e realizzati in soli due mesi, i restanti 2500 mq sono stati sistemati nel marzo 2017. Tutti gli arredi sono stati da noi progettati e realizzati da Reverso.
客服
消息
收藏
下载
最近


























