查看完整案例


收藏

下载
在济州岛西海岸,有一个名叫永苏里的小村庄。村庄附近的海里有两座无人居住的岛屿,分别叫做漆溪岛和水渡岛。从一个特定的位置凝视这两个岛屿,它们看起来就像一个浮出水面呼吸的座头鲸,宏伟而又神秘。一米民宿就建在这个特殊的位置上。
该民宿名字中的“1米”(STAY 1 METER)不仅仅意味着它的建筑是建在地面之上1米高的地方,还意味着心灵的距离,一米是使人们可以远离日常生活的轻松愉快的心灵距离。1米可以从实际建筑和抽象的生活来理解。这个名字就表达出了一米民宿的初始构思和最终的空间规划。身处一米民宿中,可以欣赏到四面八方的各种景色。在西边,在太阳落下的地方,可以看到的前文所提到过的漆溪岛和水渡岛。南面是风光秀美的党山。往东,则可以看到远处的汉拿山。在秋天,还可以欣赏花园中形成珍珠般的波浪的芒草与花架上的花;到了晚上,更是可以在屋顶欣赏到被繁星点缀着的夜空。
这个建筑的设计首先考虑到的,是在这个面朝大海的巨大的场地中间,房子应该是什么样子的。水平的屋顶是为了不破坏房屋周围的景色。一米民宿就像一艘小船,漂浮在芒草和麦田之间。在房间内,你可以清楚地看到日落的景色,余晖洒满了房子的每一个角落。
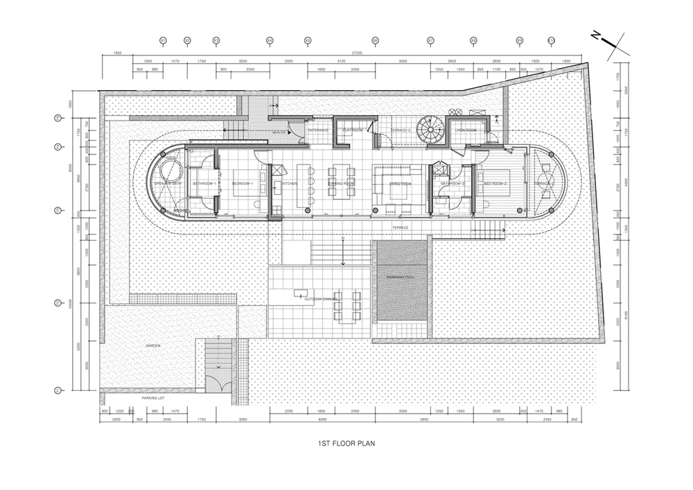
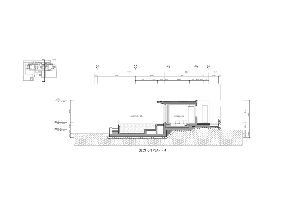
一颗种在了大门附近的朴树,像一颗迎客松一般,欢迎着客人的来访,这也是这所房子的象征。这个长椭圆形的1层建筑的两端各设有两个卧室,每个卧室都与一个秘密的空间相连。北侧卧室通向一个在椭圆形空间内的露天浴缸,而南侧的卧室与完全开放的外部区域相连。中间则是客厅和厨房的所在。这个空间格外的不同,设计师通过降低客厅的地板,使得人们能够有一惬意的空间和一个适合向外远眺的视野。因为房子朝向大海的一面全部是玻璃材质,所以周围的风景和日常生活轻而易举地与自然中时间的流动和季节的变化融为一体。从外面看,玻璃材质的一侧则反射光线与周遭的景致,使得建筑融入到周围的环境当中。
在室外,有一个与海平面相同高度的小型游泳池,以及一个与芒草一样高的户外桌子。室外设施,花园与停车场所使用的材料的高度,颜色和纹理全部都经过精心的设计,与周围环境融为一体。建筑外面还有一个通向屋顶的圆形楼梯,在那里可以欣赏周围全部的景色。
项目名称:STAY 1 METER 项目位置:韩国济州岛 项目类型:设计酒店/民宿 建筑面积:99.96 m² 设计公司:Z_Lab 摄影:Lee Byunggeun 文字:archdaily
现代 国外 民宿 简约
客服
消息
收藏
下载
最近





























