查看完整案例


收藏

下载
Korea IHWARUAE Residential
设计方:Z_Lab
位置:韩国
分类:居住建筑
内容:实景照片
图片:35张
摄影师:Kim Duck-chang
这栋住宅的设计与历史和文化遗产共存着。IHWARUAE沿着Hanyangdoseong城堡修建。IHWARUAE位于以梨花壁画村出名的梨花洞,坐落在Hanyangdoseong堡垒的东脚下。这是Z-Lab的第五个保持项目。你仍然可以找到位于山顶上现在破旧、以前别致的住宅的平台,这些住宅修建于二十世纪五十年代。在Z_Lab的努力工作之下,旧的住宅得到了重生,你可以在这里举办派对、得到治愈,并且在堡垒温暖的怀抱和首尔的美景中唤醒你的灵感。
UAE与Hanyangdoseong堡垒之间有着一个非常特别的关系。Hanyangdoseong堡垒是朝鲜王朝600年首都的象征,通过在它的历史和文化价值上增加新的、明亮的小屋,这个堡垒期待着被联合国教科文组织列为世界文化遗产。坐落在堡垒东脚下的梨花壁画村变成了一个主要的旅游景点,当然这样的结果是由居民和当地政府作出了巨大努力的结果。居民们努力寻找着充分利用村庄潜能的方式并与历史的场址共存。
译者:蝈蝈
A lodge designed to coexist with history and cultural heritage. IHWARUAE sits alongside the Hanyangdoseong Fortress.IHWARUAE is located in Ihwadong which is famous for Ihwa Mural Village, at the eastern foot of the Hanyangdoseong Fortress. It is Z-Lab's 5th stay project. You can still find the traces of time in the shabby chic house on the hill which was built in the 1950'. With the touch of Z_Lab, the old house was reborn as a place where you can have a great party, get a sense of healing, and awaken your inspiration while enjoying the warm embrace of the fortress and the scenic views of Seoul.
UAE has a special tie with the Hanyangdoseong Fortress. With new light shed on the historical and culture value of the Hanyangdoseong Fortress as the symbol of the 600-year-old capital of the Joseon dynasty, the fortress is expected to be listed as a World Heritage Site by the UNESCO. Ihwa Mural Village which is at the foothills of the eastern fortress became a major tourist draw as a result of the vigorous effort made by the residents as well as the local government. The residents have been seeking ways to fully utilize the potential of the village and coexist with the historical site.
韩国IHWARUAE住宅外部夜景实景图
韩国IHWARUAE住宅内部实景图
韩国IHWARUAE住宅示意图
韩国IHWARUAE
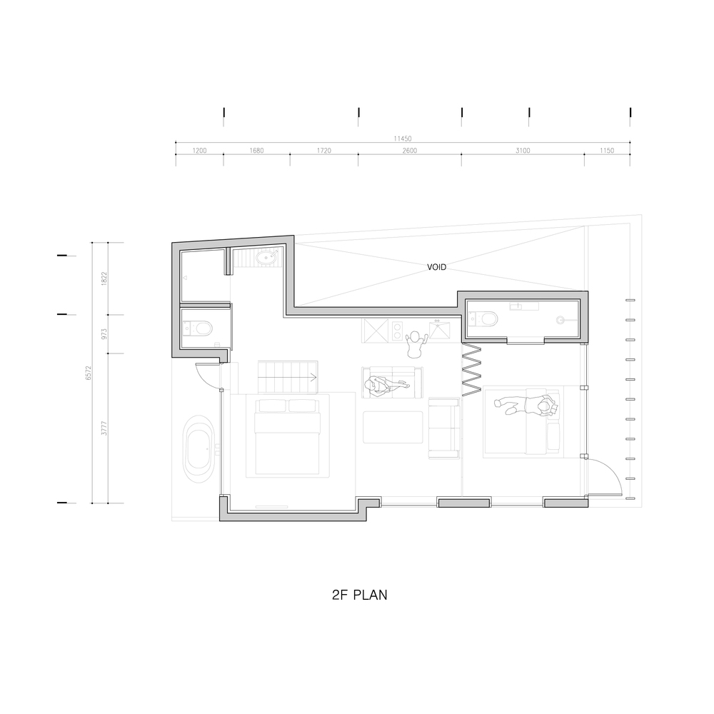
住宅平面图
韩国IHWARUAE住宅立面图
韩国IHWARUAE住宅剖面图
韩国IHWARUAE住宅平面图
客服
消息
收藏
下载
最近





































