查看完整案例


收藏

下载

翻译
Il progetto prende forma all'interno dell'edificio a destinazione terziaria progettato nel 1953 dall'Architetto Mario Bacciocchi, caratterizzato da aperture ritimate e rigorose che si affacciano, con una stupenda vista, sull'antistante Piazza Duca d'Aosta e la Stazione Centrale.
L'idea si basa sul recupero degli spazi esitenti e la loro armonizzazione all'interno del nuovo programma insediativo in rapporto anche con la “scatola” architettonica ospitante.
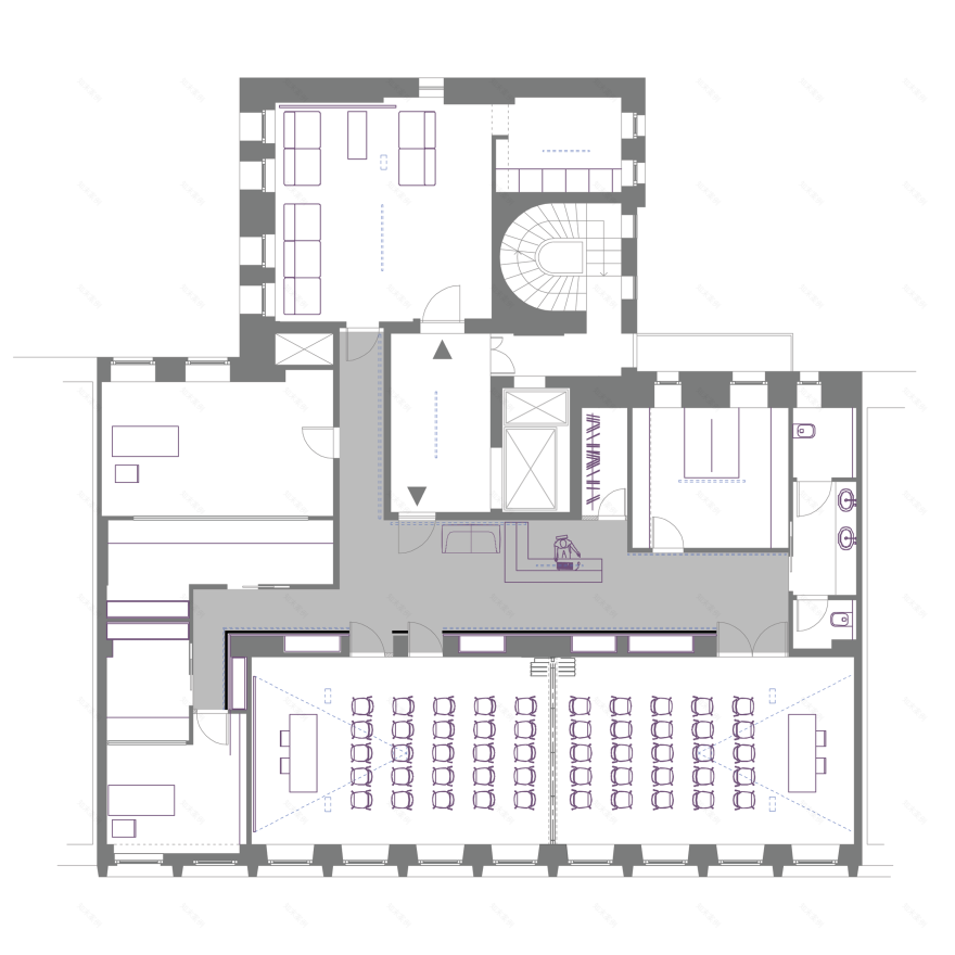
Una delle prime valutazioni fatte è stato il recupero pressoché globale di un grande salone sul lato nord, dove si gode della vista su Piazza Duca D'Aosta. In seconda fase si è provveduto ad organizzare gli spazi operativi facendoli ruotare attorno all'asse centrale di distribuzione costituito da un corridoio che si dirama poi in una appendice che collega una seconda sala meeting sul lato sud dell'edificio.
L'asse centrale si sviluppa longitudinalmente con una grande forza lineare. Qui una lunga parete di legno, di 16 metri di lunghezza, si propone al visitatore da destra a sinistra con continuità secondo un gioco geometrico intagliato nella boiserie/armadio in legno di rovere, che abbraccia gli spazi di comunicazione tra le stanze satellite. L'illuminazione a LED ed in parte la luce naturale, che permea dalle porte in acciao platino e vetro latte, completano l'effetto voluto: uno spazio dalle linee chiare, luminoso e dinamico
客服
消息
收藏
下载
最近
















