查看完整案例


收藏

下载
PINGJIN CENTER
上海,闵行 Minhang, Shanghai
“春未老,风细柳斜斜。试上超然台上看,半壕春水一城花。烟雨暗千家。”——《望江南·苏轼》平金中心位于上海七莘路商务圈,地铁 12 号线七莘路站,距离虹桥机场仅 7.7 公里,地理位置十分优越!整体项目集品质办公与时尚街区为一体,功能配套齐全,环境优美,空间丰富,成为上海新的城市地标。
Shanghai Pingjin Center, located in Qixin Road Business District, enjoys a superior geographical position, right near Qixin Road Station of Metro Line 12 and only 7.7 kilometers away from Hongqiao Airport. The overall project that integrates high-quality offices and fashion blocks together, turns to be a new landmark in Shanghai, with complete functions, exquisite environment, and rich space.
占地面积约 700 平方米,建筑面积约 470 平方米,作为整个综合体项目的城市名片,在满足基本销售展示功能的同时,更兼具颜值。
The exhibition center is close to Gudai Road, covering an area of about 700 square meters, with a construction area of nearly 470 square meters. As a city card for the complex project, it not only possesses the basic functions of sales and displays, but also stands out in the appearance.
▼实景图 Photos
受到密斯凡德罗设计的范斯沃斯住宅启发,建筑单体由前后两个封闭空间组成,外部附上玻璃盒子,便形成了走道、沙盘等等开放性流动空间。
Inspired by the Vansworth House designed by Mies van der Rohe, the individual building is composed of two enclosed spaces, the one behind the other. With the glass boxes attached to the façade, it creates open, free-flowing spaces such as aisles and sand tables.
▼范斯沃斯住宅 From Internet
全透明的玻璃盒子通体发光时就像镶嵌在七莘路上的一盏灯,璀璨温暖。内部展示空间透明、精致,且富有艺术感,工作人员与访客在建筑内像鱼儿一般缓慢游动,恰巧,与路上的行人互为画中。
A full-transparent glass box looks like a warm, bright lamp inlaid on Qixin Road when it glows totally. The interior display space is clear, exquisite, and artistic, within which the staff and visitors swim slowly like fish, happening to constitute a painting with pedestrians on the road.
▼沿街透视图 StreetView
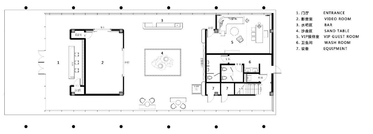
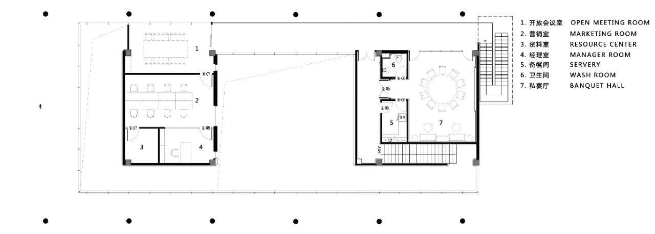
建筑一层空间功能包含了放映厅、VIP 接待、卫生间等,二层包含了办公和宴会厅。
The spatial function of the first floor includes the projection hall, VIP reception, restroom, etc., and the second floor contains the office and banquet hall.
▼主要功能 Main Function
建筑材料主要选用了铝板,玻璃和石材。深色的屋面和地面,配合大面积的玻璃墙身以及两层通高的巨大木柱,细细的刻上像年轮一样记事的痕迹。每一寸凹槽,每一尺凸起,都是对大自然最别具匠心的致敬,也是为这座喧嚣的城市,引入一处淳璞归真。
The building materials are mainly aluminum plates, glass, and stones. The dark roof and floor match with the large-area glass wall and two huge full-height wooden pillars with traces of memories like annual rings. Every inch of groove and every foot of bulge is an ingenious tribute to the nature, and introduces a purity to this noisy city.
▼廊柱 Pillars
细细的金属柱子擎起一片屋檐,一池春水倒映建筑,魔都掩映在点点星光里,这正是我们正要追求的意境。建筑两侧的水池作为景观缓冲带,清晰地将建筑与人行道分隔开来。水中的倒影与建筑相连,模糊了强烈的分隔感。
In addition, thin metal pillars lift a roof, a pool of spring water reflects the building, and the magic city is hidden in starlight, which is exactly what we are trying to pursue. Moreover, the water on both sides as a landscape buffer clearly separates the building from the sidewalk. Ingeniously, the reflection in the water is connected to the building, blurring the sense of separation.
▼实景图 Photos
主入口设置了一个抬起的平台,与室外形成一个高差,使得水景延伸进平台之下,营造出玻璃盒子漂浮在水面上的场景。
The main entrance is set up with a raised platform, forming a level difference with the exterior, so that the waterscape can extend under the platform, thus creating a scene where the glass box floats on the water.
▼主入口水景 Water Feature
步入玻璃大门,横竖格子的金属屏风逆着光透出精致。从室内到室外,由表及里打破区隔,让空间与自然无缝融合。
Stepping into the glazed door, you will feel that exquisiteness exuded from the lattice metal screen against the light. From the interior to the exterior, the partition is completely broken, allowing the indoor space to blend perfectly with nature.
▼实景图 Photos
从接待台左转,沿着玻璃幕墙步入,墙上放映着这个项目的介绍。立体城市公园为目标打造的这一处商业体是城市的栖息地。让生活回归自然,让质朴反哺灵魂,是这个时代对空间美学最真挚的呐喊。
Turn left from the reception counter, and walk along the glass curtain wall that shows the introduction of this project, you can savor the commercial complex, the city’s habitat with the goal of building a three-dimensional park. In brief, letting life return to nature and the simplicity feed the soul is the sincerest cry for space aesthetics in this era.
▼实景图 Photos
在惬意的饮茶空间坐下,窗内是长长案几上可以把玩的小物件,茶碟林总,窗外便是是细细的紫竹,让心情沉静。
Sit in the cozy tearoom to experience an agreeable life. Inside the window are some gadgets, multifarious saucers on along table. Outside are thin black bamboos which can make you calm.
▼实景图 Photos
居有竹,食有肉,拾阶而上,二楼精细的落地窗,不过两手宽度,透过缝隙可以看到楼下熙熙攘攘的人群,恍若隔世。推开门,一张十多人的圆桌,秋色一样的餐具饰品,待你入席。
Living in such a pleasant environment with both bamboos and meat, you may climb by steps to the second floor to overlook the bustling crowd through the fine French windows of two-palmwidth. Then open the door, and a round table for more than ten people, various tableware and accessories tinted with autumn colors, are waiting for you.
▼实景图 Photos
像苏轼的诗、词,平金中心的建筑、物件、空间等等在这里都是去繁化简,一板木,一缕光,足以让心境沉淀,让灵魂驻足。用设计连接现代艺术与自然美学,让生活回归质朴,使得平金中心在七莘路商务区成为一道亮眼的风景线。
By design, the connection of modern art and natural aesthetics has brought life back to rusticity, turning the Pingjin Center to be a distinctive landscape in Qixin Road Business District.
一层平面图 First Floor Plan
▼二层平面图 Second Floor Plan
▼东立面图 East Elevation
▼南立面图 South Elevation
业主名称:上海平莘房地产开发有限公司
项目地点:上海市,闵行区
设计/建成时间:2018 / 2020
建筑、室内 - 软装采购、景观设计:上海骏地建筑设计事务所股份有限公司
设计团队(建筑):于超、季雨蒙、孙文清、郭婷婷
设计团队(室内 - 软装采购):丁甫、郭亚军、杨佳妮、齐雅静
设计团队(景观):杨馥与、李强、杨帅
Project Information:Owner Name: PinXin Real Estate.
Location: Minhang, Shanghai
Design Area: 470㎡
Design / Built Year: 2018 / 2020
Architecture 、Interior - FFE 、 Landscapee Design:Shanghai JUND Architects Co., Ltd.
PIC: Jason Hu
Project Director: Hua Huang
Design Director: Lei Wang , McLisa Zhang
Project Manager: Gary Zhu
Team Members(Architecture): Chao Yu, Yumeng Ji, Wenqing Sun, Tingting Guo
Team Members(Interior - FFE ): Fu Ding, Yajun Guo, Jiani Yang, Yajing Qi
Team Members(Landscape): Fuyu Yang, Qiang Li, Shuai Yang
客服
消息
收藏
下载
最近



























