查看完整案例


收藏

下载
“隐”屏风的圆形花窗宛如一轮明月,半遮半透,不一样的玄空造景设计,可谓别出心裁。如山如月如云, 在形、境、韵的层次上进行感官的叠加。
“寓”一个个间隔一座座威风凛凛的石狮子,而石狮象征着一种富贵吉祥和神圣不可侵犯的气势。
“墨”客厅回归空间自然质朴的天性,沉静清淡的色彩,让整个空间的氛围有着中国浓浓水墨之感。透最本质的材料把中国的朦胧水墨之美呈现。
中国古典设计讲究对称,让协调的感觉平衡,与传统风格一样追求内敛,朴素。搭配上端庄成熟的中式家具,营造出一个充满文韵与庄重的中式居家氛围。
坐酌泠泠水,看煎瑟瑟尘。
无由持一碗,寄与爱茶人。
“酒”一壶好酒,共同创造的净土。区域的设计满足了三两好友谈笑风生,品酒香之意。储藏柜供居者提供收藏空间;江上青帘映白沙,垆头美酒玉无瑕。
“雅”主卧承袭了古典元素中的精髓,它处处散发着优雅、大气、唯美的东方韵味。对称的设计,从细节处透着古典雅致,在此置身其中,让人只想隔绝一切喧嚣杂念,回归最真实的恬淡心境。
“简”次卧的设计并不拘泥于传统的中式元素,而与现代元素相互并存,以简约美为主,以其独有的姿态,营造出简洁大气,儒雅的理想休憩之所。
“跃”愿给你一个梦的空间,展示你无穷的想象力,是期望的爱,让孩子快乐成长,跃跃向上。
设计机构 | 潮州百木室内设计机构
项目性质 | 住宅公寓
项目地址 | 潮州 · 海博熙泰 ·五期样品房
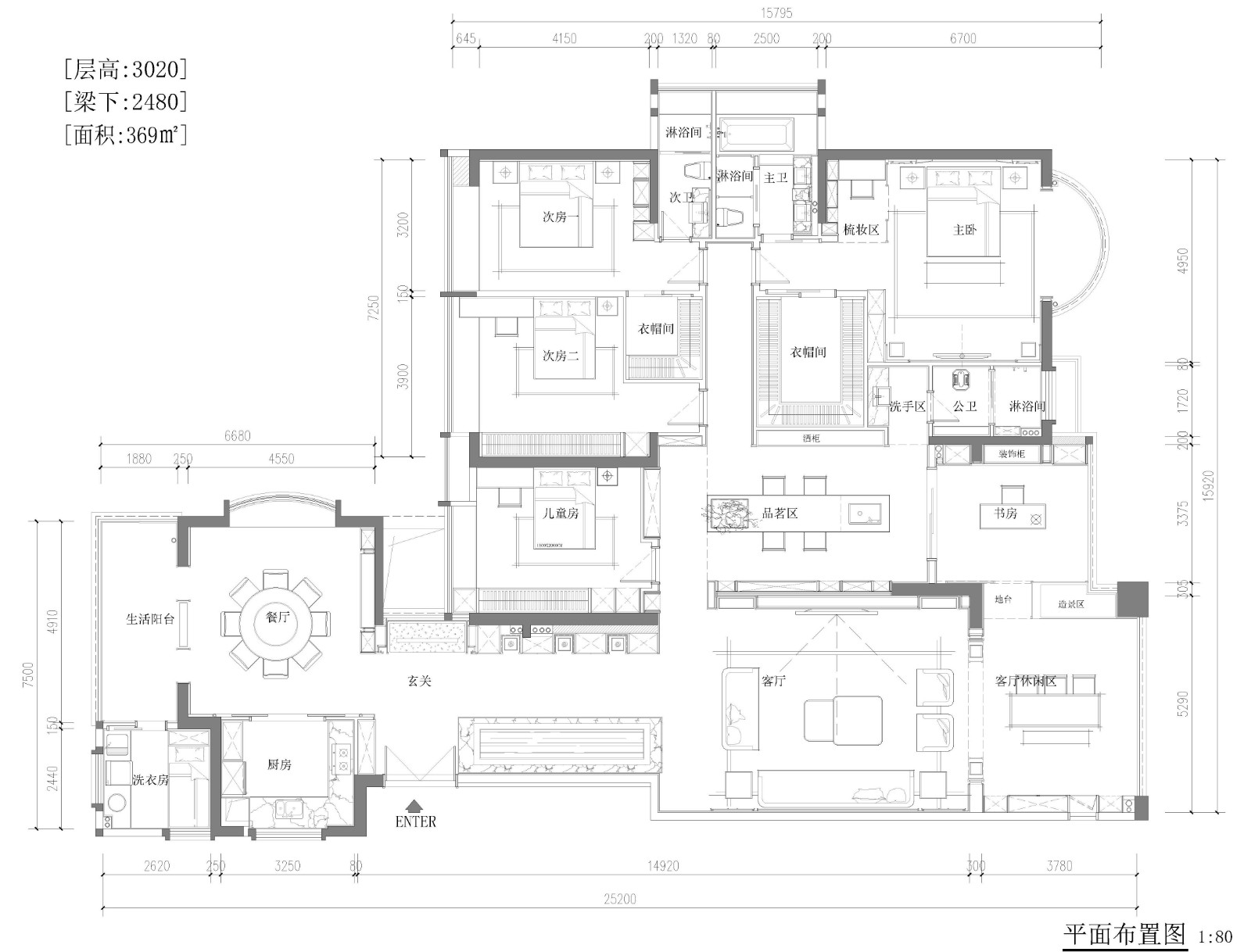
项目面积 | 369m²
刘树煌设计总监创立百木室内设计机构,拥有多年的家居、样品间、商业空间、酒店等设计经验。有良好的审美能力和独特的创作风格,同时对时尚有着敏锐的嗅觉。注重精益求精,臻致将自己的设计做到最好
新中式 住宅 典雅 东方
客服
消息
收藏
下载
最近


































