查看完整案例


收藏

下载

翻译
È stato appena inaugurato l’edificio pubblico che opera una riqualificazione di Spelonga, frazione di Arquata del Tronto (AP), ridisegnando il panorama di una delle zone più colpite dal terremoto, che nell’agosto del 2016 ha investito il centro Italia.
Il Progetto porta la firma di Gianluca Fontana, socio dello studio LGSMA con sede a Roma, e si inserisce all’interno di un progetto più ampio, che prevede la nascita di altre due costruzioni destinate all’uso pubblico, che verranno ultimate in tempi brevi.
L’edificio e, insieme a esso lo spazio esterno che così viene tracciato, definisce i suoi utilizzi e le sue forme a partire dal paesaggio delle montagne marchigiane, che dominano l’area, mantenendo un forte legame con il territorio.
L’opera, realizzata nel pieno ascolto della comunità locale e delle sue esigenze, è presto diventata il nuovo punto di aggregazione degli abitanti, la piazza, riuscendo allo stesso tempo a ricucire il legame con l’ambiente naturale.
Abitare la montagna
Il Centro Polifunzionale si inserisce armoniosamente nel paesaggio, dal momento che nasce e prende forma a partire da un’analisi attenta del territorio marchigiano e dal rispetto della sua identità, del genius loci. Lo si nota già nella struttura dell’edificio, che riprende i profili delle alture che circondano il paese, collocato all’interno del Parco Nazionale dei Monti della Laga.
Grandi facciate vetrate, triangolari costituiscono gli ingressi della costruzione, restituendo all’ambiente la luce vivida del panorama montano, oltre a permettere di mantenere la continuità visiva fra interno ed esterno così come fra ambiente artificiale e naturale, integrandosi con naturalezza. “La luce intensa, abbagliante dei Monti della Laga segna contorni netti nelle cose –afferma Gianluca Fontana–, nei profili della montagna come in quelli delle abitazioni, compone il vuoto, marca il pieno. A quella luce volevo fare omaggio, mettendola al centro del progetto.”
Anche i materiali scelti rappresentano questo orientamento progettuale, che privilegia il legame con il luogo ed enfatizza gli effetti di luce. In particolare i rivestimenti esterni sono stati sviluppati da Gianluca Fontana in collaborazione con l’azienda SanMarco Terreal, appositamente per l’opera; si tratta di formelle in terracotta, che richiamano i materiali locali, in cui predomina il marrone della terra dei Monti della Laga e che danno alle falde della struttura una vibrazione di luci ed ombre dalle molte gradazioni.
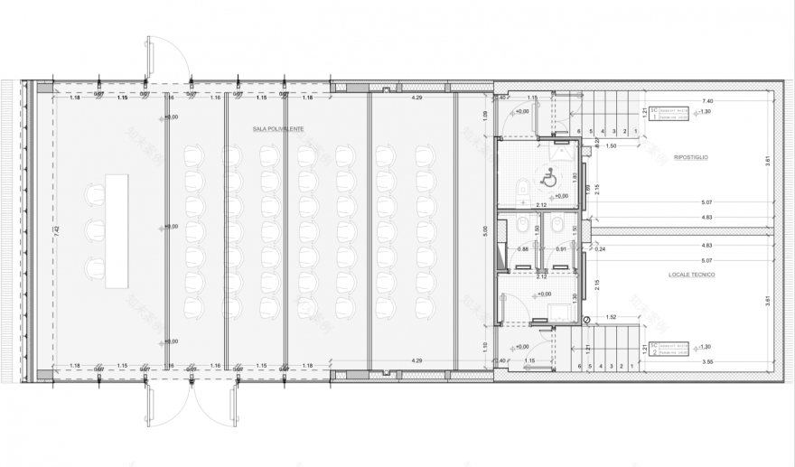
Allo stesso modo lo spazio interno, di 160 mq, fa largo uso del legno, di cui le aree boschive circostanti sono ricche, con una parete completamente rivestita in legno che prosegue sul soffitto della sala.
Inoltre la forma archetipica del triangolo e della piramide della struttura nasce dal desiderio di tornare alle forme primigenie dell’architettura. Afferma, infatti, Fontana: «Il triangolo suggerisce un ritorno al grado zero dell'architettura, ai primi insediamenti rurali, che in un contesto di tale distruzione dovuta al sisma, non può non essere una dichiarazione di intenti. Un necessario ricominciare da capo, per rivolgersi al futuro con uno sguardo alla natura e uno alla storia».
Uno spazio per tutti
Con l’obiettivo di rimettere al centro l’uomo e la sua naturale spinta alla socializzazione Fontana disegna uno spazio pubblico inteso come luogo di aggregazione e scambio, sia nei suoi ambienti interni che nelle aree esterne. Come in una piazza, attività differenti possono aver luogo contemporaneamente e integrarsi, senza ostacolarsi l’un l’altra.
La particolare struttura dell’edificio lascia spazio, infatti, alla massima versatilità d’uso. L’interno è adibito a sala di proiezione, biblioteca, luogo di culto nella domenica oltre a conservare ed esporre cimeli storici del ‘500 (la bandiera della battaglia di Lepanto), testimonianze importanti della storia locale. All’esterno, invece, la struttura a gradoni del tetto consente di avere delle sedute per gli spettacoli all’aperto e, percorrendo la scalinata, si raggiunge una terrazza panoramica, dove un binocolo permette di ammirare le forme imponenti del Monte Vettore e del Parco Nazionale dei Monti Sibillini. Qui lo sguardo si apre al panorama montano senza ostacoli visivi, per tornare a far proprio lo spettacolo della natura.
客服
消息
收藏
下载
最近





















