查看完整案例


收藏

下载
文化、服饰、艺术化的展馆
HERMIT IN THE CITY
有秩序和正确的几何比例关系
创造诗意和平衡的对话,美就产生了
ARTISTIC CONCEPTION
这种“先抑后扬”的空间意境
来源于东方中国的胸襟和智慧
TSPACE TENSION
内外有别 以邻相伴 甚为细致入微
DECLARATION
创造多元多维的情感语境
进而实现品牌对于外界的自我呈现与宣言
尽显艺术时尚感而自带治愈力
以最自然的状态静静地守候
既和谐又表达着彼此不同的细微情绪
效果图 3 P. 28
整个作品不仅是一个专业技术性的体现,
更多的是一种情感的表述,
唤起人们内心对生活最本质的印象。
撇去刻意的风格追求、受众、背景等等,遵循那些能够给人带来温暖记忆的东西,便是1CM设计认为
因为有了这样温暖的初衷和不刻意,才会有时尚、 年轻而精致的呈现。
参与设计:冉曼菲 邵洪霞
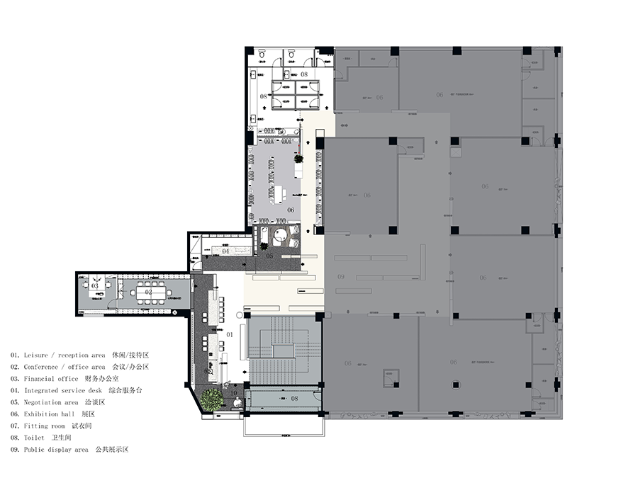
建筑面积:1200m²
摄影团队:谭啸 十摄影工作室
客服
消息
收藏
下载
最近































