查看完整案例


收藏

下载
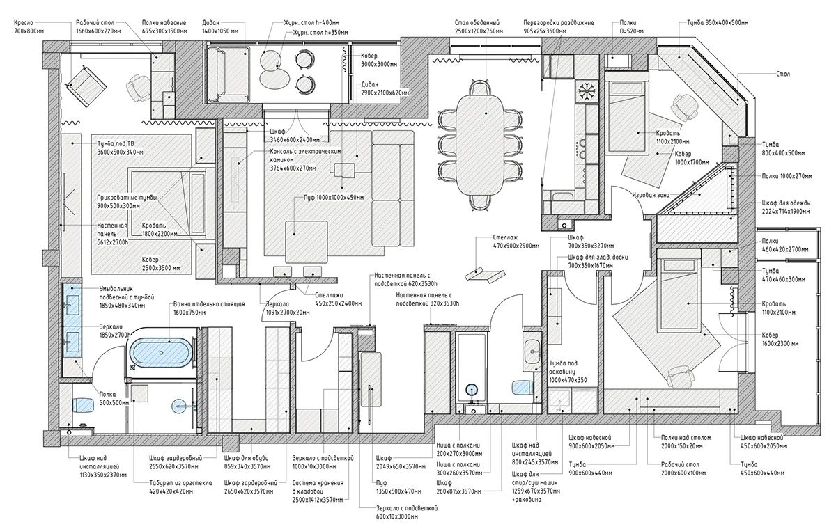
这是一套布局为三室一厅的公寓。空间内使用了大量木材、石材和天然织物,不同材料之间的搭配碰撞,渲染了一个惬意轻松又不失格调的空间。
入口的玄关使用了大面积的黑色,天花和全身镜后侧安装了灯带,灯带的光在黑色墙面上形成暖色光晕。
设计师在玄关放置了一个米色换鞋凳,浅色麻质面料调和了空间色调,同时天然的布料让人感到亲近感和温暖,一个金属质感的挂衣架从天花垂落。
灯轨一直从过道一侧延续至末端
客厅和餐厅都在开放区域内,大面积的落地窗和浅色系的使用使空间显得更加通透明亮。
织物面料的地毯和布艺沙发让客厅空间更加的亲近宜人。
客厅前方做了一个真火壁炉,上方安装了一个白色的吊柜,黑与白颜色形成鲜明对比。
吊柜安装了射灯进行照明。左侧的墙壁上有两个白色置物架,可以作为陈列架或者书架使用。
客厅外是一个封闭的小阳台
搭配黑色的餐椅简约又时尚
满足的照明的同时丰富了空间层次
厨房与餐厅之间做了半隔断。白色石材的墙面显出质感和层次。黑色橱柜和白色吊柜的搭配。
除了睡眠区和工作台以外,还包括一个卫生间,衣帽间。
房间的电视墙用层叠的木材做装饰,线性的灯带简约又有几何感。
浴缸放置在室内一侧的地台上。毛玻璃的隔墙能看到内部的淋浴区。周围的墙壁则用石材进行装饰。
以及水龙头和置物架都使用了黑色。黑白的经典搭配稳重优雅。
白色的洗漱台后侧是整面的镜子,镜子的白色背光显得轻盈有科技感。
三面墙分别做了鞋架,挂衣区和储存区。
满足不同种类物品的收纳
主卧靠窗处是一个小阳台,利用良好的采光将这里做成工作区,一半开放一半封闭的吊柜使工作台区域显得简约又大气。
阳台另一头是一个休闲区,休闲区的墙面延续了电视墙的做法,层叠的木饰面上用抽象画装饰,搭配布艺沙发椅仪式感满满。
儿童房的风格则更加富有活力,烘托出整个房间青春洋溢的氛围。
设计师利用多边形窗台做了写字台,并利用斜角做了两个矮柜。
木色的写字台搭配白色的椅子,铁艺的台灯造型可爱简单。
房间的角落还有一个游乐区
可以用来放置陈列品和书籍
柜子上方靠墙处摆放软垫、抱枕
另一个卧室放置了一个单人床,床头一侧做壁龛置物当床头柜使用,墙面旁边还安装线性的灯照明。
可以在视觉上有一定的引导作用
台面、搁板和收边处则用了黑色,整体的色彩层次更加丰富。
不规则形状的洗漱镜十分吸睛,使整体更加时尚又有现代感。
壁挂式的马桶将空间节约出来,水箱上方利用空间做了储物柜用于收纳,马桶一侧则是白色的收纳柜。
洗浴区用玻璃进行了隔档,黑色的置物区和玻璃边框,让干湿区域的分界更加明显。
客服
消息
收藏
下载
最近
















































