查看完整案例


收藏

下载

附件

翻译
Nell'arco dei quattro anni 1978-1982 ho svolto la Direzione Lavori dei 35 fabbricati dell'IACP presenti nella zona del Quarticciolo Municipio VII.
Lotto 7, Lotto 11, Lotto 12 costituenti :19 fabbricati; posti sul lato sinistro di ViaPalmiro Togliatti, percorrendola in direzione Via Casilina.( anche lato: Piazza del Quarticciolo).Edifici datati 1928.
Lotto Via dei Larici, risalenti agli anni 1950 circa (lato destro di Via Palmiro Togliatti) costituito da 16 palazzine tutte uiguali. In tale lotto, oltre i lavori descritti in seguito, ha avuto anche come lavori di manutenzione straordinaria, la demolizione dei preesistenti 16 tetti in legno e la ricostruzione di nuovi 16 tetti con struttura in ferro. La enorme difficoltà è stata l'avere gli abitanti dell'ultimo piano, presenti durante i lavori. Ciò che ha indotto la D.L. e L'Impresa a trovare la soluzione di prefabbricazione, a piè d'opera, di porzioni di falde autoportanti, per installarle con Autogru.
La manutenzione ordinaria è consistita nei rifacimenti di tutte le facciate, di tutte le impermeabilizzazioni delle coperture , nella riparazione e sostituzione delle persiane alla romana, nella tinteggiature di facciate e vani scala, nella verifica e sostituzione di gronde , pluviali, copertine, fognature e quanto altro rientri in tale categoria.
La manutenzione straordinaria ha interessato per le opere di maggiore complessità essenzialmente il lotto di Via dei Larici come detto, ma per tutti e 35 i fabbricati ha compreso le opere che ora si descriveranno.
Si è provveduto al rifacimento di tutta la rete idrica sia interna che esterna, eliminando la distribuzione a cassoni e dotando gli appartamenti di acqua diretta. Si è rinnovata tutta la rete elettrica, delle parti comuni e dei vani scala ,introducendo l'impianto di terra a servizio di tutti i vani scalae quindi alloggi. Si è realizzata la centralizzazione sia dei contatori idrici che elettrici al fine di agevolare la lettura dei consumi. Realizzazione di tre nuove cabine elettriche ACEA e di nuovi sezionatori elettrici per tutti i lotti ; si sono realizzati casotti in muratura, per la raccolta dei secchioni NU.
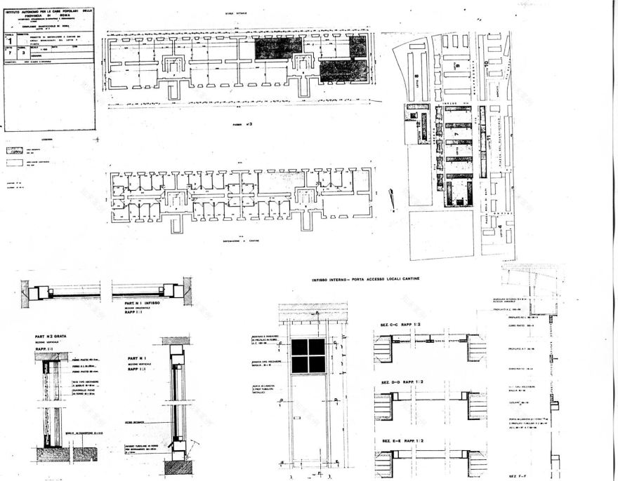
Oltre all'incarico della D.L. delle opere citate , l' Arch. Claudio D'Arcangelo è stato incaricato, in questo periodo, della progettazione della trasformazione degli spazi occupati dagli alloggi impropri demoliti (presenti negli scantinati) in locali cantine a servizio delle abitazioni dei piani superiori.
客服
消息
收藏
下载
最近














