查看完整案例


收藏

下载

附件

翻译
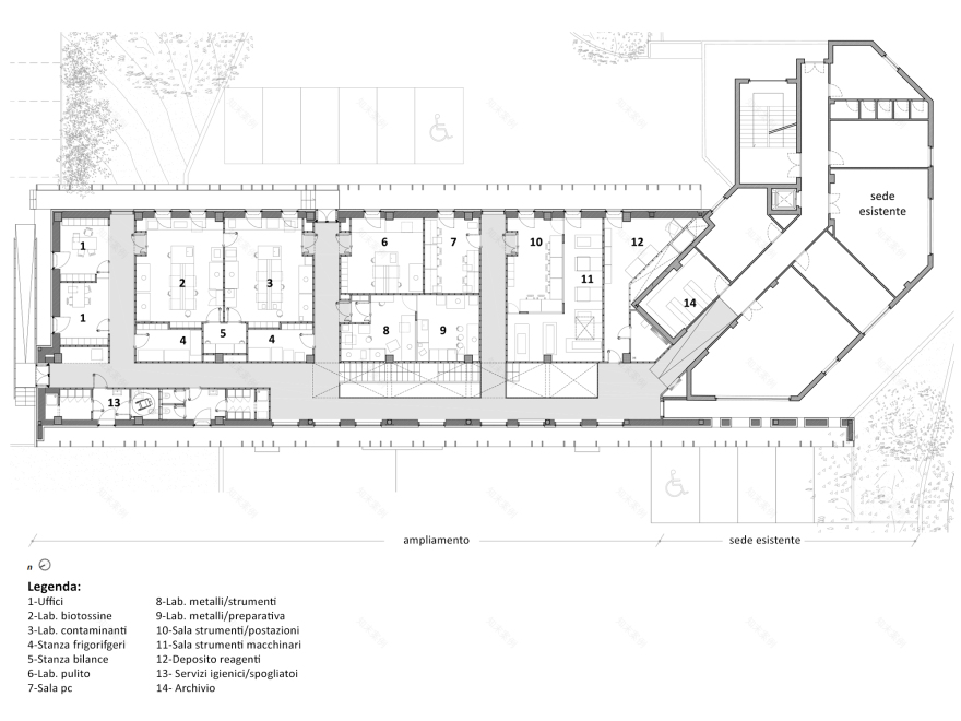
L’area è ubicata in una zona dedicata a servizi pubblici, a confine tra campagna e prima periferia di Ancona, nascosta ai principali flussi veicolari. Gli edifici esistenti erano due: la vecchia sede dell’Istituto Zooprofilattico Sperimentale degli anni 60, comprendente la residenza del direttore, ormai in disuso, e la sede attuale anni 90, di scarsa qualità. L’oggetto dell’incarico era la ristrutturazione della sede storica e la realizzazione di un collegamento tra i due edifici. Questi insistevano in una piccola zona del lotto che in gran parte era occupato da un’area adibita a parcheggi e a verde e che seguiva sostanzialmente la pendenza della collina e della adiacente strada di accesso.
Si è deciso di proporre un progetto che, oltre a rispondere alle reali esigenze della committenza, riusciva ad interpretare al meglio il luogo e l’inserimento degli edifici nel paesaggio. La proposta ha previsto la demolizione della sede storica e l’utilizzo delle nuove superfici come occasione per una riqualificazione generale dell’immagine dell’edificio attuale dell’Istituto, pur non coinvolgendolo direttamente nella riqualificazione edilizia. Il nuovo edificio (laboratori chimici, uffici e sala convegni/formazione) è pensato come un grande volume allungato che nel lato corto si allaccia alla sede attuale mentre dall’altro si adagia sulla collina esistente, integrandosi al paesaggio circostante. È organizzato su due livelli principali impostati in relazione diretta con i rispettivi livelli dell’attuale sede dell’Istituto. Gli spazi interni, negando la scontata distribuzione corridoio/stanze, godono di una molteplicità di percorsi che, da un lato permettono una fruibilità diversificata dei flussi e dall’altro innescano relazioni visive continue con gli spazi esterni. La percezione esterna dell’insieme è completamente trasformata: la facciata del nuovo edificio, pensata come un grande volume orizzontale è scandita da una serie di elementi frangisole verticali in larice lamellare. Questi si trasformano in parete celando l’edificio esistente e creando una sorta di filtro in continuità con l’ampliamento.
L’uso del legno, oltre che per ragioni legate alla sostenibilità e all’estetica è altamente simbolico. L’istituto Zooprofilattico, che si occupa di igiene e sanità pubblica veterinaria oltre che di controllo del sistema produttivo agro-alimentare, vive del rapporto continuo con la natura e con gli elementi che la costituiscono. La facciata e il rivestimento in legno, la continua mutevolezza delle ombre e dei colori del legno durante le stagioni, sono dunque metafora di appartenenza e interrelazione con essa.
I frangisole caratterizzano fortemente l’edificio nella facciate est e ovest, e sono il simbolo dell’attenzione rivolta all’involucro edilizio. Questo, insieme ad altri accorgimenti tecnici su materiali e impianti, conducono alla riduzione del fabbisogno energetico ben oltre le richieste delle normative attuali, e consentono all’edificio di attestarsi al massimo punteggio degli organismi di certificazione energetica (A4).
L'edificio è risultato recentemente vincitore del premio Ad'A - Architetture dell'Adriatico 2020 oltre che selezionato per il Premio Architetto Italiano 2018.
客服
消息
收藏
下载
最近




































