查看完整案例


收藏

下载

翻译
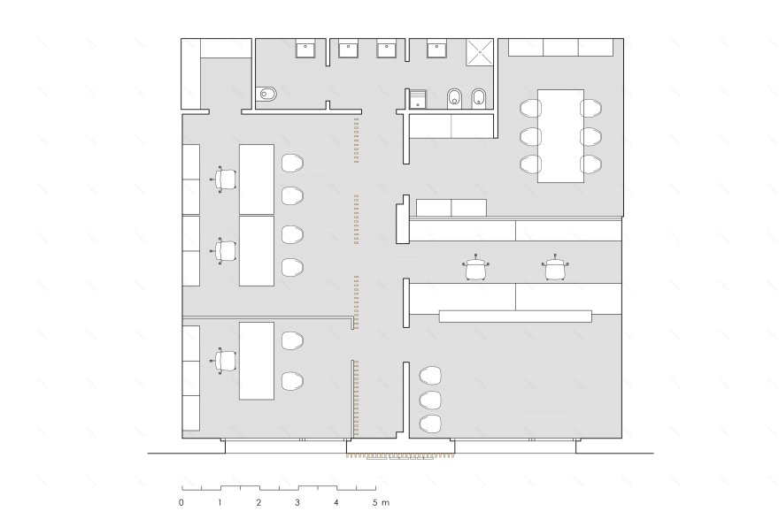
Il progetto di ristrutturazione ha consentito di ottimizzare la fruizione degli spazi senza stravolgere la configurazione planimetrica;
Le varie aree funzionali vengono delineate da partizioni leggere in alluminio e vetro, mentre il disimpegno è generato dall’inserimento di un divisorio “filtrante” realizzato con listelli verticali in legno ancorati tra pavimento e soffitto;
La scelta di utilizzare pochi materiali (rovere, legno laccato, intonaco) tutti di colore chiaro contribuisce ad amplificare la percezione della luce all’interno degli ambienti mentre il colore del pavimento cerca un legame visivo oltreché simbolico con lo specchio d’acqua prospiciente gli uffici.
客服
消息
收藏
下载
最近





























