查看完整案例


收藏

下载

翻译
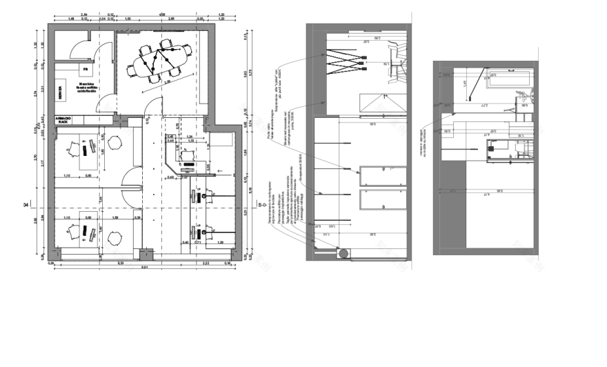
Un azienda in crescita necessita di nuovi spazi, flessibili e confortevoli per ospitare due postazioni programmatori, due uffici direzionali, uno spazio segreteria e accoglienza ed una sala riunioni, oltre a locali tecnici quali locale server/macchine e servizi igienici.
Gli obiettivi di progetto sono stati raggiunti concentrandosi sulla permeabilità degli spazi così da farli risultare ampi e ariosi nonostante le contenute dimensioni (Superficie complessiva dei locali mq 70).
L'impiantistica è stata studiata con attenzione su carta e poi affrontata in cantiere trovando le soluzioni più adeguate per risparmiare tempo e risorse così da fornire un servizio chiavi in mano e limitare al minimo i tempi di chiusura. Di seguito le foto dell'intervento ultimato ed alcuni elaborati di studio.
客服
消息
收藏
下载
最近





















