查看完整案例


收藏

下载

翻译
ICI HQ was a unique endeavour for 3DM. Starting as a simple vision to house different building industry professionals under one roof, a building was materialized that allows for exhibition and collaboration.
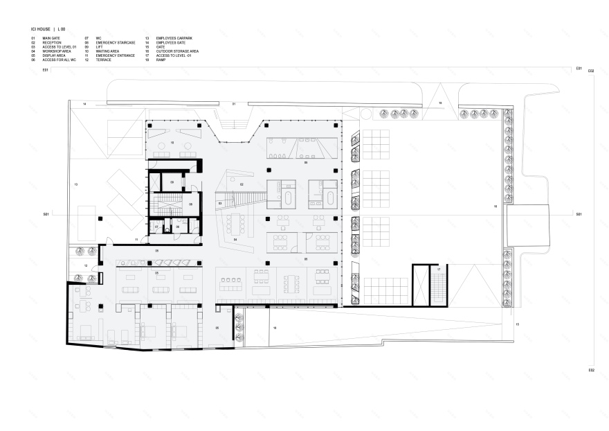
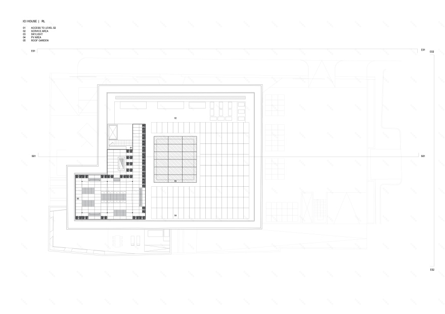
The building is divided into three main areas: workshops are located at level -1, retail centres and exhibition spaces at levels 0 and 1, and offices at level 2. The form of the building is designed with the interplay between solid and transparent volumes in mind. This, in turn, reflects the several different functions of the building.
The most prominent solid, upper volume of the building is inspired by the sun's path in relation to the site’s orientation. Several fins are constructed in the facade that allow for light to penetrate the interiors at ideal angles and at desired times of the day. Subsequently, offices and ancillary spaces were designed to follow such behaviour.
客服
消息
收藏
下载
最近




















































































