查看完整案例


收藏

下载

附件

翻译
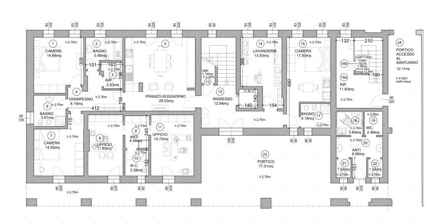
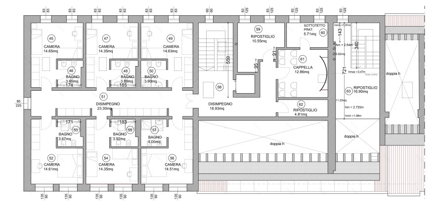
L’edificio è ad energia quasi zero (classe A4 EPgl,nren 8,90 Kwh/mq anno) ossia è un edificio ad altissima prestazione energetica. Il fabbisogno energetico molto basso è coperto in misura significativa da energia da fonti rinnovabili. È stata data importanza alla qualità dell’involucro edilizio considerando che la migliore energia è quella non consumata. Con la corretta progettazione degli ambienti secondo i principi della bioclimatica e considerando l’inerzia termica dei materiali si ottengono ambienti naturalmente freschi d’estate e confortevoli d’inverno. Principali caratteristiche dell’involucro edilizio sono: - Fondazione isolata con ghiaia di vetro cellulare di 60 cm; - muratura in blocchi di laterizio con spessore 55 cm e U=0,17 W/mqk, 28 ore di sfasamento onda termica; - Solaio interpiano e struttura di copertura in legno lamellare gl32h; - intonaci in calce idraulica naturale e sughero; - pareti interne in gessofibra con lana di pecora; - tetto ventilato; - isolamento con sughero e fibra di legno; - tegole di laterizio, complessivamente uno spessore di 55 cm e U=0,11 W/mqk , sfasamento onda termica quasi 21 ore; - riscaldamento con pannelli radianti a parete e pavimento; - impianto idronico di raffrescamento; - tutti gli impianti sono gestiti da una pompa di calore Viessmann Energical inverter 34; - ventilazione meccanica decentralizzata Melten; - serramenti in legno con triplo vetro basso emissivo con argon, coating differenziato in base all’esposizione solare; - impianto fotovoltaico composto da 55 moduli per complessivi 17 Kw; - trattamento delle strutture lignee a base di oli, resine naturali e sali di boro, privi di solventi petrolchimici e resine viniliche. Vantaggi: durata nel tempo, il legno rimane traspirante e regola l’umidità dell’ambiente interno, ambienti salubri. Particolare importanza è stata data anche allo studio cromatico dell’intero complesso, sia internamente che esternamente. Sono stati utilizzati pigmenti naturali ai silicati e fotocatalitici che, oltre a garantire una particolare traspirabilità ben si armonizzano con il contesto contribuendo a creare una sorta di “cittadella”.
Il territorio circostante ha un carattere rurale, la zona ricca di acque risorgive non è caratterizzata da particolari tipologie edilizie: l’architettura più storica e di pregio è il santuario del 1665 dedicato alla B.V.M. salus Infirmorum adiacente al nostro intervento. Il ns progetto/opera ha una finalità di tipo caritativo. La social Housing è destinata ad ospitare persone in temporanea difficoltà abitativa dovuta a precarietà lavorativa e che siano idonee a sostenere percorsi di autonomia sociale, lavorativa e abitativa. Per ciascun ospite viene elaborato un progetto individuale. La gestione a cura della Fondazione Caritas Vicenza. Obiettivo era anche la riqualificazione dell’area del piccolo centro storico da un punto di vista ambientale, culturale, storico ed artistico. Orientamento e forme della tradizione garantiscono quell’inserimento ambientale ed architettonico che fanno di questa architettura un “nuovo non estraneo” a cui gli abitanti del territorio velocemente si stanno affezionando. La storia del santuario è legata all’acqua. La tradizione riporta varie guarigioni ottenute bagnandosi con l’acqua della roggia considerata benedetta perché “passa sotto i piedi della Madonna”. Nel progetto abbiamo pensato di ridare importanza ad una vecchia fonte collocata in una nicchia a sinistra dell’arco d’ingresso dei pellegrini. La nuova veste prevede una sorta di conchiglia in marmo, simbolo del pellegrino che racchiude un catino di raccolta dell’acqua, simbolicamente una perla, Maria. La perla è cosa rara, pura e preziosa e Maria è la perla per eccellenza. Il colore verde della stessa è legato alla natura, alla crescita, all’acqua che tutto purifica e risana. Il percorso continua fino a sfociare nell’ housing sociale, ma è ancora il nuovo pavimento in marmo trani e sassi verdi che si innesta con la pavimentazione esistente a rimarcare l’importanza dell’acqua e a delineare una particolare geometria. Tutto parte dal centro propulsore (luogo dell’altare) quasi a significare la forza della preghiera dalla quale tutto trae origine e tutto raccorda. Come un sasso gettato nell’acqua da quel centro si generano altri centri concentrici; è idealmente l’abbraccio di Gesù e Maria che in quell’area anticamente paludosa avvolgono l’intero complesso. Inaugurata il 23 giugno 2019 da S.E. Beniamino Pizziol.
客服
消息
收藏
下载
最近























































































































