查看完整案例


收藏

下载

翻译
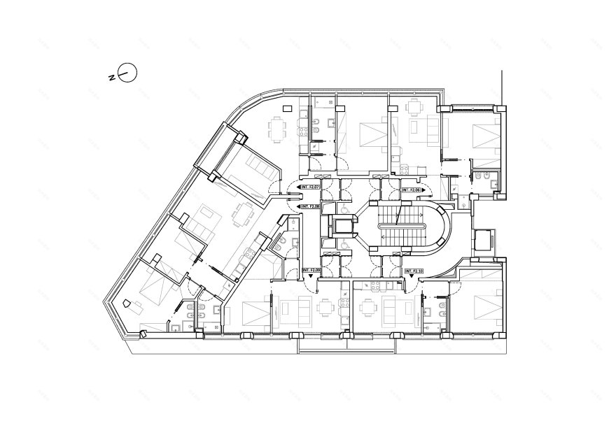
L’intervento riguarda il recupero e la trasformazione di un edificio posto all’angolo fra via Piave e via Flavia, nel Rione Sallustiano, in Roma.
L’edificio fu costruito nel 1949 su disegno dell’architetto Angelo Di Castro, come casa di abitazione, successivamente trasformato in uffici dell’ENPAS.
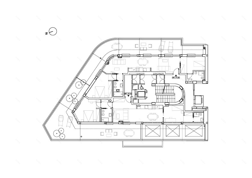
Si tratta di un fabbricato di nove livelli fuori terra, con una pianta articolata, che risolve la testata su via Piave e borda uno slargo aperto su via XX Settembre.
I rivestimenti sono in lastre di travertino per il piano terra e il primo piano e in intonaco per i restanti piani.
Il progetto prevede la completa riorganizzazione dello spazio utile, con la realizzazione di n.31 abitazioni di taglio piccolo e medio, compresi fra i 45 e gli 85 mq.
Al fine di poter locare l’immobile con una destinazione d’uso di attività extra – alberghiera, si è disposto il rifacimento completo dell’impiantistica e di tutte le finiture interne. Si è intervenuto inoltre sulle facciate per la sostituzione degli infissi.
Le esigenze di prevenzione incendi inoltre hanno imposto l’adeguamento della scala esistente, da scala protetta a scala a prova di fumo. È stato quindi necessario realizzare con istanza di Deroga ai Vigili del Fuoco, filtri a prova di fumo con porte antincendio normalmente aperte lungo il connettivo intorno alla scala di distribuzione.
Si è optato, per la realizzazione delle partizioni interne, di sistema costruttivo a secco con lastre di gesso rivestito con alte prestazioni al fuoco e al fonoisolamento.
Le opere di protezione acustica sui solai e di protezione termica sull’involucro (finestre a taglio termico, sottofinestre e solai dei terrazzi) garantiscono gli standard di confort ambientale.
A servizio delle unità immobiliari è previsto un impianto a fan-coil. L’impianto è predisposto per il condizionamento invernale ed estivo. I ventilconvettori saranno tutti del tipo orizzontale canalizzabili da controsoffitto.
客服
消息
收藏
下载
最近

















