查看完整案例


收藏

下载

翻译
Rope shop is located on the ground floor of an apartment building from the 19th century in the center of Prague in Mala Strana. In the past, there were made many adaptations and adjustments, but none of them had its quality. Spaces were divided into three parts and the full height of each room was interrupted by a full inserted floor. Shops were confined, neglected, and confusing.
Our design tried to remedy this situation and gave back the shop the quality it undoubtedly deserved. It was important for us to create cultivated parterre and to give with our implementation an impulse to improve shop parterre of whole Vitezna Street, which has been neglected for a long time. We wanted to transform a confusing cramped space into a space where products will be interestingly presented and everything will resonate together.
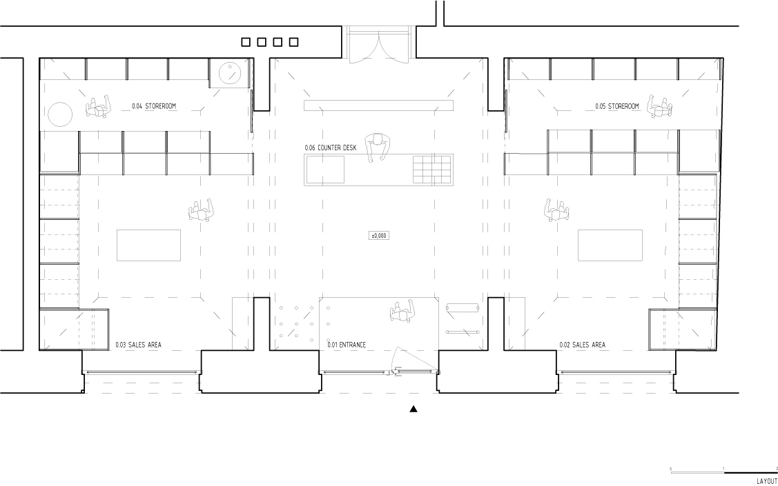
Our main motto of reconstruction and new interior was generosity, openness, and clarity. We proposed the connection of all three spaces. We have found in historical archive plans from what was clear that originally the two spaces were connected.
Thanks to the connection and demolition of walls we have created a comprehensive clear layout. We designed and moved the entrance to the store to the central part of the layout, where we placed opposite to the entrance the sales counter and the central exhibition rack. The high ceilings with vaulting were important for us. We removed all inserted floors and returned to the spaces their original height.
On the side areas of the shop, we inserted half-floor, which did not disturb the feeling of the high space. Under the half-floor we designed racks for presenting ropes from the sales area and under the half-floor floor we placed storeroom for the shop. Staircase reaching these half floors works also as racks for spools of ropes and nets. Both half-floors are designed as the next sales area with racks for ropes.
The condition of the facade and parterre was in poor condition before reconstruction. We design wooden windows in a similar design as the original wooden historic windows. Also was important to design the visual style and sign of the shop. We designed all equipment of the shop as atypical, made to measure.
The front part of the counter is designed as an installation of a color range of ropes on spools and also works as a swatch of possible colors of ropes. Racks for spools in the side spaces also serve structurally as a construction element for inserted floors. The railing of each floor is designed also as a sampler of nets. The clean staircase railing is in contrast with the colored surfaces with ropes and the mesh railing as a pure plywood board that fits into the teeth of the stairs.
We have designed lightings as an installation of tubular light hanged on different colored ropes. Ropes offer many possibilities and ideas of design. In our design, it was important for us not to overwhelm the interior with ideas of using ropes and it was important to create a clear and well-arranged design that works with the whole space and presents ropes and products from the rope factory.
▼项目更多图片
客服
消息
收藏
下载
最近


















