查看完整案例


收藏

下载

翻译
Distinctive and secure. New build for the Command and Situation Centre of the Stuttgart Police Headquarters. The monolithic shell of this two-story edifice adjoins the existing building and exerts a stabilizing effect on the highly diverse surroundings.
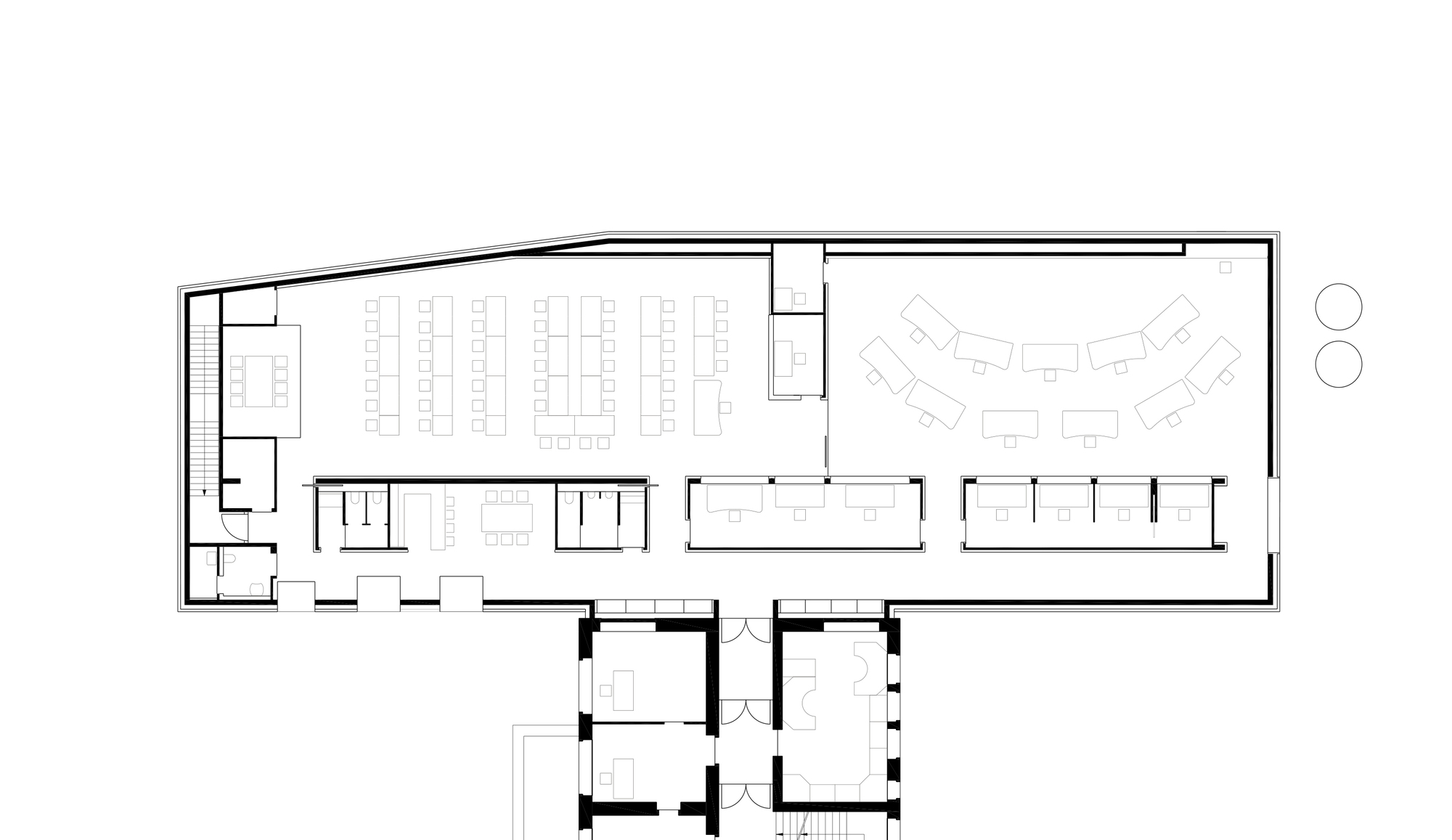
Visible from the Pragsattel traffic hub, this bold structure forms a distinctive landmark against the backdrop of rolling hills. The double-leaf masonry exterior of the ground floor houses all the services needed for the fully independent continuous operation of this energy-efficient facility, projecting into the hillside on the north and forming the basis for the upper floor, which in turn features a significant overhang extending south toward the entrance yard of the main building. In this story, all operational areas are incorporated on a single floor.
The skylight-based design provides a tall, sealed facade to the north, thereby dispensing with extensive security measures. Three window recesses in the main shell deliver additional natural light to the interior without providing a line of sight from outside.
▼项目更多图片
客服
消息
收藏
下载
最近


















