查看完整案例


收藏

下载
本案业主为了学龄前孩子有更舒适的成长空间移居于此,此案面绿园道首排,因陕长型格局厨房采光不佳,经格局重新调整后,可将窗景绿意引领入室串连公领域空间显得辽阔无阻。孩子可开心在公领域自由玩耍,妈妈可在厨房准备美食及关心孩子动态,爸爸可在客厅沙发享受内崁式5.1声道家庭剧院影音。亲友来访也可自在闲话家常,轻巧飘散在整体空间的每个隅角,似乎永远也不足盈载,不嫌冗满,营造轻盈飞扬的舒适居家氛围。
▲原始平面图
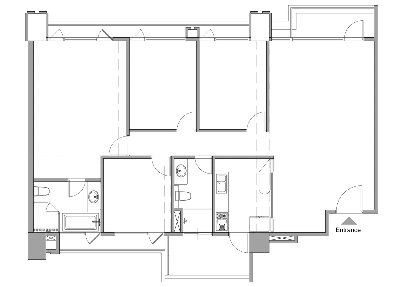
▲规划后平面图
▲开放式空间显得辽阔无阻,柔和婉娈的光线映在每个人的脸上,仿若脸上表情也随之放松纾弛,闲话家常轻巧飘散在整体空间的每个隅角。
▲地坪材质上的拣择──深灰地砖、温润木地板,以介定两个空间不同的生活功能与气息。
▲大片展示柜运用有巧思的设计手法,呈现活泼跳脱氛围;开放层板上可展示优美作品,门片柜体内亦可装放孩子的玩具与杂物作收纳。
▲开放场域结合旋转电视架,无论在客厅、餐厅、厨房、游戏区皆可观看电视,发挥功能性且兼顾开放目的。
▲低调光泽、细致纹理的特殊漆,是简单妆点沙发背墙的一个绝佳选择。
▲为了营造整体活泼轻扬的氛围,在中岛壁砖上,仔细比对、挑选了低饱和色的几何砖,既可与清水模色呼应,亦可融入整个空间丰采。
▲开放式厨房设计,使人与人的互动更行止无间,串流父母、孩子之间的共体情感。
▲餐吊灯选用北欧设计品牌Muuto Ambit Rail Suspension Lamp ,无论细看抑或远观,风格简约,质感细腻。
▲餐桌塑造成活动空间上的聚焦;坐在木质餐椅上,于不同时间光影的绚烂变化中享用每一盘餐点。
▲厨房流理台选用同是带有活泼气息的白色花砖增添质感,将一般功能感强烈、实用性高的厨房空间点石成金。
▲主卧呼应公领域设计以简约风格为主,床头造型墙隐藏大量收纳机能,床尾弧形天花造型,修饰原有梁构也将整体空间显得流畅生动。
▲床头造型墙采用木质跳色、几何切割等设计,亦结合大量隐藏收纳机能,一体两用。
▲在大量纯色墙体、白皮门板之间泼洒上几处清新木质颜色,增添了清新与灵动,为经典的北欧风格配色。
▲格局重新整调后的主卧,白色造型墙内隐藏了更衣间、主浴、收纳柜等机能;L型白色格栅由天花板延伸至墙面为主卧最美端景。
▲以线性几何分割设计,将通往更衣间与主卧卫浴的门隐匿消弭,使墙面完整不失设计感。
▲主卧独立更衣室,享有自然采光,收纳功能齐全完备,并有规划大面积明镜以利理容,又有放大空间的视觉感受。
▲打开主卧房门,映入眼帘的是简洁白色格栅造型,由天花区域连绵端景墙面营造延伸感,墙面后方也具收纳机能。
客服
消息
收藏
下载
最近






















