查看完整案例


收藏

下载
据说挪威的首都奥斯陆是“上帝的山谷”,面朝大海,背对山峦,鲜花拥簇,绿原环绕。于街头漫步,挥洒着画笔,描绘下萦绕心头的刹那美景,怀揣着悸动的思绪,期待一场美好的相遇。
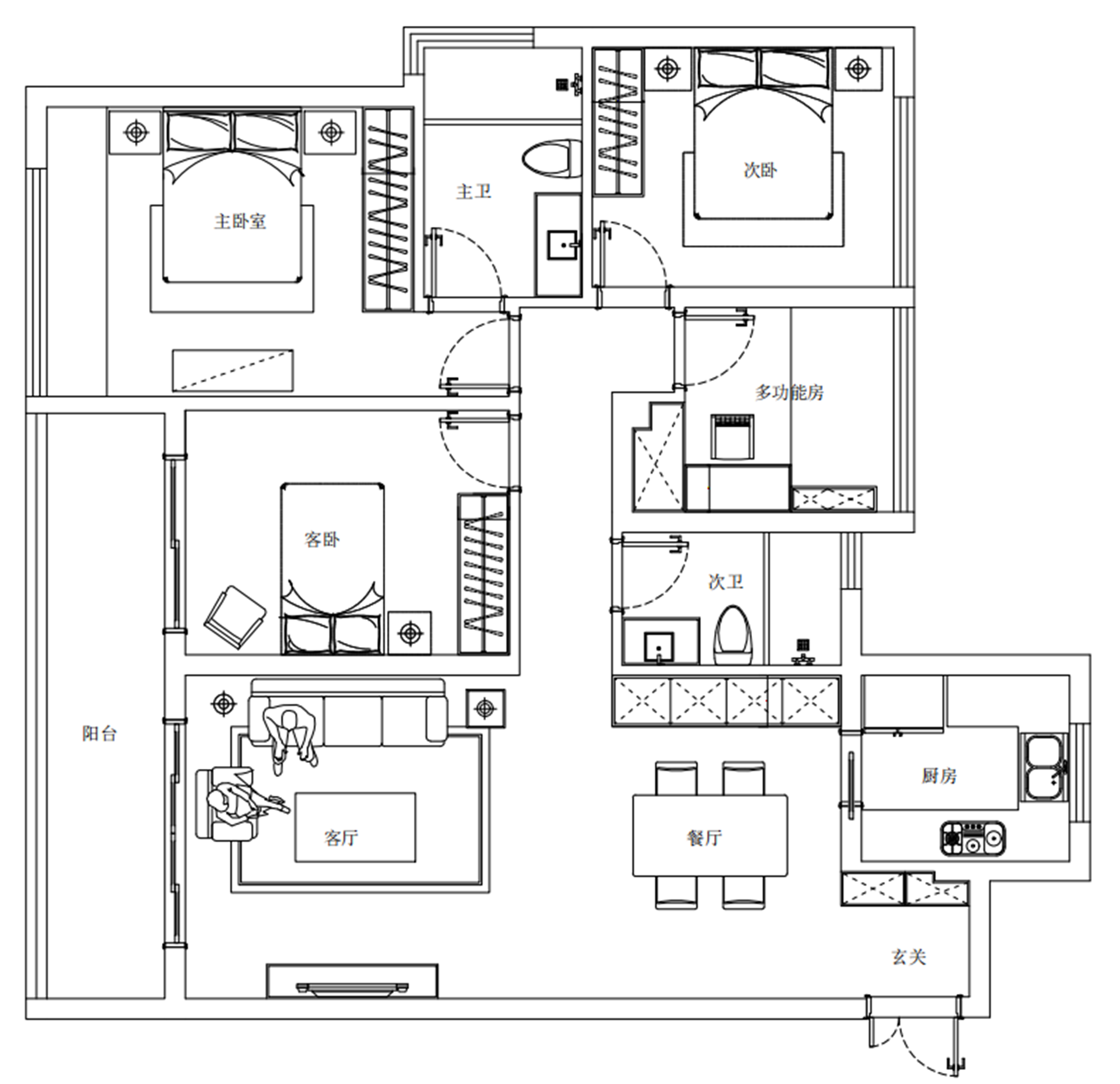
△平面设计图
设计源于生活,本案例从生活的本质出发,与美好的生活方式相融合,选择了艺术与空间,交叠的材质元素和舒展的空间层次,用设计语言重新演绎生活的品味,含蓄的设计风格,力求营造力量感与细腻并存的空间感受。
客厅
墨绿色的皮质沙发搭配黑色家具,沉稳浓烈又不失细腻,在中性色调背景下随意搭配的抽象油画,像是满满的自然力在蔓延。
餐厅
咖啡色的橱柜搭配具有砂石质感的餐椅,厚重的餐桌暗藏大理石纹理,加上金属吊灯的装饰,既有自然的柔和又不失高贵典雅。
主卧
主卧晚霞色与玳瑁色的实木家具的搭配,是打造田园家居的最佳色彩,皮毛抱枕和搭巾仿佛可以嗅到田园的气息和森林的味道。点缀橙赭色的窗帘,可以很好的提亮空间,优雅醒目。
女儿房
女儿房的柔玫瑰色和景泰蓝的搭配,让人联想起浪漫的韩剧,充满粉色情调的女主角邂逅充满绅士气质的帅气男主,一起演绎一段浪漫的故事。
客卧
客卧作为老人房之用,在配色上选择了暖色调,白色、杏仁色和中国红色的搭配,素雅又极具传统之美,在这其中静享悠然慢时光。
多功能房
多功能房简洁明亮的白色搭配平和优雅的灰色,将朦胧诗意深入刻画。装饰海港蓝色的暗格,将空间层次丰富展现的同时自然的带入童话般的趣味。
【作品名称】:奥斯陆日记
【工程地址】:中旅名门府
【设计风格】:现代轻奢
【户型结构】:四室两厅
【常住人员】:三口之家
【房屋面积】:125 ㎡
【软装设计】:内舍设计·黄辉露
【软装造价】:24W
【软装家具】:成品家具、定制家具、灯具、窗帘、墙布饰品挂画等
客服
消息
收藏
下载
最近



























