查看完整案例


收藏

下载
传说:不管是谁,只要找到了八瓣格桑花,就找到了幸福。
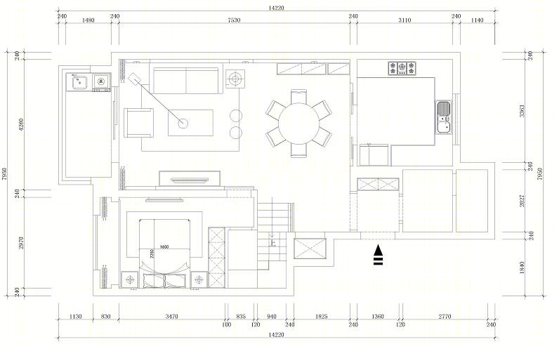
△一层平面设计图
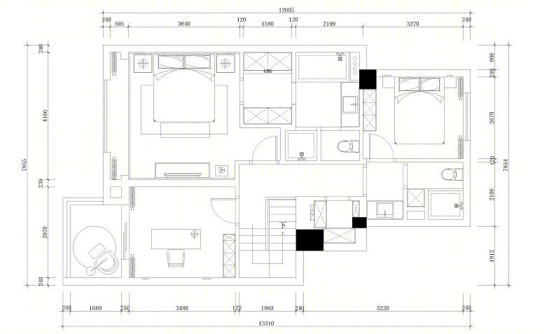
△二层平面设计图
本案的配色灵感来源于被誉为幸福之花的格桑花。生长在雪域或者大高原上的格桑花,任凭环境再恶劣,都能顽强的生长蔓延,平凡的外表,却拥有精彩的灵魂。看似冷冷清清的灰色系搭配上橙色系就变成了生机和活力,又有着力量的美感。
玄关
以亮白色作为玄关柜面的主色,通过柜面立体的雕刻,使得白色柜面更富于立体,辅以石灰岩大理石背景,搭配同色系摆件,宛如雪山之巅巍峨大气之貌。
客餐厅
客厅采用鲨鱼灰色的硬包背景,又带有暗纹,十分富有质感。选择同样质感的冰川灰高档皮质沙发,高档且典雅。千格鸟的单人椅和单人凳,让时尚而高贵的感觉更加强烈。
灰色系搭配橙赭色的布艺靓丽而娇艳,让空间瞬间变得欢快起来,饱含生机和活力。就连地毯都暗藏玄机,络绎的橙色在装饰画的装点下映衬在大理石茶几的光泽下,整个空间既有着高雅的生活品质感,又带着趣味以及和谐的美感。
米白色隐藏式房门电视背景墙与客厅整体背景墙在形式上达成了很好的统一。鎏金纹理背景搭配金属边框,毋庸置疑的高级色,搭配黑色大气家具,将色彩美学应用于现代家居之中,让人耳目一新。
餐厅与客厅间没有任何隔断,这让就餐和休闲也变得没有拘束,采用同色系的视觉延伸,大理石可旋转圆形餐台搭配米灰色皮质餐椅,金属底盘既保证了餐桌的稳固性,又提升了整体空间的品质感。
客房
一楼客房作为平日亲友偶尔居住的空间,整体搭配上以素雅大方为主题。冰川灰色背景搭配亮白色橱柜,简约不失精致的金属线条装饰,以婉约柔和的气质打动每一位来往之客。
主卧
主卧选择了米白色和沙色作为空间主色,辅以黑色的家具和茶褐色的布艺窗帘,典雅又不失韵味。橙赭色的装饰,让空间更富于层次的同时醒目、迷人,搭配造型独特的圆角矩形吊灯,带给空间素雅、温馨又摩登的感觉。
女儿房
吾家有女初长成,时光荏苒,你已不再是那个稚气的孩童,巧克力色与藕粉色拼接背景,搭配灰色布艺,这种低饱和度的色彩带来的文艺气息,着实让人着迷。
书房
书房水泥灰布艺窗帘和鹧鸪色不规则几何背景的搭配,不用别的装饰就已然感受到了那份古典雅韵,一方简单的胡桃木方桌,一把简单的米褐色皮椅,一角简单的鹧鸪色书柜,小小的天地,却承载许多了难以忘怀的旧时光。
【作品名称】:幸福格桑
【工程地址】:大运河府
【设计风格】:现代轻奢
【户型结构】:四室两厅
【常住人员】:三口之家
【房屋面积】:176 ㎡
【软装设计】:内舍设计·饶江燕
【软装造价】:25W
【软装家具】:成品家具、定制家具、灯具、窗帘、墙布饰品挂画等
客服
消息
收藏
下载
最近




























