查看完整案例


收藏

下载
项目名称:黎巴嫩Aylout 32住宅
位置:黎巴嫩
设计公司:Akl Architects,Patrick Boustany Architect
摄影师:帕夫洛斯·尼科劳
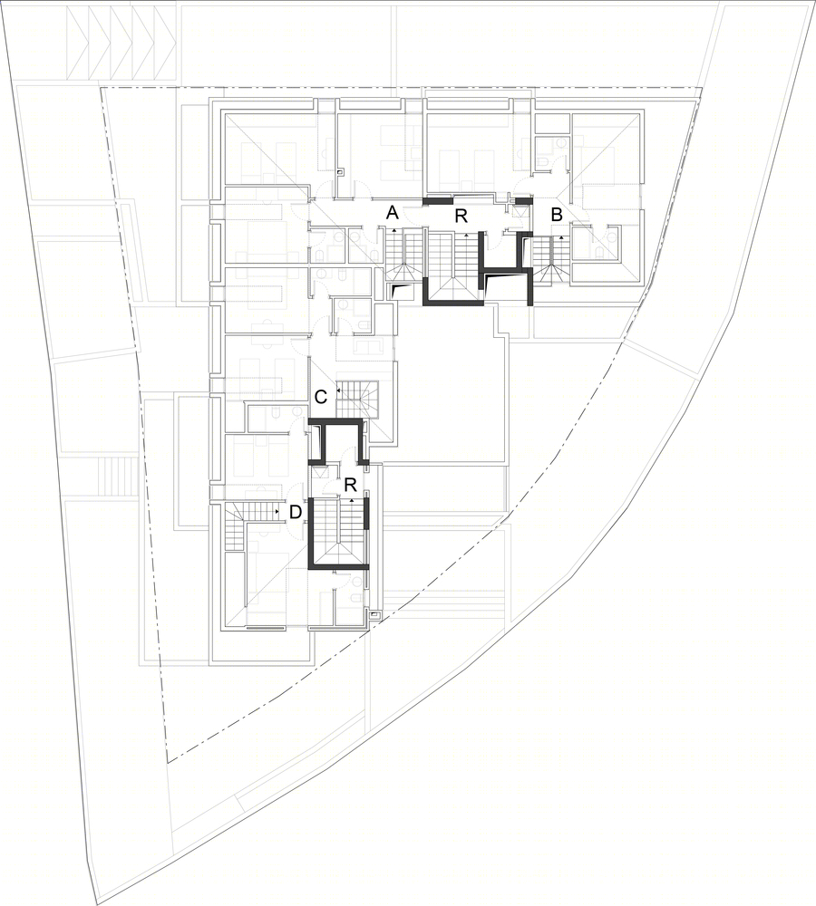
位于黎巴嫩贝鲁特郊区的一个人口稠密地区,绿色社区的地块优势使其在城市组织中很少见。三角形的地块从其后侧被三星级酒店包围,从其次要边界起是“常绿”土地,而主要道路则延长了其主要海拔。这栋16单元的建筑包括小型公寓,2卧室和3卧室的单元,每间不超过160平方米,主要面向年轻的中产阶级夫妇。由于该地点的形状不寻常,因此该建筑物被设计为“ L”形,这使它有机会在其较宽的立面和侧面立面上与建筑物的背景以及与建筑物后侧相关的大开口。充当公寓的光源。该过程从规则的“ L”几何形状开始,然后是一系列碎片。质量变成挤压体积。各种大小的不同开口随机放置,在绿色风景上创建带框的视图。凉廊和带有低矮可触及花坛的阳台是绿色环境向内部功能的延伸。整个建筑变成了一系列分散的块体,各个开口和凉廊与周围环境相互作用。该建筑分为两个独立的实体。
每个实体由一个核心组成,每层为两个公寓提供服务。这些单元沿主高程和侧向高程分布,并且主要是在双重定向的平面中构想的,这使光线从其两侧通过每个单元。由单工和双工组成的双向单元可以从光中受益。场地法规要求在所有高程上使用石材砌面,并在屋顶上使用红砖瓦。为了解决这个问题,碎片碎片覆盖了天然石材的表皮,覆盖了蜂窝状木质纹理,在所有开口周围都起到了框架的作用;凹进的红砖覆盖了屋顶,并散布着竖向窗户,充当了巨大石材中的漏洞。对自然和周围环境的各种观点,双重导向的布局图和双重高度的复式房屋,零碎的体积处理以及石砌,木材和不同开口之间的复杂混合构成了建筑物的特色。
黎巴嫩Aylout 32住宅外部实景图
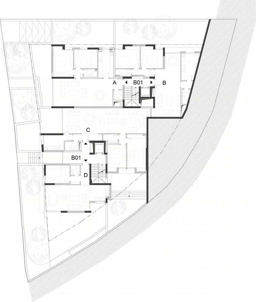
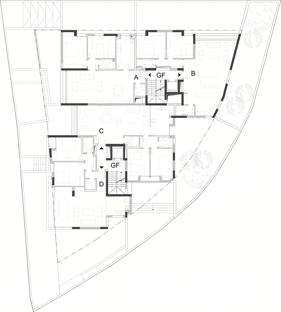
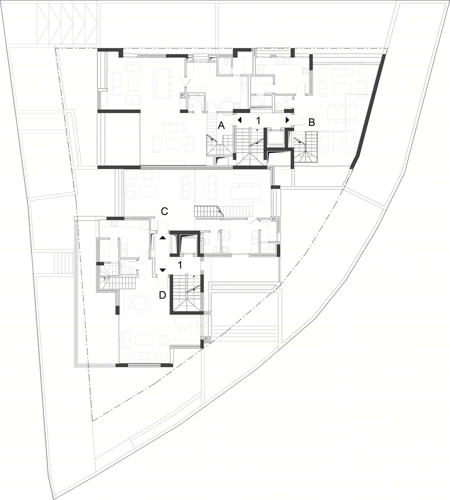
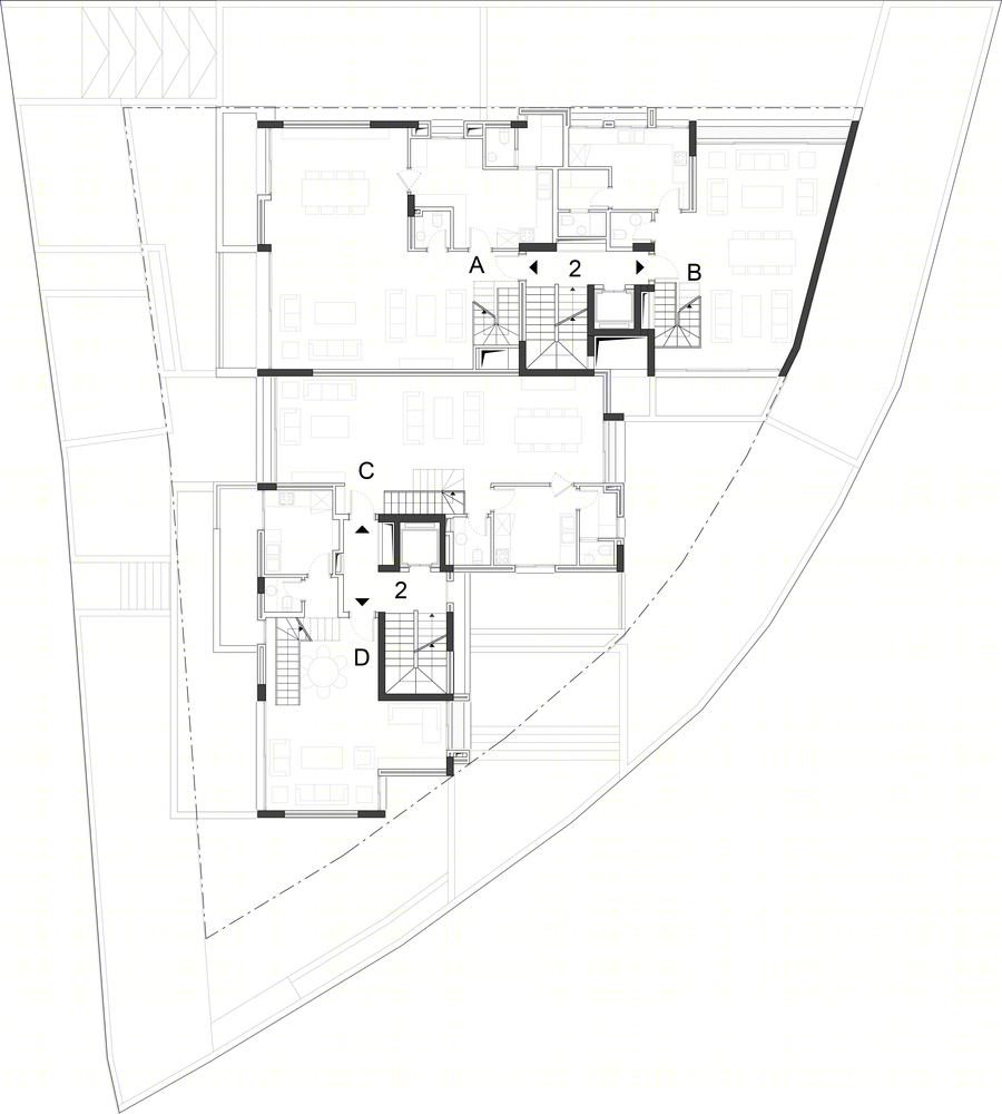
黎巴嫩Aylout 32住宅平面图
黎巴嫩Aylout 32住宅剖面图
黎巴嫩Aylout 32住宅立面图
客服
消息
收藏
下载
最近






















