查看完整案例


收藏

下载
项目名称:印度棕榈大道住宅
位置:印度
建筑师:建筑学科
在瓦桑库日棕榈大道的住宅区,这个项目反映了一种非传统的另类感觉。与简洁的线条和简约的外观截然不同的是,该房产象征着其所有者和创造者在其三年竣工/建设期间所经历的演变。这个项目是一个五口之家,跨越了三代人,为其居民提供了一个机会,以他们自己不同的方式生活,但精神上却是统一的。以土地为中心,项目的话语谨慎展开,设计适应空间及其需求。与勒·柯布西耶设计的小别墅非常相似,工作室将所有的平面布置与手边的空间同步。该项目的支柱是自然光、洁净的空气、开放式平面图和豪华的室内设计,这些都是居民性格的同义词。这些蓝图脱离了自命不凡的含义,而是专注于建造一栋根基深厚的房子,这种房子深深植根于家庭的丰富历史,能够满足当前的需求,并提供大量未来的机会。这个想法导致了二十年后创造一个进步的、永恒的、仍然相关的空间的决定。包裹在细致的木格子里,外观经过精心设计,以反映人们在大自然中看到的逐渐老化的过程。
沉浸在同样以自然为中心的焦点中,这种景观是波西米亚风格的,带有地方特色。柠檬草和时令花卉标志着房子的边界,大量生长的日常用品温和地提醒人们,整个生态景观是由一个完整的价值系统组成的。当一个人走进房子,有一种家的感觉。像大多数家庭一样,它不会透露一切,但会给你一种受欢迎的内部人士而不是客人的感觉。入口处的天花板被刻意保持得很低,当一个人走过门口时,会突然升高,瞬间从7英尺上升到22英尺。可见的结构强调秩序,并提供一个干净的空间,清晰的叙述真实,最小和诚实的居民。这栋房子有两个截然不同的空间:私人空间和公共空间,当重叠时,这两个空间被认为是合适的。从家庭空间穿过一个类似穿刺的短暂过渡,进入公共房间。正式的生活区与家庭娱乐空间融为一体,散发出一种包容感。正式的客厅通过一个色彩鲜艳的金属包装的动态螺旋楼梯与正式的用餐区相连,灵感来自主流现代主义运动的著名建筑师皮埃尔·夏洛的动态而精致的设计感。正式餐厅有一张可容纳40人的大桌子,有一个引人注目的迷你吧和三种颜色的拼花地板,使其成为娱乐的最佳选择,并且基本上是最小的。这个空间可以俯瞰前面的草坪,草坪上有定制的座位和幼儿游戏场地,黑色外墙突出绿色。
郁郁葱葱的绿色花园也是宁静的自然光的来源,透过6米高的当代风格玻璃立面扩散开来。正式客厅的正下方是地下室,隐藏在视野之外,突出了它的私人功能。它配有家庭影院、巨大的地下室和储物空间,是为喧闹的聚会进行声学处理的完美延伸,与房子的其他部分断开连接,通过电梯进入。每间卧室都经过精心规划和实施,以满足每个家庭成员的需求,同时遵循同样的简约主题。虽然儿童房的地板色彩鲜艳,有几何图案和鲜艳颜色的纺织品,但成人房更宽敞、更有品位,巨大的平台上有超大的床,像传统的印第安人帕朗。虽然大多数人认为房子是旅馆,但工作室有不同的观点。房子的设计考虑到了灵活的隔断和系统,可以根据未来的需要增加或减少空间。光秃秃的墙壁为家庭成员提供了一个机会,让他们在前进的过程中重新开始并蚀刻他们的经历。
有了一个清晰的概念,即利用自然能量和向后分层,工作室不得不远离过度设计的空间。将光线保持在关键位置,工作室专注于它周围的各个方面,包括漫射、图案和阴影。楼梯顶部的数字是由镜面玻璃制成的,将光线分散到各处,增加了房子的通风感。每一个元素都与富丽堂皇产生共鸣,是对其居民的一个有趣的回应,比如地板,它是坚硬的石英,镶嵌着来自国会议员的黄铜;开放式竖板木材楼梯,它可以直接通向下一层,给房间一个清爽、舒适的外观。房子有一个倾斜的屋顶,这是真正释放空间的地方。顶点天窗在夏季被覆盖,在冬季向充足的自然光开放,供家人欣赏。屋顶上还有一个小水池。工作室想详细阐述家是人们的空间的想法,这就是为什么有意识的决定远离停车场。这房子没有门廊,所以永远看不到汽车。此外,房屋中的服务足迹已经被最小化,并且对儿童来说是安全的,为他们提供了不受约束的移动。工作室一直致力于在各个层面减少浪费的能源消耗,无论是物质层面,还是智力层面,这样就不会夸大看似不完整或复杂的东西。这样一来,基本要素就成为了创造过程,最终产品在所有感官层面上都令人满意。
印度棕榈大道住宅外部实景图
印度棕榈大道住宅外部夜景实景图
印度棕榈大道住宅内部实景图
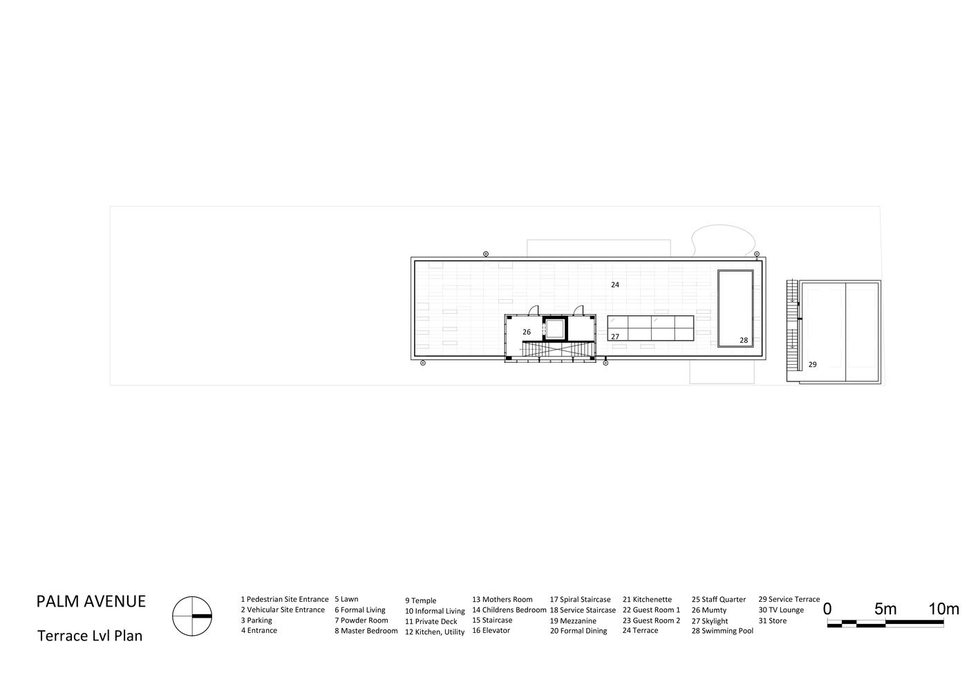
印度棕榈大道住宅平面图
印度棕榈大道住宅剖面图
客服
消息
收藏
下载
最近





















