查看完整案例


收藏

下载
项目名称:伊朗Afraa住宅
位置:伊朗
设计公司:Raavi Studio、Adib Khaeez、Ramtin Taherian
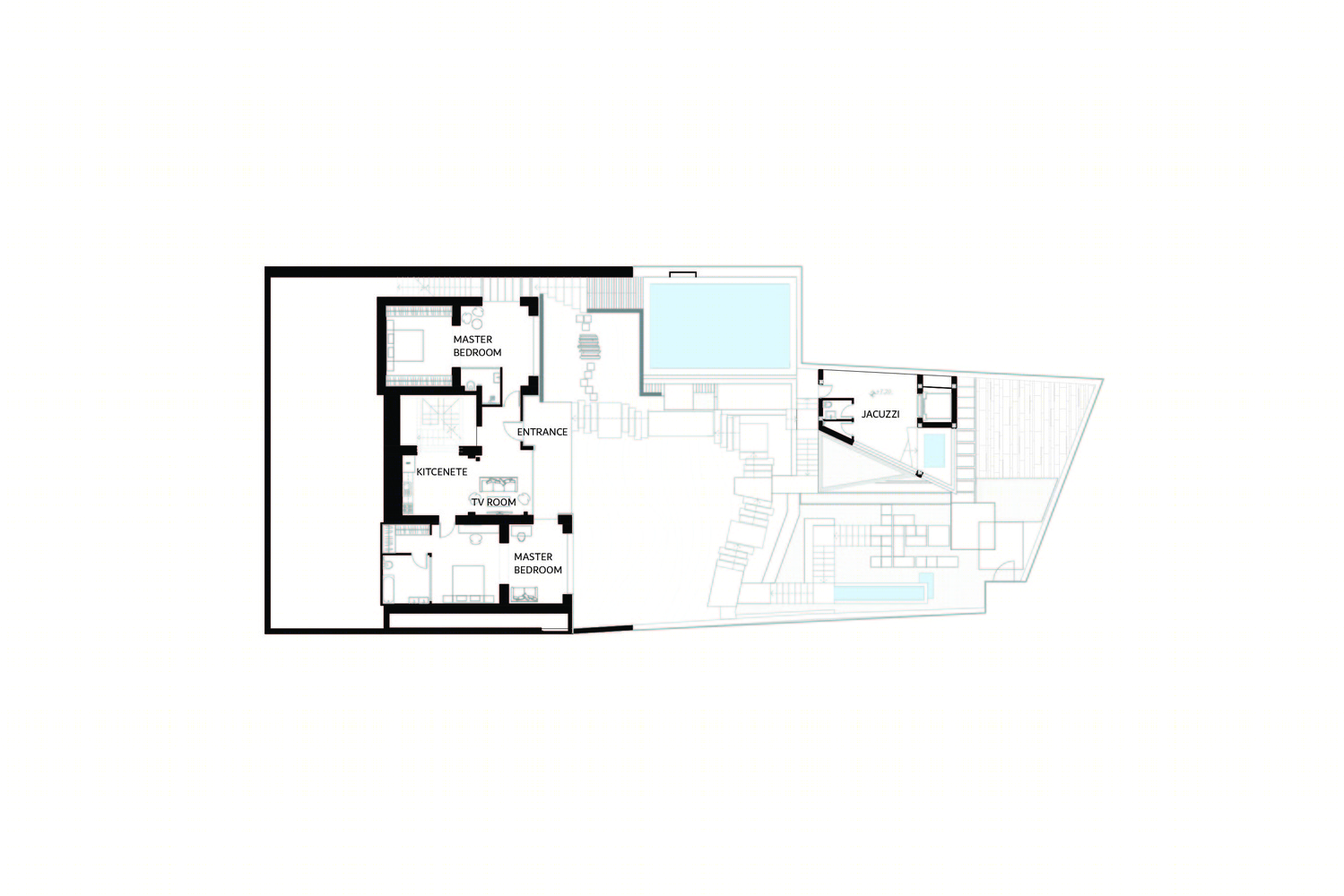
Afra House项目的开始是对位于Lavasan的一栋非常老房子的翻新工程,这是伊朗德黑兰以北的一个小镇。房屋位于土地上错层的物业的斜坡上,形成了一条从入口进入房屋的粗糙通道,其中包括长楼梯和穿过花园的路径。该项目的主要目标是根据房屋的现有条件确定的,首先是通过插入楼梯将建筑物的两个单独的楼层转换为双层公寓。其次,重新考虑从街道入口到主楼的可及性,最后增加度假屋必需的许多功能,例如室外游泳池,看门人的套房,按摩浴缸和办公空间。为了方便主楼的通行,策略是在入口附近放置一部电梯,到达别墅一楼的高度,并放置一条将电梯平台连接至别墅一楼露台的小桥。屋。新的循环系统定义了通过电梯和桥梁的主要通道,以及通过景观楼梯和花园的辅助通道。
由于房屋的主要入口移至二楼,因此主要的公共功能(如客厅,厨房和客用卧室)被放置在二楼,而较小的更隐蔽的私人底层则留给了两间主卧,一个迷你厨房和一个小客厅。换句话说,主要入口从地面到二楼的转移造成了公共职能的翻转,现有建筑物的内部空间均在两层上进行了修改,并保留了倾斜的木质屋顶,以保持熟悉的感觉和内部质量。影响空间组织的关键决定之一是找到最合适的位置来插入连接两层的楼梯。在一楼,楼梯降落在两间卧室之间,两间卧室均设有朝向花园的大窗户。土地上的错层和高度差为在入口附近形成三层楼的空间提供了机会,从而提供了所需的额外空间。这栋额外的建筑物包括位于地面层的看门人套房,位于第一层的办公室以及靠近室外游泳池的第二层的更衣室和按摩浴缸。建筑的立面被设计为两个明暗相联的空间,露台在两者之间产生了挫折。
根据两端的位置以及站点中现有树木的位置生成的桥梁几何形状。在项目的前面添加了一个三层楼的空间,其形成方式是在底部创建一个入口区域,增加对办公室山谷的视野,并增加泳池平台的视野并创建一个锐利的空间。顶部的观景台角落。总体而言,该项目由两个新旧建筑组成,它们之间通过一座桥梁相连,该桥梁在陡峭而对比鲜明的景观中导航。一侧有游泳池,另一侧有花园。风景的两个层次具有不同的特征,可以描述为一个更公共的停车场,入口和看门人的套房,而另一个则作为一个更私人的院子,包含游泳池,按摩浴缸,办公室和游泳池。绿色的花园。
伊朗Afraa住宅外部实景图
伊朗Afraa住宅内部实景图
伊朗Afraa住宅平面图
伊朗Afraa住宅剖面图
伊朗Afraa住宅轴测图
客服
消息
收藏
下载
最近






























