查看完整案例


收藏

下载
项目名称:智利折纸屋
位置:智利
设计公司:Mas Fernandez Arquitectos、OR Arquitectos
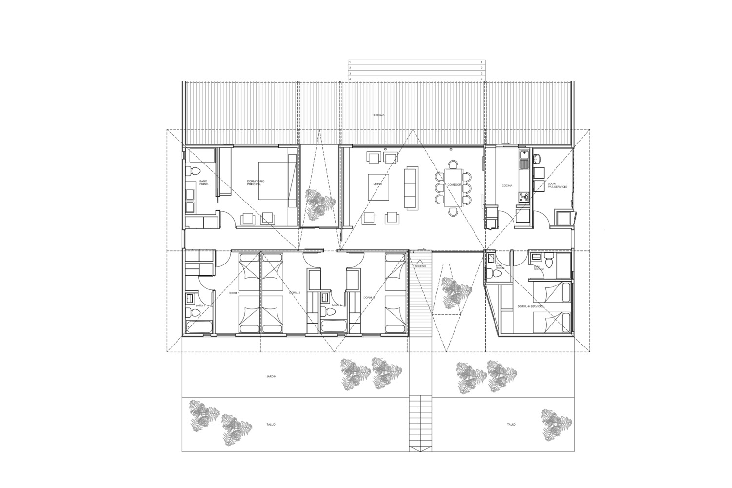
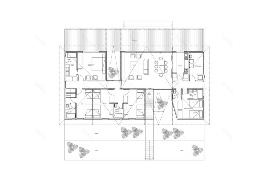
折纸房屋是位于智利瓦尔帕莱索沿海地区的度假屋。远离大海,它通过建造房屋的内部峡谷的宁静原始环境,寻求宁静并欣赏附近丘陵的景色。为了满足最初的低成本要求,房屋从一开始就考虑使用预制和模块化材料,可以快速执行,从而降低了建筑成本,并使业主能够在尽可能短的时间内居住该房屋。房屋定居在山坡的中点,房屋的轴线旋转,以获得地形允许的最大北方和阳光。露台由两堵墙界定,这两个墙通过缩小外观到周围的景观并避开了邻居而加强了房屋的总体布局。为了获得丰富的空间体验,屋顶像折纸一样在结构上展开,其三角剖分允许内部的光线为建筑提供独特的特征。在其180平方米的内部布局中,包含四个宿舍,其中包括主要的宿舍,一个将厨房及其饭厅集成在一起的起居区以及一个服务区,该服务区不仅可以使房屋正常用作度假房,还可以使房屋正常运行以一天为周期。在SIP面板施工系统上使用钢结构建造了较大的空间。后者不仅支持该结构,而且根据该地区通常遇到的天气条件,提供了出色的隔热效果。最后,墙壁和天花板衬有经过本地处理的松木,通过将周围环境带入房屋,营造出温暖的环境,从而使该项目成为一种简单,低成本,高效的建筑。
智利折纸屋外部实景图
智利折纸屋内部实景图
智利折纸屋平面图
智利折纸屋立面图
智利折纸屋大样图
智利折纸屋平面大样图
客服
消息
收藏
下载
最近




















