查看完整案例


收藏

下载
项目名称:法国摩泽尔农场改建
位置:法国
设计公司:Studiolada
该项目的设计意图来源于业主的为渴望自然与历史感地域的人们提供住宿的想法。项目位于一处平地的大地块上,处在一个曾经形成了马奇诺水防线(在山谷中填水从而阻止敌人的自然防卫系统)的山谷中。五个池塘被保留至今,法国和德国的渔民在数不清的旁边钓鱼。在这之上,有一个业主基于Gilles Clément而造型出的花园。它由小溪,植物园,果园,篱笆和绿油油的草坪所组成。这里栖息了包括鸟儿在内的多种动物。农房及屋前的空地都极具洛林地区特色,具有摩泽尔特色的居住用房连接着谷仓,一般采用木材,另一半采用砂浆和碎石后期加建而成。项目初期一切都是严重损毁的——由于附近的地下水位,半木制构造物的内部脆弱性,它在历史上从来没有被改建过。与这里低层高,单一朝向街区的地形相关的一些反常状况迫使我们重新考虑建造物与其核心的联系,同时确保我们尊重业主提供的主要原则。毋庸置疑,他们认为房屋的外部空间属于公共,而内部空间需要私密性和亲密性。因此项目中原始的村镇房屋得以被保留以续存其外部空间,一些当代的附加构筑也被保留在各处。内部有开敞的空间沐浴在光线之中,也朝那座重新诠释了半木制构造建筑的花园开放。
法国摩泽尔农场改建外部实景图
法国摩泽尔农场改建内部实景图
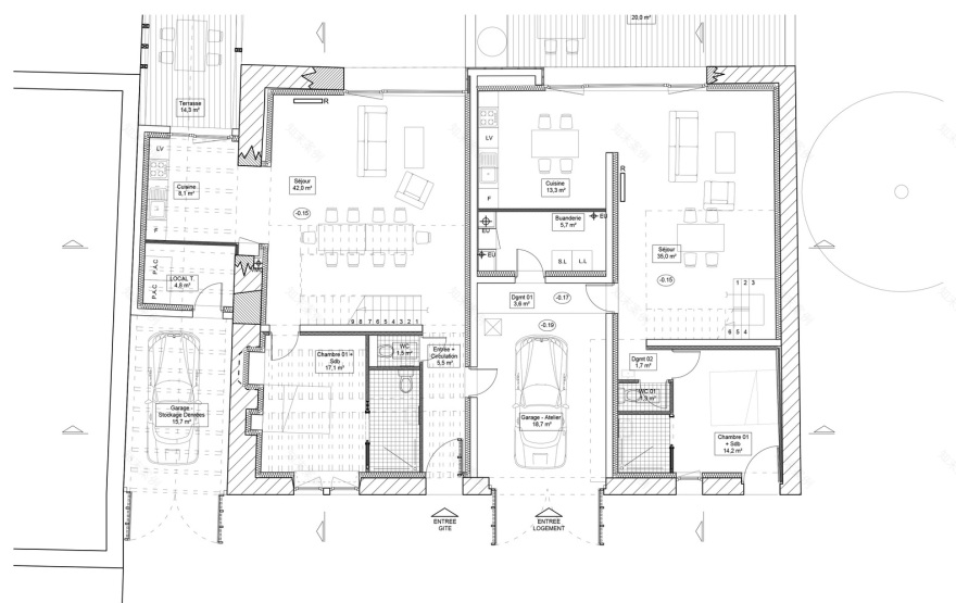
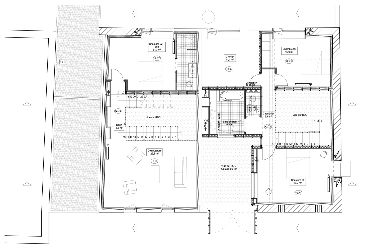
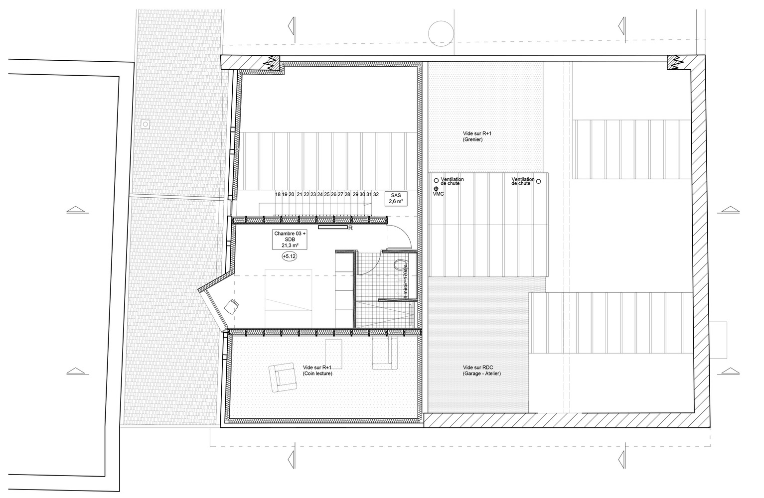
法国摩泽尔农场改建平面图
法国摩泽尔农场改建剖面图
客服
消息
收藏
下载
最近






























