查看完整案例


收藏

下载

翻译
A little 150sqm manifesto in favor of short routes and the simple pleasure of materials. The opportunity to embrace the variety and the nuances of the products available to us on a specific territory. The story of the Plainfaing tourist office is firstly about its planning. The agglomeration community of Saint-Die-des-Vosges, wishing to improve its attractiveness to tourists, simply chose to build this new building near a pole of great affluence: the Confiserie des Hautes Vosges, a traditional confectionery. This artisanal “bonbon des Vosges” factory welcomes nearly 250,000 visitors a year, it is one of the first sites in France for "industrial" tourism.
A small piece of land belonging to the town was available in front of the confectionery. It became evident that this was the place to build the small tourist office in order to benefit from the influx of visitors and encourage them to further discover the lands of this beautiful valley.
Of course, in the Vosges region, we build with wood. But, at the agency, we are also interested in stone, especially in the Meuse region, a territory of abundant limestone and an only little forest. Yet the Vosges are not left behind in terms of quarries — so why not try one of two very unique stones in this area: granite or pink sandstone.
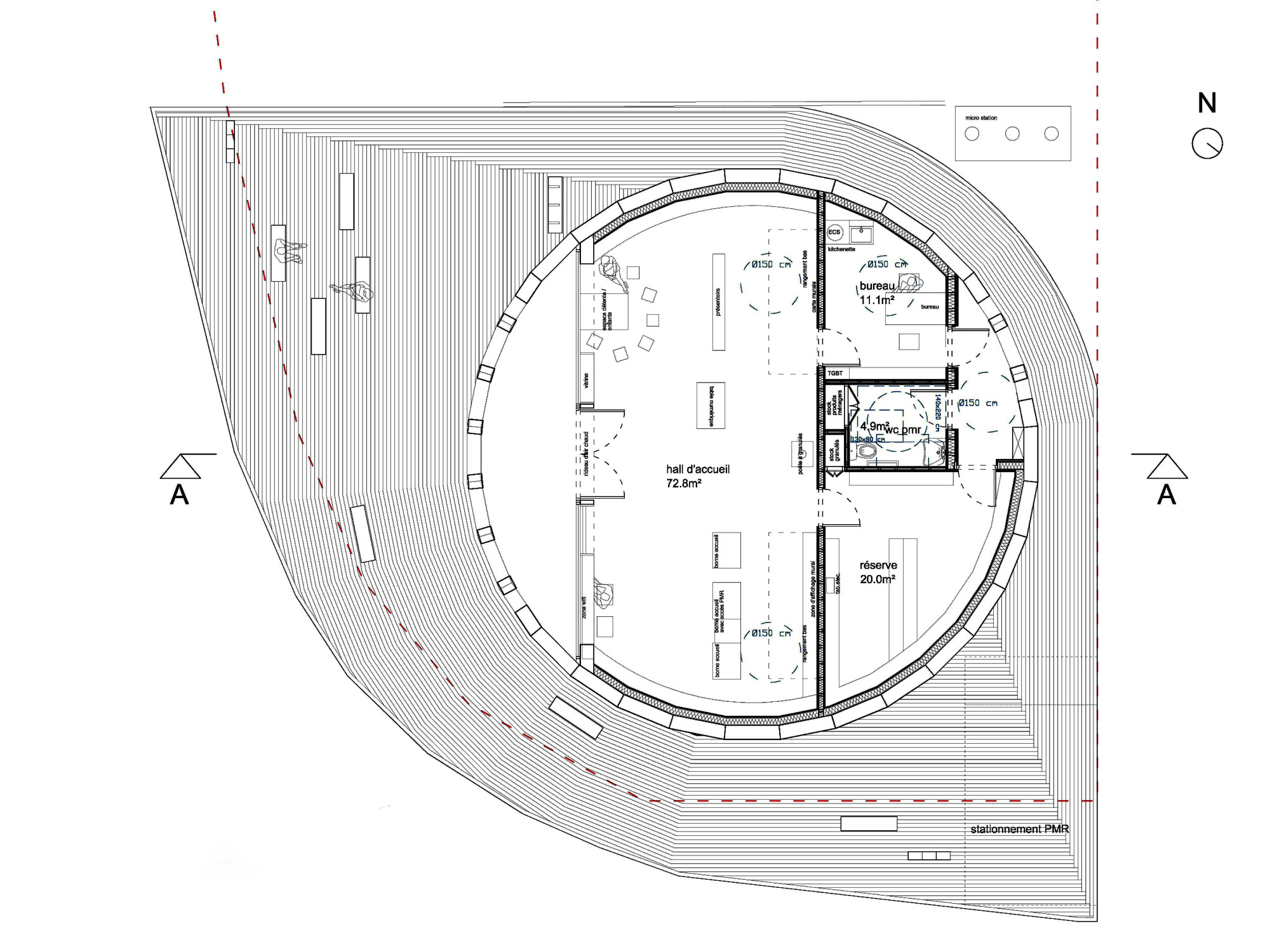
Massive stone architecture is in full rebirth. Giving a curve to this massive stone wall is a small, intermediate exploration between the rationality of Gilles Perraudin's stacks and the expression of Giuseppe Fallacara's stereotomy.
Offsets, rhythm, weaved juxtaposed beds: this CINTRE is a simple way to highlight this block material. In addition, the circular architectural plan offers minimal linear facade, allowing us to use this material sparingly. It is also the most stable structural form: a continuous chain, without any weak points. Since we were in a relatively high seismicity zone, this appeared as a constructive common sense.
The pink sandstone stones come from the Champenay quarry in Plaine (67). We had three different products: rough sawn massive stone (35x35x140cm), 3cm softened floor slabs, and sawn / split paving stones for outdoor installations. The different types of wood come from four Vosgian sawmills: Germain Mougenot in Saulxures sur Moselotte for the spruce indoor trellis, Mandray in Taintrux for rafters, timber framing and roofing, Duhoux in Ramonchamp for the larch cladding, Pierre Moulin in Domèvre sur Durbion for the oak flooring
Because it is high time to reappropriate our resources; because the revitalization of rural areas relies on the maintenance of well-established local economies and companies; because "from the producer to the consumer" is cheaper and nicer and because "drywall is a thing of the past" and you have to move with the times.
▼项目更多图片
客服
消息
收藏
下载
最近

























