查看完整案例


收藏

下载
项目名称:智利Aglae的住宅
位置:智利
设计公司:AFARQ Arquitectos
Casa Aglae是我们在圣多明各的一个周末房子的建议,这是一个120公里的沿海地区。从圣地亚哥。夏季来自西部的强风使我们在平行于陆地长度的东西方向上升起房屋,形成一个内部庭院,作为房子的主要区域。因此,该设计包括一个工厂,其中所有的外壳都布置在北方以最大化阳光。只有主卧室向西看,充分利用了日落的景色。主立面的少数墙壁之一用于隐藏起居室的窗户,这些窗户在开放时将该区域与庭院完全融为一体。朝着街道封闭它的墙壁上覆盖着一种旧的落叶松木材,它被安排成不同长度的板条。该结构基于8“的浸渍松木柱,在其上制造0.85mm的镀锌铁板和隔板。外部涂有松树,浸渍1x4保护卡宾林。3mm的铁板用于下部和上部加冕。我们担心以非常低的成本简化这栋房屋的建造,这反映在一个简单而清晰的几何形状中,没有添加任何不必要的建筑物:结构,材料和细节都仔细考虑,以便房子可以是在最小的监督下远距离执行。
智利Aglae的住宅外部实景图
智利Aglae的住宅外部夜景实景图
智利Aglae的住宅局部实景图
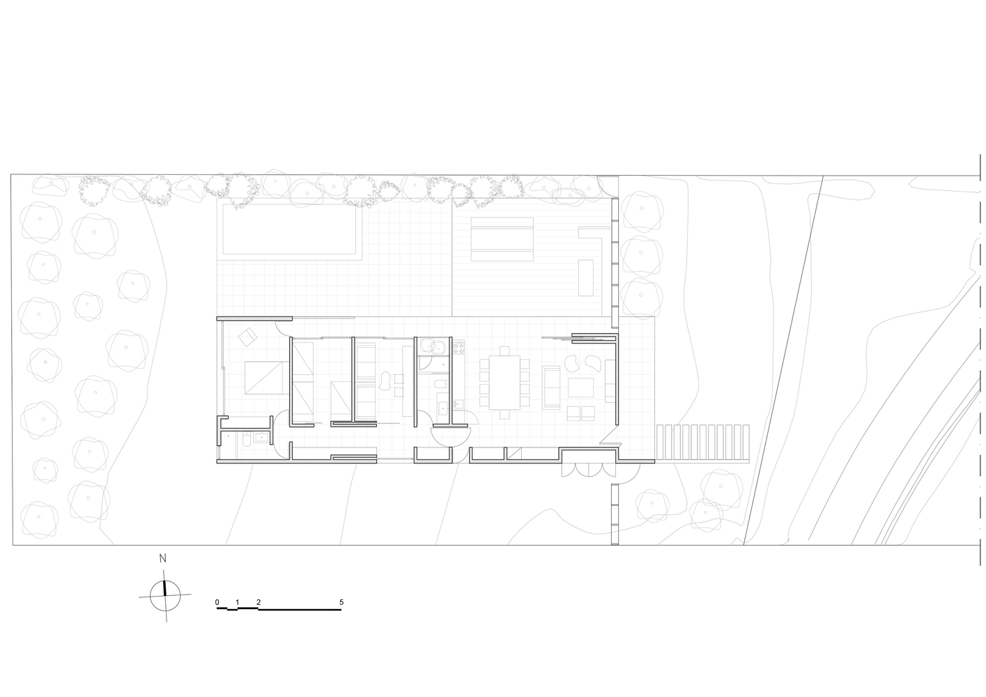
智利Aglae的
住宅平面图
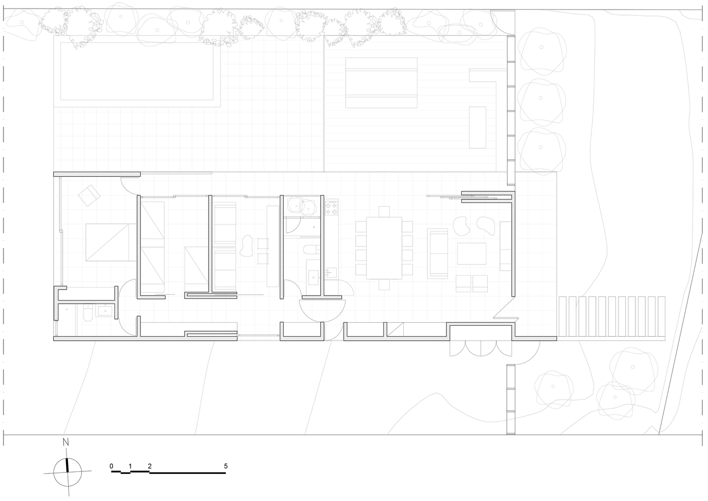
智利Aglae的住宅平面图
智利Aglae的住宅立面图
客服
消息
收藏
下载
最近

















