查看完整案例


收藏

下载
项目名称:日本Hogan的住宅
位置:日本
设计公司:Furumori Koichi建筑设计工作室
在第一次会议上,业主提出了几个计划和意见。与所有四个家庭成员的讨论也有很多想法。因为到目前为止他们正在考虑许多事情,我们当然希望实现他们想要的想法。首先,为了更容易地讨论基于平面视图的设计,我们提出将网格可视化为网格梁。此外,通过在栅格上放置支柱和墙壁,我们向他们提出了任何可能的计划。网格梁是采用通用木工技术建立的,无需任何特殊技术或机器。因此,即使将来家庭成分发生变化,他们也可以相应地移动墙壁和柱子。近年来,随着计算机软件的发展,任何形式和构造方法都成为可能。希望在未来,我们将能够再次回到主人,而不依赖于我们独自享有的特权自由。
日本Hogan的住宅外部实景图
日本Hogan的住宅内部实景图
日本Hogan的
住宅平面图
日本Hogan的住宅透视图
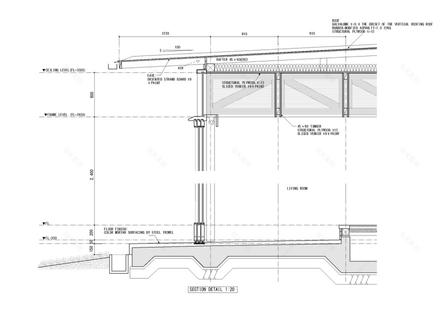
日本Hogan的住宅细节图
客服
消息
收藏
下载
最近














