查看完整案例


收藏

下载
项目名称:埃及Kattameya Dunes Palace建筑
位置:埃及
设计公司:Phenomena Studio-Hisham Alaa Designs
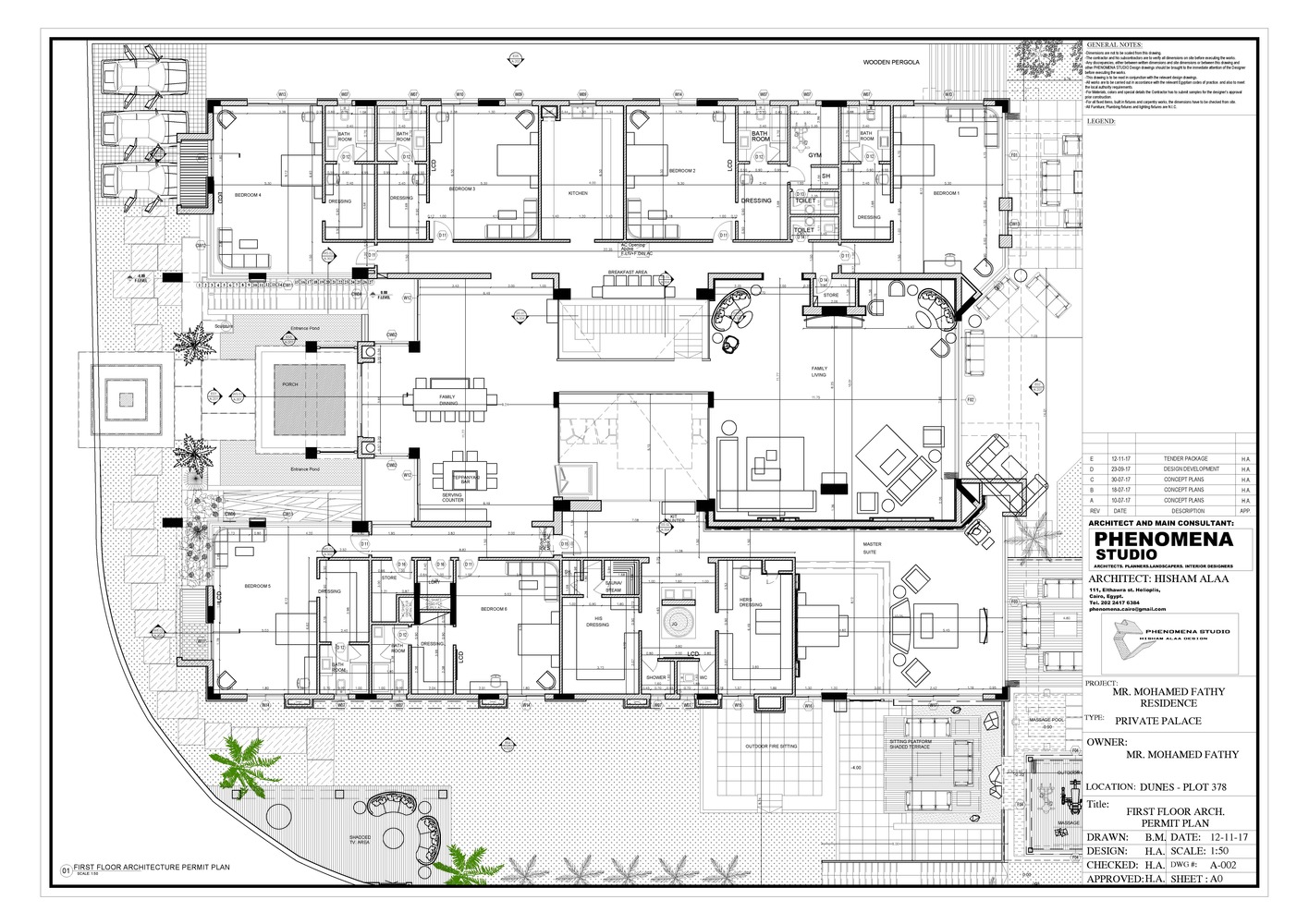
该项目于2017年7月中旬委托给建筑师和室内设计师Hisham Alaa。该建筑只是一个已经由业主建造和购买的混凝土骨架,希望住在一个豪华的现代宫殿中,俯瞰Kattameya Dunes高尔夫球场的壮丽景色。设计师花了四个月的时间才完成了2000平方米宫殿的完整建筑,景观和室内设计,其占地面积为3700平方米,然后在2018年初开始施工,花了大约十五个月的时间完成整个项目的每一个细节。由Hisham Alaa精心设计和选择,所有作品均由“PHENOMENA STUDIO-Hisham Alaa Designs”现场监督团队监督。该设施包括两层,每层1000平方米,底层与下层花园连接,包括正式沙龙,接待区,正式的生活和餐厅,9米餐桌和28把椅子......办公室和服务区包括硬厨房和仆人房间。一楼 - 连接上层大花园 - 有一个私人泳池/半户外健身房,一个家庭泳池楼层包括六个主人套房,一个皇家主人套房,他和她的敷料和开放式厨师浴室,以及家庭大厅俯瞰高尔夫球场,私人水疗中心和家庭餐厅/厨房,两层楼连接在一起,全景电梯和轻型浮动楼梯,通过内部天花板中庭的钢/玻璃桥,种植和提供生活和光线到整个内部。外观设计语言体现了设计师对当代现代风格的态度,采用大胆的设计线条和强烈的饰面材料......主要是意大利/伊朗灰色洞石大理石和印度闪亮的银色板岩。内饰是优雅的现代外观,结合了进口大理石地板/覆层和木质墙面覆盖物以及家庭私人区域的实木地板,注重奢华和优雅,反映了设计师的艺术背景和业主对优秀艺术品的欣赏。
埃及Kattameya Dunes Palace建筑外部实景图
埃及Kattameya Dunes Palace建筑外部夜景实景图
埃及Kattameya Dunes Palace建筑内部实景图
埃及Kattameya Dunes Palace建筑平面图
客服
消息
收藏
下载
最近









































