查看完整案例


收藏

下载
项目名称:瑞士Neuhofweg 住宅
位置:瑞士
设计公司:Beck + Oser Architekten
摄影师:Börje Müller
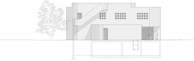
这座两层相连的房屋位于巴塞尔郊区山谷中的居民区中。一条私人路径连接一座公园式的广场,其从街道至房屋北边的场地进行退让。许许多多项目和建筑退让区以及不同半径长度的圆角给了建筑一种雕塑般的活力外表。通过完全纯粹的混凝土材质以及不同样式的门洞窗洞外形,这一特点被进一步强化。北侧,西侧和东侧的窗户被设置在立面上小的圆形洞口后面,其洞口可以起到光线过滤的作用。建筑南侧相对地开了大面积的景窗和玻璃门。建筑内部依然保持了圆润的外形,创造了令人振奋的空间序列。起居室中一个旋转楼梯连接上层,内置雕塑画廊,四个房间,两个卫生间以及一个开放办公区域。一个观景屋顶平台被楼梯所连接到建筑外部。低层空间中附带客房以及大尺寸的多功能房间,均利用外部庭院获取自然日光。在内部,海岸松木胶合板,粗钢,混凝土水磨石地板以及裸露的混凝土墙体创造了光滑而朴素的氛围。
瑞士Neuhofweg 住宅外部实景图
瑞士Neuhofweg 住宅内部实景图
瑞士Neuhofweg
住宅平面图
瑞士Neuhofweg 住宅平面图
瑞士Neuhofweg 住宅立面图
瑞士Neuhofweg 住宅剖面图
客服
消息
收藏
下载
最近



















