查看完整案例


收藏

下载
英文名称:Uruguay Pinar del Faro Residential
位置:乌拉圭
设计公司:Carolina Pedroni + Delfina Riverti + Miguel Rossi
摄影师:Roberto Riverti
建筑师的话:这栋住宅坐落在一个地形的制高点上,被很多棵大松树包围着。住宅突出的“肩膀”部分朝着街道,被住宅的入口进行了充分利用。住宅外部有一套外部楼梯,它连接着层面较高的花园,并将它变成了一个新的起点。在楼上有一个很大的露台,即空闲由从容。露台的最外端被一个走廊定义着,这个走廊让一个外部的玄关拥有了双倍的高度,住宅有一堵侧墙上使用了滑动门,这创造出了一定程度的隐私。
住宅中的卧室通过露台与位于后端的花园连接了起来。半覆盖的设计和游泳池一起框架着森林的风景。住宅主要的体量主要是由混凝土建造而成的,墙壁和地板上都使用了混凝土。与此同时,为了进行阳光和视觉上的调剂,还是用了木材。因为住宅滑动门的设计,住宅的正面可以进行选择性的封闭,因此可以控制来自西边的阳光进入住宅中的总量。顶层上也使用了木材,这里对应着住宅的主卧。
From the architect. The house is situated on a high point of the terrain, surrounded by a number of large pine trees.The abrupt shoulder towards the street is taken advantage of for the access to the house. A set of outdoor stairs connects to the high level of the garden, turning it into the new zero.Upstairs, one encounters a large patio—vacant and contained. The patio's limits are defined by a gallery that doubles as an exterior hallway, while a lateral wall is offset by a sliding door, creating a certain degree of privacy from neighbours.
The bedrooms relate to the back end of the garden through the patio. While the semi convered and the swimming pool frames the forest. Concrete plays a big part in the main volume, where it is used in walls as well as floors. Meanwhile, wood is used as both solar and visual relief. Because of its sliding gates, the house can be closed towards the front—thus controlling how much sun from the west is allowed in. Wood is utilised once again in the top level, where the master suite is found.
乌拉圭Pinar del Faro住宅外部实景图
乌拉圭Pinar del Faro住宅内部实景图
乌拉圭Pinar del Faro住宅剖面图
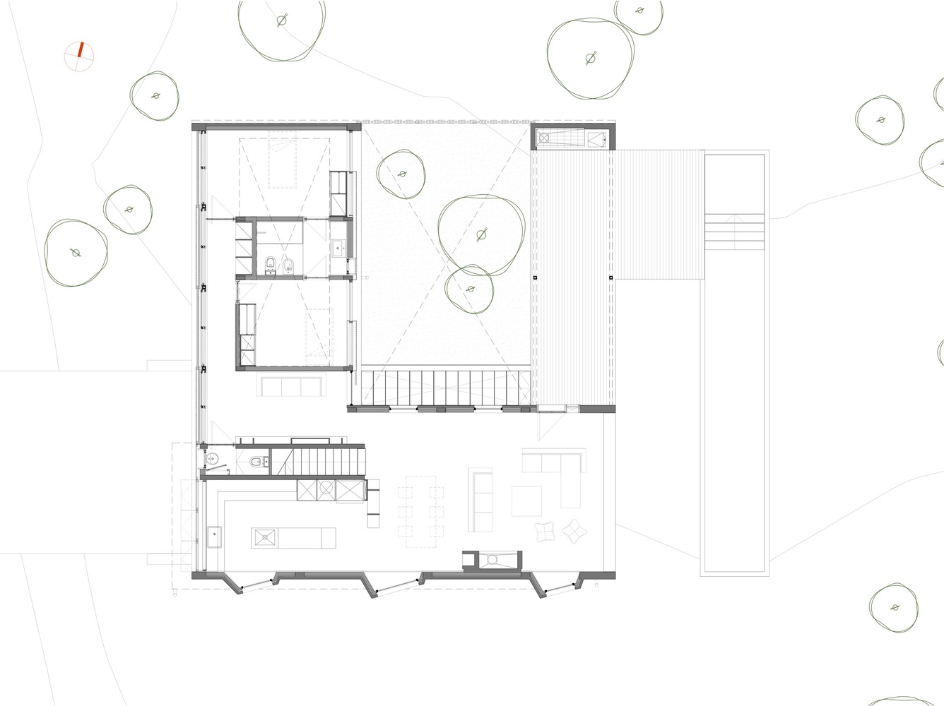
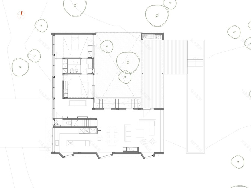
乌拉圭Pinar del Faro
住宅平面图
乌拉圭Pinar del Faro住宅平面图
客服
消息
收藏
下载
最近






















