查看完整案例


收藏

下载

翻译
Ittner Architects as part of Cordogan Clark Group, completed the Dressel Elementary School to relieve the growth in the area of St. Louis, Missouri.
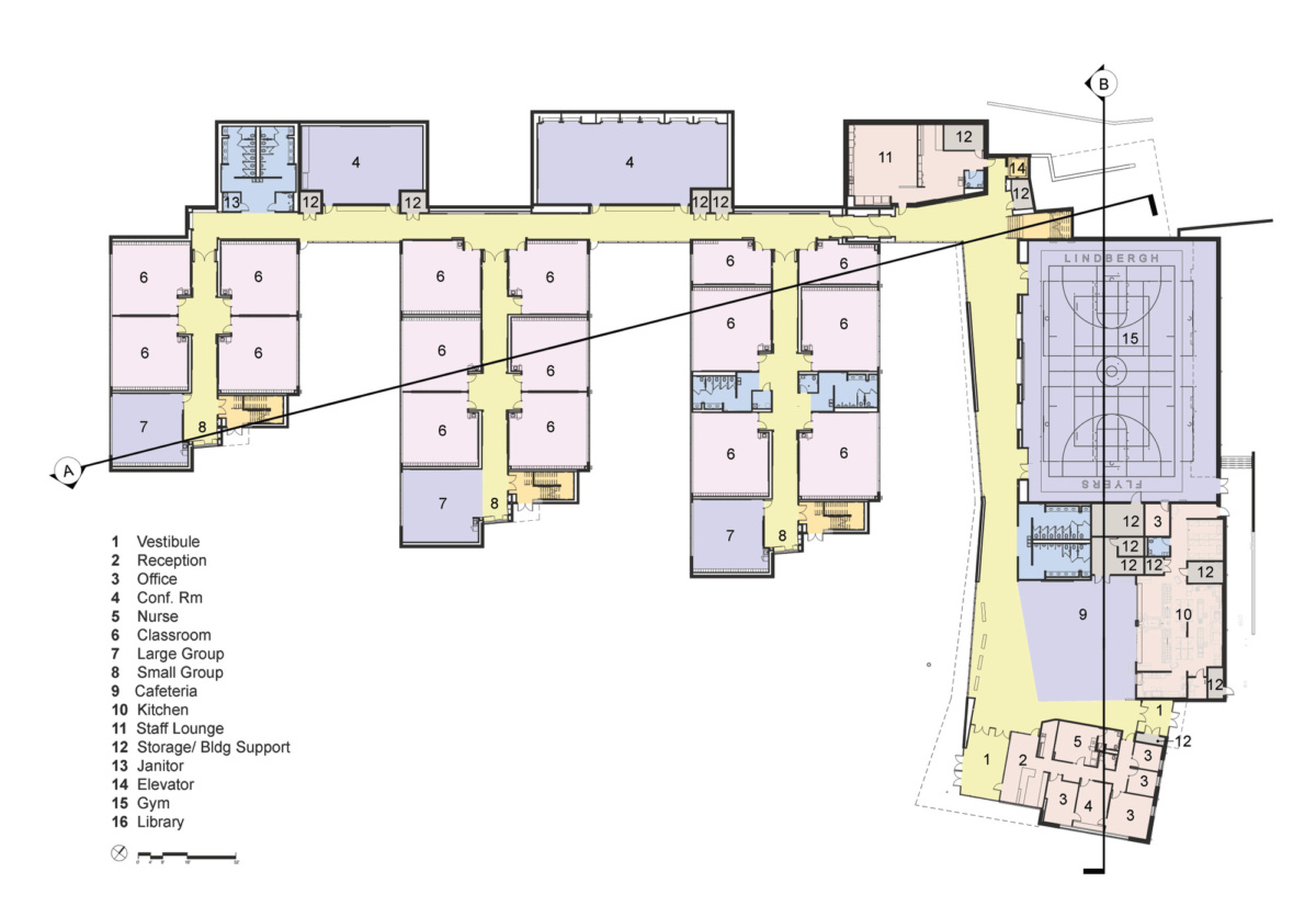
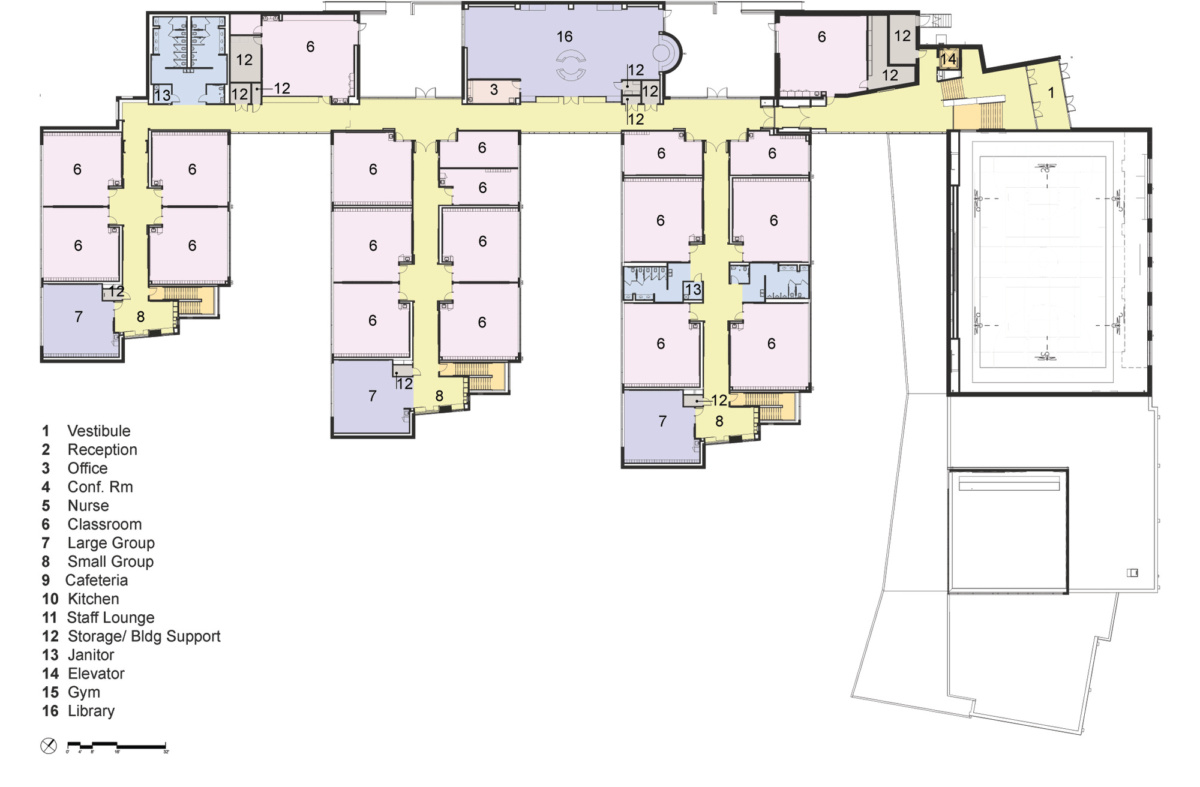
A big school presents the special architectural problem of how to give its students an appropriately scaled and welcoming educational environment. Many educators stress the need for small schools where each student is “needed” and has their own identity in a non-institutional environment. Yet larger schools provide efficiencies of scale and economies that allow better facilities for sports, arts, library , eating, and community use. The new Dressel Elementary School resolves this challenge by creating a “school within a school” where six intimately scaled “home schools” in two-story classroom wings share common facilities linked by a generously glazed walkway. Each classroom wing contains 110 or fewer students. This arrangement creates a comfortably scaled “home school” for its students, each with its own special character, that can easily access shared facilities in an arrangement that minimizes circulation for all students,
Dressel Elementary School is designed to relieve overcrowding in the Lindbergh School district. It replaces a small aging school on the site with a new 98,000-square-foot building designed for 650 21st century learners. To reduce its height relative to elementary students and the scale of the surrounding residential neighborhood, the new two-story school with competition size gym is set into the hillside at the back of the site. Despite its partially countersunk first floor, the classroom wings that extend like fingers allow abundant natural light in classrooms and public spaces.
Each designated grade-level wing features an open STEM project area to enhance student learning and exploration. Raingardens in the courtyards between classroom wings collect water from the school’s roof, allowing students to observe this natural process and illustrating a commitment to sustainability. Outdoor learning patios between the library, art, and music classrooms further allow the curriculum to extend into and connect with nature. The open multipurpose cafeteria located inside the main entrance admits natural light from translucent clerestory panels and a large window wall. This is so effective that artificial lighting is not required in the space during the day, while during the evening, the glass puts on display the special events in this public zone. Taking advantage of earth-berm protection provided by nestling into the hill, multipurpose meeting rooms are also designed as storm-rated safe rooms. These spaces feature color-coded storage areas for the community groups that use them. An elaborately designed playground utilizes the site grading to provide several unique playground features, including a playful ramp system and built-in-grade slides, allowing students to play together no matter their mobility.
Architect: Ittner Architects as part of Cordogan Clark Group
Photography: Aaron Gipperich
13 Images | expand images for additional detail
客服
消息
收藏
下载
最近















