查看完整案例


收藏

下载
英文名称:Spain Valldoreix Residential
位置:西班牙
设计公司:05AM Arquitectura
摄影师:Adria Goula
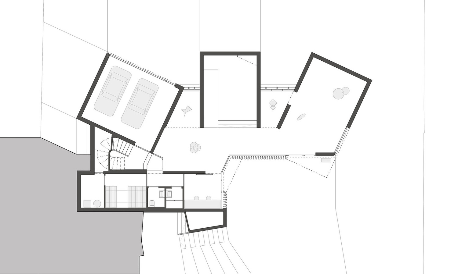
建筑师的话:这个项目有一半是假,还有一半是一个进行现代艺术品展览的空间。这栋住宅的设置方式避开了任何邻近建筑体量的存在,并在南侧释放出了一个开放空间,这里拥有更大的视野幅度。整个项目由四个体量构成,这四个体量拥有两个独特而又交替的方向,这两个方向定义着三个填隙的双高空间,而这三个空间的两个楼层都可以进行视觉上的交流,因此这四个体量是没有任何实体间隔的整体。
这四个体量是通过结构阿里进行转变的,从而让内部空间有了一个清晰而又连贯的功能性。一楼包含了展览室,这些展览室与走廊和双高的空间相一致,从而创造出了很多展览的可能性。楼梯被设置在了这些很高的空间中,它们将用来展览的楼层和生活楼层连接了起来,这四个体量的生活楼层都拥有独特的用途,这保证了功能上的清晰。基于室内的规划,四个体量的高度是不同的,因此阳光可以通过上面的窗户进入住宅中。
From the architect. This project is half a home and half an exhibition space for contemporary artwork. The house is set in a way that avoids the presence of any neighbouring constructions, liberating an open space on the south side with a larger visual amplitude.It is composed by four volumes, disposed in two specific and alternate directions that define three interstitial double-height spaces that visually communicate the two floors, allowing the understanding the volumes as a whole without any physical separation between them.
These four bodies are resolved according to the structure, granting a clear and coherent functionality of the interior spaces. The ground floor stores the exhibition rooms that in unison with the corridors and the double-height spaces allow exploring many exposition possibilities. The stairs are placed in one of these tall spaces, communicating the exhibition floor and the living floor, where each one of these four volumes will serve for a specific use, granting a functional clarity.The four bodies have different heights depending on the interior programme, allowing daylight to enter in the house from windows above.
西班牙Valldoreix住宅外部实景图
西班牙Valldoreix住宅外部夜景实景图
西班牙Valldoreix住宅内部实景图
西班牙Valldoreix
住宅平面图
西班牙Valldoreix住宅平面图
西班牙Valldoreix住宅剖面图
客服
消息
收藏
下载
最近






























