查看完整案例


收藏

下载
英文名称:Portugal QL housing
位置:葡萄牙
设计公司:VisioarqArquitectos
摄影师:Fernando Guerra | FG+SG
这是由VisioarqArquitectos设计的QL住宅。该项目位于葡萄牙南部海岸的阿尔加维最高档的地区之一,是居住区中独特的存在。从项目所在地可以看到周边的高尔夫球场、住宅区、河口以及大西洋全景。该住宅融合了平衡空间与景观一体化。两个相互堆叠而相交的空间不敬形成一种特定的空间动态性,还创建了虚与实、光与暗之间的不同视线联系,这种联系是从光影的动态性引起的,出现在私密区域、半私密区域以及周边景观之间。
The QL House is located in one of the most exclusive areas of Algarve, on the Portuguese southern coast, a singular presence in an essentially residential neighbourhood.From where it was erected it is possible to see captivating surroundings: golf courses, residences, the estuary and, dominating the background, the Atlantic Ocean.The QL House project was an exercise in balancing spaces and landscape integration. The articulation of two overlapping and perpendicular spaces generated not only a particular spacial dynamic, but also different visual relations between full and empty, light and dark - caused by the dynamic of shadows - between private areas, semi-private areas and the view of the surrounding landscape.
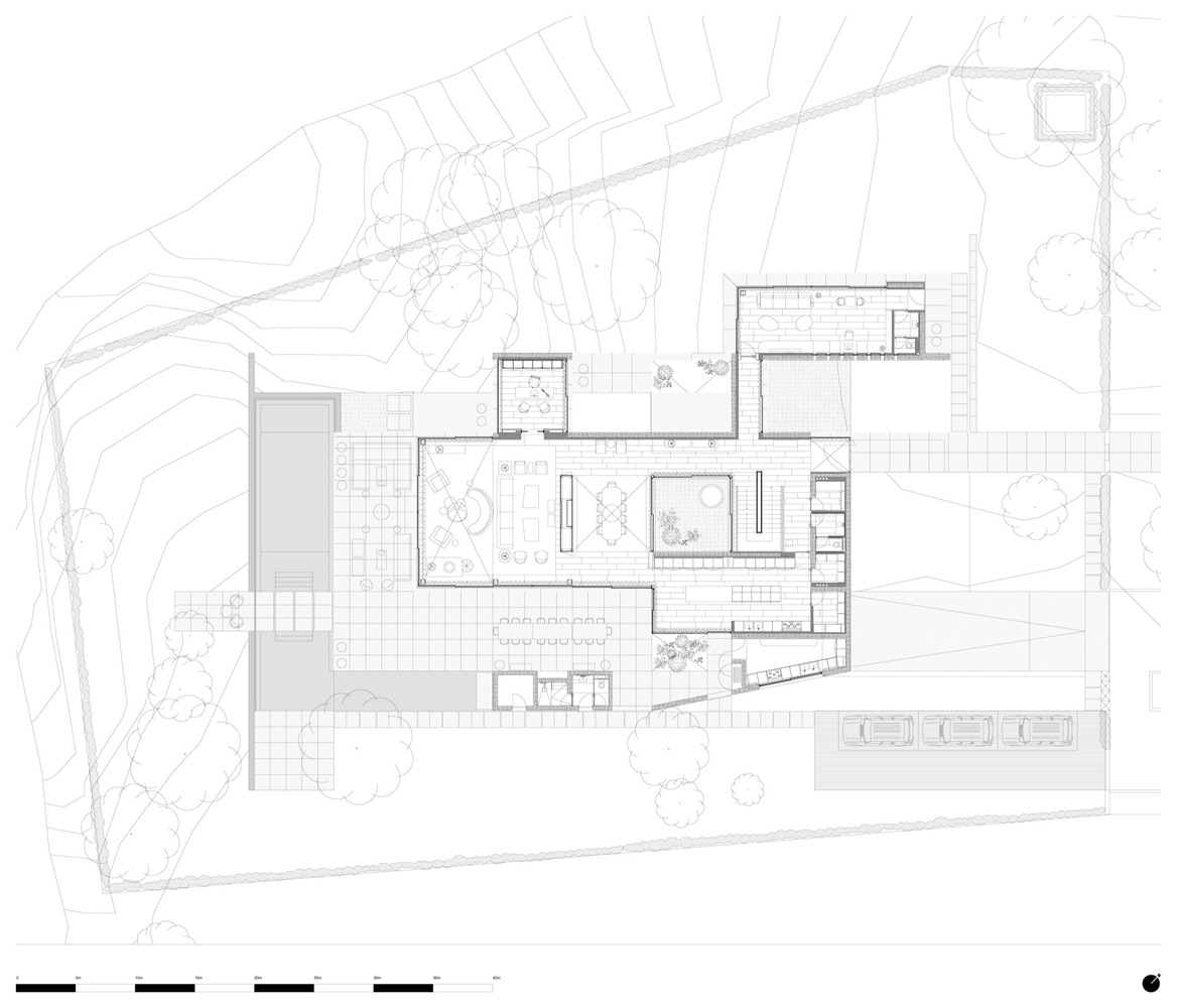
Two stories and a basement encapsulate a precise functional program: garden, swimming pool, sun room, living and dining room, bathrooms, a regular kitchen and a summer kitchen, four bedrooms, an office and space for a playroom.Circulation takes place through a continuous stairway along the indoor garden, which illuminates all the indoor spaces in this home. This nuclear garden structures the direct interaction between the entire indoors and the outdoors, gifting all spaces of the QL House with the luxury of natural lighting. The spaces were designed to create constant and singular relations between the indoor and outdoor spaces, in a permanent and multifaceted dialogue.
The bedrooms, on the first floor, face the green surrounding landscape, and take advantage of the terrace on the roof of the living room and summer kitchen in order to create areas for contemplation on the top floor. The space occupied by the bedrooms extends in both directions beyond the bounds of the first floor, hovering over the empty space, in a serene and quiet balance.On one side, a balanced veranda greets the main entrance to the house, on the other side, a pergola provides shade for the living area by the pool and living room, making particularly hot summers more enjoyable.The main entrance to the house is through a door of unusual dimensions, in line with the imposing scale - one of the singular features of this architectural piece.White concrete walls formalize the spaces in the QL House, in a chromatic mimicry of the buildings in this region of Portugal – designed with a particularly hot climate in mind.
The natural cork lining, a traditional Portuguese material, is articulated in the connection between the space and the land. The bedrooms, on the other hand, feature slats and motorized metallic shutters in their lateral openings, which filter light without making it impossible to contemplate the surrounding landscape, surely one of the valuable assets of the QL House.The project was structured primarily with the goal of valuing the relationship between the indoor and outdoor spaces, the creation of complicities between the user and the landscape, and the former with the created space. As built, the QL House exceeded expectations and once again endorses the work of Visioarq- Arquitetos.
葡萄牙QL住宅外部实景图
葡萄牙QL住宅外部夜景实景图
葡萄牙QL
住宅平面图
葡萄牙QL住宅平面图
葡萄牙QL住宅剖面图
客服
消息
收藏
下载
最近





























