查看完整案例


收藏

下载
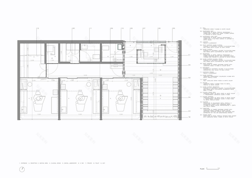
架构师提供的文本描述。这项挑战是基于对牙科诊所的重新解释,以寻求一个新的清晰性和空间特征。
Text description provided by the architects. The challenge is based on the re‐interpretation of a Dental Clinic, in the search of a new clarity and spatial character.
© Fernando Guerra | FG+SG
费尔南多·格拉
该网站位于托雷斯韦德拉斯中心一栋公共建筑的一楼。
The site is located on a first floor of a common building in the center of Torres Vedras.
© Fernando Guerra | FG+SG
费尔南多·格拉
这个空间需要一个新的形象来激发新的气氛,新的感觉。
The space requires a new image to provoke new atmospheres, new sensations.
© Fernando Guerra | FG+SG
费尔南多·格拉
渴望在城市中创造一个与众不同的空间,更多的停顿,沉思,一个反思的空间,导致发现沉默的重要性,空间显然是空而充满生命的。
The desire of creating a distinguished space in the city, more paused, contemplative, a space of reflection, leading to the discovery of the importance of silence and of spaces apparently empty yet full of life.
© Fernando Guerra | FG+SG
费尔南多·格拉
以高尚的材料来维持材料选择的实验。这种实验本质上是通过非物质的建筑元素来实现的,即空间。与空间一起工作,是由感知、路径、光线、反射、透明度、流动性决定的。由回收玻璃组成的质量,通过创造一种不断变化的空间感觉,增强了光的反射和振动。
An experimentation where the selection of materials is sustained by the nobleness of materials. That experimentation is essentially realized with the immaterial architectural element, which is space. Working with space, is determined by perception, paths, light, reflections, transparencies, fluidity. The mass composed by a summary of recycled glasses, potentiates the reflections and the vibrations of the light, by creating a perception of space that is constantly mutating.
© Fernando Guerra | FG+SG
费尔南多·格拉
寻找永恒的空间,有着丰富的感官,光线以不同的方式被过滤,给空间赋予诗意,使它们显赫。
The search of a timeless space, with a plenitude of senses, where light is filtered in different ways, gives poetry to spaces, dignifying them.
客服
消息
收藏
下载
最近





























