查看完整案例


收藏

下载
英文名称:Korea Gyeonggi Lighthouse Residence
位置:韩国
设计公司:LEESLIST & Leejae Architects
摄影师:Yang Woosang
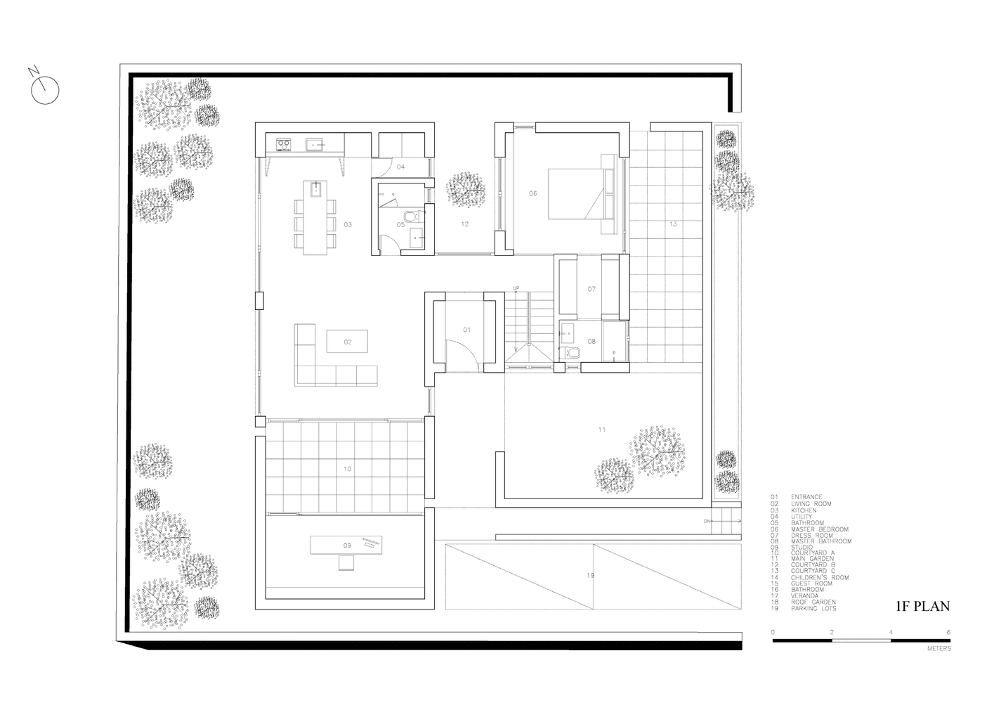
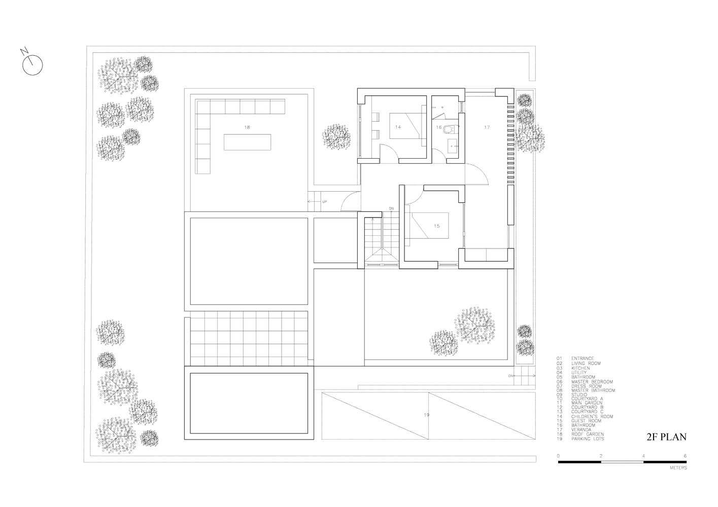
这是一栋面积148.76平方米的独立式住宅,坐落在京畿道省的一山。这栋为一个三口之家设计建造的住宅的大体建筑规划包括了主要的起居室、三间卧室、两间盥洗室、一个更衣室、厨房和一间工作室。这栋住宅的名字叫做灯塔住宅,这体现了业主的职业特点。这栋灯塔住宅所在的土地条件是由大约二十间住宅大小的土地分配创造出来的。其中有五栋住宅已经完工了,剩下的住宅正在修建的过程中。
灯塔住宅的目标并不仅仅限于创造出供吃和住的物理性住宅,它的目标是通过在建筑体量内外部之间创造连续的关系而达到自然和人类之间的共存。可以预测的是在不远的将来,这个区域中将会挤满各种住宅,所以灯塔住宅的设计要从外人的眼中保护住客户们的隐私。住宅与其他住宅接触的三个侧面都同样地与其他住宅分离了开来,以便它们能够完全的被住宅的外部墙壁所包围起来。
译者:蝈蝈
This house is a detached house, size of 148.76㎡, built in Ilsan, Gyeong-gi Province.General floor plan for three-member-family consists of the main living room, three bedrooms, two bathrooms, one dress room, kitchen and a workshop; a detached house of 148.76. This house, so called a Light – House, represents the characteristic of owner’s occupation. The land condition for this Light-House was created by land division of about twenty-house-size. Five houses are already completed, and others are currently under construction.
Light-House is aims for something higher than a physical housing where you simply eat and sleep; it pursues co-existing of nature and humanity through continuous relationship via interior and exterior of the building. Predicting this region to be crowded with houses in a near future, Light-House is designed to protect owner’s private life from others’ eyes. The three land sides that are touched by other residents’ are equally divided so that they can be entirely surrounded by the exterior wall of the housing.
韩国京畿道灯塔住宅外部实景图
韩国京畿道灯塔住宅内部实景图
韩国京畿道灯塔住宅局部实景图
韩国京畿道灯塔住宅模型图
韩国京畿道灯塔
住宅平面图
韩国京畿道灯塔住宅平面图
韩国京畿道灯塔住宅立面图
客服
消息
收藏
下载
最近





























