查看完整案例


收藏

下载
Germany Budenheim MS Residential
设计方:Heinrich Lessing Architekt BDA
位置:德国
分类:居住建筑
内容:实景照片
图片:15张
摄影师:Achim Reissner
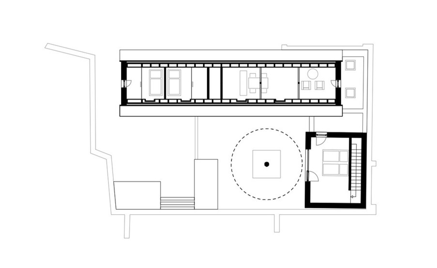
项目的任务是在一个早已存在的村庄中央设计一栋住宅,这个村庄位于布登海姆,挨着美因茨。虽然我们保留了原始的建筑体量,但是还是不能保留原始建筑体量的所有内容。旧的棚屋给了我们一个处理新建筑体量之间关系的灵感。原始的胡桃树支撑着我们保留庭院的理念。住宅的顶点面对着邻居住宅的顶点。新的住宅中增加了为两个孩子准备的空间、一个大的包括厨房和餐饮区域的起居室。父母们的房间在平屋顶的建筑体量中。所有的房间都朝向有胡桃树的庭院。
译者:蝈蝈
The task was to design a house within the middle of the existing village Budenheim close to Mainz. We kept the volume of the existing building although we could not maintain the whole substance. The old sheds gave us an idea of what the relation between the new volumes should be. The existing walnut tree supported the concept of keeping the courtyard. The heights of the house are orientated toward the neighbor’s heights.The new house got space for two children, a big living room including a kitchen and the eating area. The parents have their own rooms in the volume with the flat roof. All rooms are orientated toward the courtyard with the walnut tree.
德国布登海姆MS住宅外部夜景实景图
德国布登海姆MS住宅内部实景图
德国布登海姆MS住宅草图
德国布登海姆MS
住宅平面图
德国布登海姆MS住宅平面图
德国布登海姆MS住宅立面图
客服
消息
收藏
下载
最近

















