查看完整案例


收藏

下载
遇一设计
在寻找美的道路上,我们终将相遇
只做有情感的空间设计
ABOUT ROOM
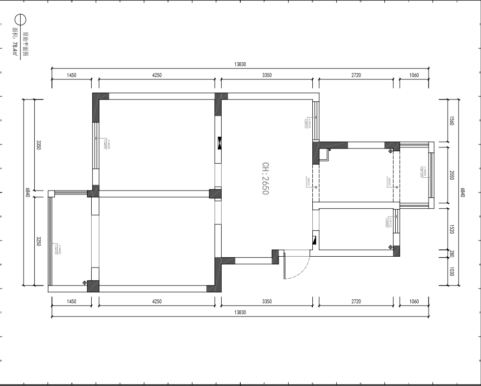
房屋信息
户型
二室
使用面积
70平米
房屋位置
江苏 南通
FOREWORD
说在前面
业主是一名医生,因为平时工作忙碌加上工作性质的影响,对个人生活方面追求细致入微。所以在房子的装修要求上要有细度,有想法,有创意。 希望小巧的户型可以装修出兼备氛围温馨,功能齐全的效果。
你对这套作品最满意的地方在哪里,为什么?
A:动线的合理重置。原来的餐厅与通向各个区域的过道是通用的,这样餐厅与过道的感觉会很局促,过人的时候要绕着走。做了开放式厨房以后,可以实现轻松地放置一个长餐桌,并能创造出一个大小适中的活动过道,空间感受得以解放.
Q:对平面布局做了哪些优化改动,为什么?
A:厨房改为开放式,延伸出吧台与餐厅的唱餐桌相接,无形中扩大了公共空间的使用感受,并增强了厨房与餐厅的互动性。
ROOM SHOW
空间展示
户型图
- 客厅 -
- 餐厅 -
- 厨房 -
- 卫生间 -
- 卧室 -
- 书房 -
DESIGNER创意团队--------------------
客服
消息
收藏
下载
最近

















