查看完整案例


收藏

下载
Croatia Z Street Apartments
设计方:Dva Arhitekta
位置: 克罗地亚
分类:居住建筑
内容:实景照片
图片:16张
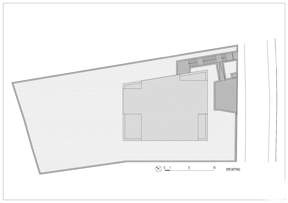
这座家庭住宅中等大小,为一对有两个孩子的夫妇设计。住宅坐落在萨格勒布市中心的狭窄街道上,尊重街上其它房屋的建筑界线,但是抬高到街道标高之上。车库保持在街面上,但是被并入住宅地基。梯形地基规划源于场地的形状。该建筑的邻近社区非常密集,场地本身被大型房屋包围。这就是为什么该住宅对邻居建筑而言是“自我保护型”的,它在对角线上成角度敞开自身,从而获得光线、空气和景色。
克罗地亚Z街住宅外部实景图
克罗地亚Z街住宅内部实景图
克罗地亚Z街
住宅平面图
克罗地亚Z街住宅剖面图
克罗地亚Z街住宅平面图
客服
消息
收藏
下载
最近

































