查看完整案例


收藏

下载
Shanghai Anting Auto City research innovation center
设计方:Atelier Deshaus
位置: 上海
分类:居住建筑
内容:实景照片
图片:21张
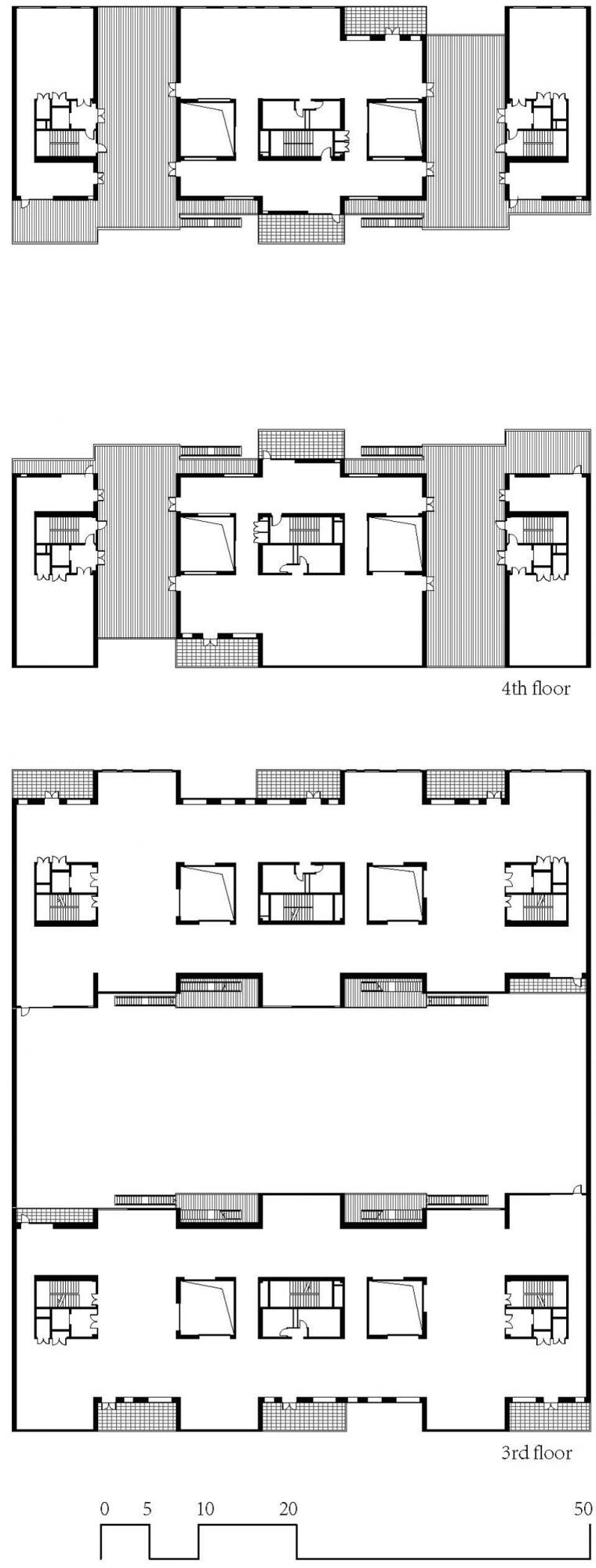
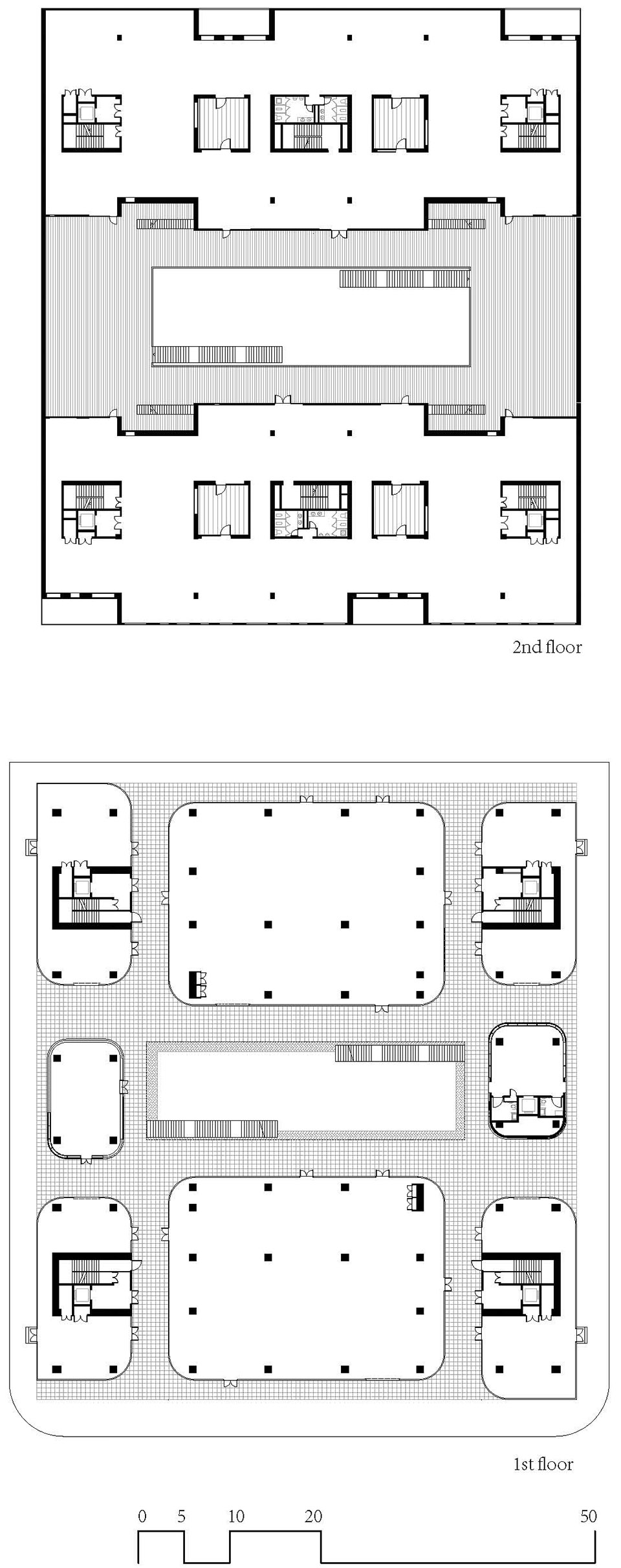
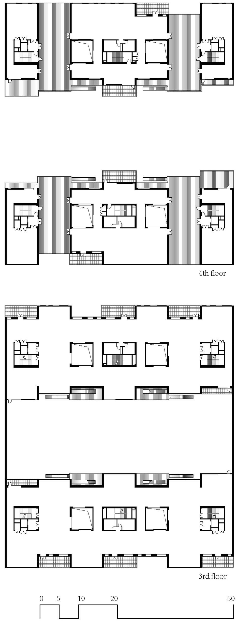
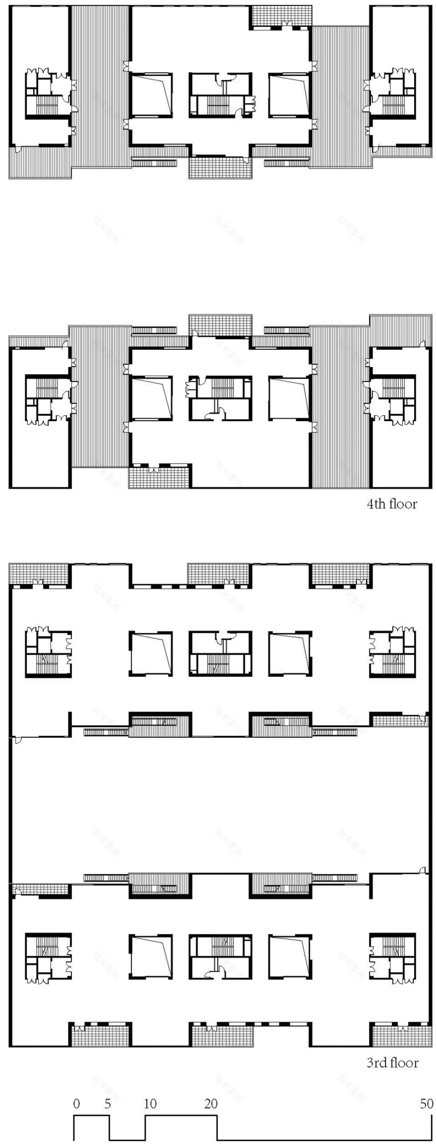
安亭汽车城研发创新港地处上海西北郊区的安亭新城内,是一个以汽车研发为主要业态的开发项目,总建筑面积逾15万平方米。项目共分成五个地块,大舍承担了其中D地块的建筑设计工作。项目有个比较详尽的规划,规定了各地块的总体布局以及单体建筑的平面轮廓与层数。但建筑设计任务书却非常笼统,仅把功能粗略地分为试制车间和研发用房,没有其他具体的使用要求。项目的基地也是极其匿名,无法为设计提供有效的参照。基地所在的区域象许多郊区新城一样,整体环境意象很不明确,弥漫着一种挥之不去的疏离感。为了摆脱这种疏离感,我们希望在确保功能有足够适应性的前提下,为研发人员营造一个“居所”,给他们带来切实的归属感。
设计围绕着这个目标展开,基本策略是把单体建筑都定义成包含多个环境层次的聚落。每个聚落由研发空间和试制车间上下两个部分叠加而成。研发空间位于二至四层,中央是带形的内广场,构成整个聚落的“中心”,广场两侧集聚了众多通用研发单元。单元朝内广场这侧逐层后退,赋予它一种向天空逐渐敞开的姿态,在深度和宽度之外为内广场带来一个向上的维度。研发单元的层层后退形成了一系列层次丰富的露台,被室外楼梯连成了活跃的整体,成为内广场的有机延伸。这里将是研发人员休憩、交往,举办活动的地方。
上海安亭汽车城研发创新中心外部实景图
上海安亭汽车城研发创新中心外部夜景实景图
上海安亭汽车城研发创新中心局部实景图
上海安亭汽车城研发创新中心平面图
客服
消息
收藏
下载
最近











































